Prenájom bytu 3+1 • 75 m² bez realitkyauf Anfrage Bad Wiessee Bayern 83707
auf Anfrage Bad Wiessee Bayern 83707MHD 1 minúta pešo • ParkovanieSanovaný 3-izbový byt sa nachádza na 2. poschodí / v podkroví viacrodinného domu s celkovo 7 bývajúcimi jednotkami, postaveného v roku 1964.
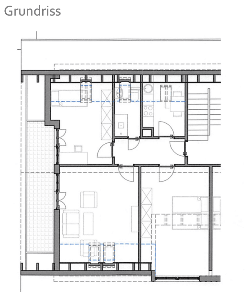
Cez udržiavané schodisko sa dostanete do priestrannej predsiene bytu, z ktorej sú prístupné všetky miestnosti. Vďaka výške miestností minimálne 2,45 m a integrovanému stropnému osvetleniu, v kombinácii s parketovou podlahou a bielymi dverami, sa už pri vstupe a zatváraní dverí bytu cítite uvoľnene a doma.
Vpravo sa nachádza kuchyňa, ktorá je vybavená kompletne zariadenou vstavanou kuchynskou linkou vrátane elektrospotrebičov. Vďaka klasickej farebnej kombinácii bielych frontov a tmavej pracovnej dosky je kuchyňa elegantná a nadčasová.
V kúpeľni nájdete priestrannú sprchu, umývadlo, WC a oddelený priestor s prípojkou pre malú práčku alebo sušičku.
Z jednej z troch izieb sa dostanete na priestranný západný balkón s nádherným výhľadom na hory. Táto izba je veľmi svetlá vďaka balkónovým dverám a prislúchajúcim oknám a môže byť využitá napríklad ako detská izba, izba pre hostí alebo kancelária.
Na druhej strane predsiene, taktiež s prístupom na balkón, sa nachádza svetlý obývací priestor, ktorý navyše disponuje dvoma strešnými oknami a malým oknom v priestore pod šikmým stropom. Na západnom balkóne si môžete vychutnať výhľad na hory a večer aj západ slnka.
Pri obývacej izbe sa nachádza aj spálňa, ktorá je tiež svetlá a útulná, s nohmi štyrmi oknami v podkrovnej výstupe.
Obec Bad Wiessee, uznávaná kúpeľná destinácia od roku 1922, leží na západnom brehu jazera Tegernsee, približne 50 km južne od Mníchova.
Obchody dennej potreby sú vzdialené len „koľko krokov“; Lindenplatz v centre Bad Wiessee so ďalšími maloobchodníkmi, poštou, lekárňami a pod. je autom dostupný za 1 minútu.
Možnosti voľnočasových aktivít (tenis, jazda na koni, plachtenie, lyžovanie, turistika, golf a pod.) ako aj najbližšie lesné a lúčne cesty sú viac-menej priamo pred dverami.
Železničnú stanicu v Gmunde (bavorská regionálna dráha s prepojením na Mníchov, Rosenheim/Salzburg, Schliersee/Neuhaus a Lenggries) dosiahnete autom za 5 minút. Autostrádne napojenie v Holzkirchen (A8) smerom na Mníchov a Salzburg je vzdialené len približne 20 km, teda okolo 30 minút.
Autobusová zastávka, v smere Gmund alebo Rottach-Egern, sa nachádza približne 100 m od bytu.
• Dubové parketové podlahy vo všetkých obytných a chodbových priestoroch
• Kvalitný kameninový obklad v sprche a WC
• Exkluzívne sanitárne zariadenia a armatury v sprche a WC
• Priestranná sprcha
• Vysoko kvalitná vstavaná kuchyňa vrátane všetkých elektrospotrebičov
• Nové okná a dvere s trojitým zasklením
• Dodatočné strešné okná
• Izbové dvere v bielej farbe s kazetovým vzorom
• Osvetľovací koncept na stenách a stropoch
• Nová elektroinštalácia, káblovanie a rozvodná skriňa
• Nové radiátory
Parametre nehnuteľnosti
| Vek | Nad 50 rokov |
|---|---|
| Stav | Po rekonštrukcii |
| Poschodie | 2. poschodie z 2 |
| PENB | C - Hospodárne |
| Cena za jednotku | 18,93 € / m2 |
| Dostupné od | 1. 5. 2026 |
|---|---|
| Dispozícia | 3+1 |
| Číslo inzerátu | 1014561 |
| Úžitková plocha | 75 m² |
Čo táto nehnuteľnosť ponúka?
| Balkón | |
| Parkovanie |
| Pivnica | |
| MHD 1 minúta pešo |
V okolí nehnuteľnosti nájdete
Stále hľadáte to pravé?
Nastavte si strážneho psa. Ponuky vybrané na mieru dostanete súhrnne 1× denne e-mailom. S Premium profilom máte po ruke rovno 5 strážcov a keď sa niečo objaví, informujú vás obratom.














