Predaj domu 7+1 • 173 m² bez realitky, Bavorsko
Typ: samostatne stojaci jednopodlažný alebo dvojrodinný dom v strategicky atraktívnej lokalite Teisbach.
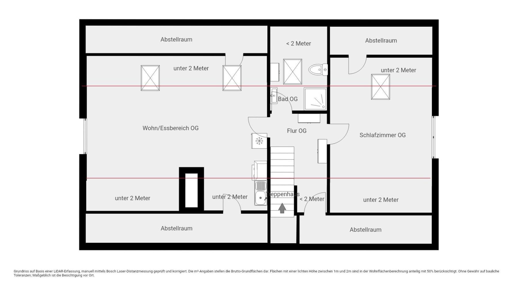
Rozlohy: Približne 173 m² obytného priestoru a približne 159 m² využiteľného priestoru na priestrannom svahu s rozlohou 1 189 m², so súkromnou plateau-úrovňou.
Rozdelenie: 7 izieb, vrátane vykurovanej zimnej záhrady (postavená v roku 2004) a dvoch kúpeľní.
Stav a technika: Postavený v roku 1981, priebežne modernizovaný (napr. kúpeľňa v prízemí, izolácia, okná v roku 2014); vybavený solárnou elektrárňou vrátane batérie a plynovou kondenzačnou kotolňou.
Osobitnosť: Súkromný predaj bez provízie; k dispozícii od septembra/októbra 2026.
Dôležitá poznámka pre záujemcov:
Pre ďalšie údaje o nehnuteľnosti a kompletné, 29-stranové expoé prosím využite náš kontaktný formulár. Stačí, ak prostredníctvom tohto portálu odošlete dopyt – následne obdržíte automaticky odkaz na formulár a po jeho odoslaní obdržíte podrobný dokument.
Mikrolokalita: Idylicky situovaný v historickom centre Teisbach, na chránenom obytnom plató.
Infraštruktúra: Školka a dedinársky obchod s pekárňou sú pešo dostupné len vo vzdialenosti približne 200–300 metrov; základná škola je vzdialená asi 450 metrov.
Dopravné spojenie: Vynikajúca dostupnosť BMW závodu v Dingolfingu (asi 3–4 km) a diaľnice A92 (asi 5–6 minút).
Mobilita: Mestský autobus „Dingo“ zastavuje v dohľate a poskytuje spojenie na stanicu Dingolfing.
Flexibilita: Dom ponúka vďaka premyslenému riešeniu predsiene s možnostou vetrolamov potenciál na jednoduché oddelenie na dve autonómne bytové jednotky (ideálne pre viacgeneračné bývanie alebo čiastočný prenájom).
Bývací komfort: Otvorený obývací-diningový priestor s kvalitnou rohovou lavicou z dubového dreva a priamym prístupom do svetlej, vykurovanej zimnej záhrady.
Vonkajší priestor: Zasadená záhrada s ovocnými stromami, detským domčekom, pavilónom a grilovacím miestom na plateau-úrovni.
Ďalšie priestory: Kompletné podklenie so veľkou hobby miestnosťou (37 m²), dielňou a fitness miestnosťou, ako aj dvojgarážou s elektrickými bránami.
Parametre nehnuteľnosti
| Vek | Nad 50 rokov |
|---|---|
| Stav | Po rekonštrukcii |
| Číslo inzerátu | 1014468 |
| Úžitková plocha | 173 m² |
| Celkové poschodia | 2 |
| Dostupné od | 1. 10. 2026 |
|---|---|
| Dispozícia | 7+1 |
| PENB | B - Veľmi úsporné |
| Plocha pozemku | 1 189 m² |
| Cena za jednotku | 2 861,27 € / m2 |
Čo táto nehnuteľnosť ponúka?
| Pivnica | |
| Parkovanie | |
| Terasa |
| Garáž | |
| MHD 2 minúty pešo |
V okolí nehnuteľnosti nájdete
Stále hľadáte to pravé?
Nastavte si strážneho psa. Ponuky vybrané na mieru dostanete súhrnne 1× denne e-mailom. S Premium profilom máte po ruke rovno 5 strážcov a keď sa niečo objaví, informujú vás obratom.















