Prenájom kancelárie • 300 m² bez realitkyLeverkusen Wiesdorf Nordrhein-Westfalen 51373
Leverkusen Wiesdorf Nordrhein-Westfalen 51373MHD 1 minúta pešoNa prenájom je k dispozícii priestranná a všestranne využiteľná kancelárska či ordinácia s celkovou výmerou 300 m² v centrálnej lokalite Leverkusen-Wiesdorf, priamo na Wiesdorfer Platz a v bezprostrednej blízkosti Rathaus-Galerie.
Jednotka zaujme vynikajúcou viditeľnosťou, optimálnou dostupnosťou a premysleným rozložením priestoru na viacerých úrovniach. Samostatný vstup na prízemie priamo z ulice podčiarkuje reprezentatívny efekt a je ideálny pre zákazníkov alebo pacientov.
Rozloženie plôch:
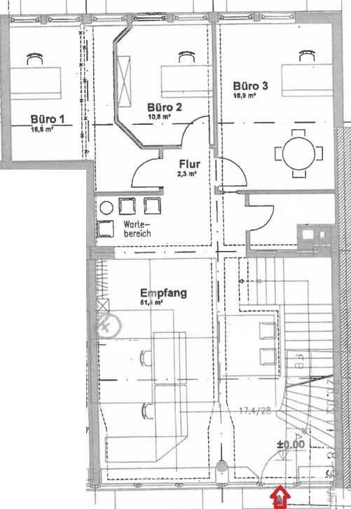
V prízemí sa nachádza príjemná recepcia s integrovanou čakárňou a 3 priestranné kancelárske či ordinácie miestnosti.
Prostredníctvom vnútorného schodiska sa dostanete do 1. poschodia. Tu je k dispozícii okrem malého čajového kútika celkovo 9 ďalších flexibilne využiteľných kancelárskych či ordinácie miestností.
V suteréne sa nachádzajú oddelené toalety pre dámy a pánov, ako aj ďalšie priestory, ktoré sú ideálne využiteľné ako archív alebo izba pre personál.
Celkovo jednotka obsahuje 12 kancelárskych či ordinácie miestností a ponúka tak optimálne podmienky pre väčšie tímy, komunitné ordinácie, advokátske kancelárie alebo poskytovateľov služieb.
Vybavenie:
• Udržiavaný a zrekonštruovaný stav
• Reprezentatívna recepcia
• Funkčné rozloženie priestoru
• Samostatné WC v suteréne
• Čajový kútik na poschodí
• Vlastný vstup priamo z ulice
Lokalita:
Nehnuteľnosť sa nachádza v jednej z najžiadanejších lokalít v Leverkusen-Wiesdorf. Wiesdorfer Platz a Rathaus-Galerie sú len pár krokov od nej. V bezprostrednom okolí je množstvo maloobchodných predajní, kancelárií, ordinácií a gastronomických zariadení.
Vysoká frekvencia chodcov a vynikajúca infraštruktúra robia túto lokalitu mimoriadne atraktívnou pre komerčných užívateľov so zákazníkovou prevádzkou.
Táto plocha je ideálna pre:
• Ordinácie lekárov alebo terapeutov
• Advokátske kancelárie (daňoví poradcovia, právnici, atď.)
• Poskytovateľov služieb
• Kancelárske zdieľania
Parametre nehnuteľnosti
| Vek | Nad 50 rokov |
|---|---|
| Číslo inzerátu | 1014435 |
| Cena za jednotku | 10 € / m2 |
| Stav | Po rekonštrukcii |
|---|---|
| Plocha kancelárie | 300 m² |
Čo táto nehnuteľnosť ponúka?
| MHD 1 minúta pešo |
V okolí nehnuteľnosti nájdete
Stále hľadáte to pravé?
Nastavte si strážneho psa. Ponuky vybrané na mieru dostanete súhrnne 1× denne e-mailom. S Premium profilom máte po ruke rovno 5 strážcov a keď sa niečo objaví, informujú vás obratom.









