
Prenájom bytu 2+1 • 82 m² bez realitkyErich-Böhmke-Str. 28, , Meklenbursko-Predpomoransko
Erich-Böhmke-Str. 28, , Meklenbursko-PredpomoranskoMHD 3 minúty pešo82 m² s 10 m² balkónom | Fleischervorstadt | energetická trieda A+ | podlahové kúrenie | druhý užívateľ
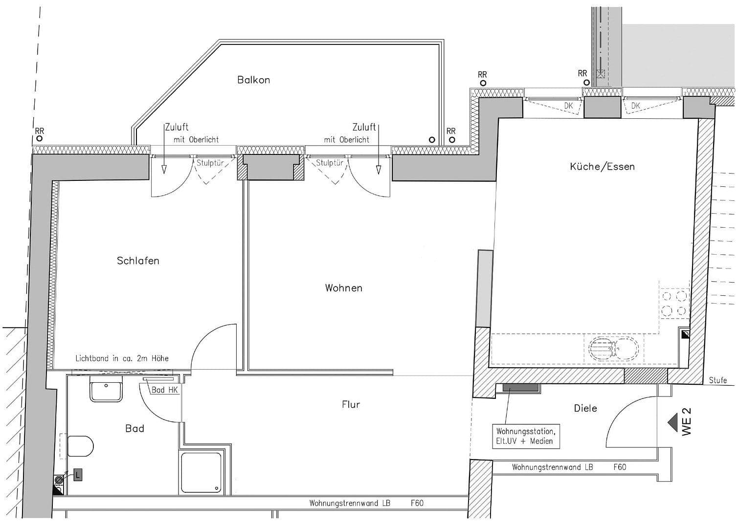
Ponúkaný loftový byt sa nachádza vo vyššom prízemí budovy postavenej v roku 1900, ktorá bola v roku 2024 kompletne zrekonštruovaná, v obľúbenej štvrti Fleischervorstadt. Pri rekonštrukcii bola odvádzaná práca s maximálnou starostlivosťou a láskou k detailom: staré terazzo parapety boli znovu využité, novo inštalované oceľové trámy a omietnuté múry vonkajšej steny zostali viditeľné. Otvorenú kuchyňu a obývaciu izbu delí historické priemyselné okno pôsobiace ako priečka. Jednotná, ľahko udržiavateľná cementová podlaha bez spár spolu s podlahovým kúrením zabezpečuje príjemné teplo.
Z oboch, obývacej izby aj spálne, je prístup na 10 m² veľký balkón orientovaný na východ, ktorý ráno zbiera slnečné lúče. Podlahové závesy umožňujú úplné zatienenie spálne aj obývacej izby. V chodbe sa nachádza nástenná skrinka presahujúca celú výšku miestnosti, ktorá ponúka veľa úložného priestoru a zároveň možnosť umiestniť a zapojiť práčku.
Nájomné pozostáva nasledovne:
– Základné nájomné: 984 €
– Poplatky vo výške 220 € zahŕňajú prirážku za vybavenie 80 €
(pre vstavanú kuchyňu, nástennú skrinku v chodbe, mierene závesy do obývacej izby a spálne), zálohu na náklady na kúrenie 30 € a zálohu na ostatné poplatky 200 €.
Byt je ideálny pre jednotlivcov a páry. Bohužiaľ nie je vhodný pre spolubývajúcich (dispozícia neumožňuje usporiadanie pre viac osôb).
Fleischervorstadt v Greifswalde je obľúbená, pokojná štvrť s veľmi dobrou infraštruktúrou a vysokou kvalitou života. Možnosti nákupu bežných potrieb, ako aj dostupnosť lekárov a poskytovateľov služieb, sú veľmi dobré. Verejná mestská a diaľková doprava je výborné prepojená, čo umožňuje flexibilnú mobilitu v meste aj mimo neho. Okolie so zelenými plochami a blízkosť centra mesta ponúkajú pestré možnosti voľnočasových aktivít.
Byt disponuje kvalitným vybavením: Vstavaná kuchyňa so značkovými spotrebičmi (AEG indukčná doska, Bosch rúra, Bosch Silence umývačka riadu) bola vyrobená na mieru, kúpeľňa ponúka bezbariérovú sprchu s termostatom a umývadlo s kovovým rámom a zrkadlom. Svetelný pás vedúci do spálne zabezpečuje počas dňa dostatok svetla.
Je možnosť prevziať chladničku v retro dizajne, televízor s otočnou nástenou držiakom, kuchynský stôl so stoličkami, malý pracovný stôl a osvetlenie vo všetkých izbách za miernu odkupnú cenu od bývalej nájomníčky. Podrobnosti si radi dohodneme osobne.
Parametre nehnuteľnosti
| Vek | Nad 50 rokov |
|---|---|
| Stav | Veľmi dobrý |
| Poschodie | 1. poschodie z 3 |
| PENB | A - Mimoriadne úsporné |
| Cena za jednotku | 12 € / m2 |
| Dostupné od | 16. 5. 2026 |
|---|---|
| Dispozícia | 2+1 |
| Číslo inzerátu | 1014420 |
| Úžitková plocha | 82 m² |
Čo táto nehnuteľnosť ponúka?
| Balkón | |
| MHD 3 minúty pešo |
| Pivnica |
V okolí nehnuteľnosti nájdete
Stále hľadáte to pravé?
Nastavte si strážneho psa. Ponuky vybrané na mieru dostanete súhrnne 1× denne e-mailom. S Premium profilom máte po ruke rovno 5 strážcov a keď sa niečo objaví, informujú vás obratom.

























