Predaj bytu 3+1 • 78 m² bez realitky, Severné Porýnie - Westfálsko
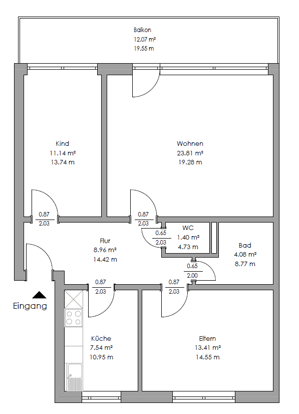
, Severné Porýnie - WestfálskoMHD 1 minúta pešo • ParkovanieTento atraktívny 3-izbový byt s približne 78 m² obytného priestoru sa nachádza v 1. poschodí udržiavaného viacrodinného domu v Lotte. Byt disponuje balkónom, ktorý láka na oddych, a tiež parkovacím miestom pre vaše vozidlo. Samostatné hosťovské WC a pivnica ponúkajú dodatočný komfort a úložný priestor. Byt je vybavený kvalitným zariadením a bude voľný na nastěhovanie od 1. mája 2026. Budova má celkovo 4 poschodia.
V roku 2024 bolo plynové kúrenie zmodernizované.
Nebudú sa účtovať žiadne poplatky sprostredkovateľa.
Lotte je očarujúca obec, ktorá ponúka dobrú infraštruktúru s možnosťami nákupu pre každodenné potreby, ako aj s lekármi a školami. Napojenie na verejnú dopravu je zabezpečené, čo uľahčuje výlety do okolia. Okolie vyzýva na voľnočasové aktivity v prírode a ponúka pokojné obytné prostredie. Váš nový domov sa nachádza len 15 minút od centra Osnbrücku.
Byt bol v roku 2026 kvalitne zrekonštruovaný. Patrí k nemu okrem iného 2 nové radiátory, nové okno v obývačke a elektroinštalácia. Ostatné okná boli už v roku 2010 vymenené. Ďalšie práce je možné vidieť na obrázkoch.
Parametre nehnuteľnosti
| Vek | Nad 50 rokov |
|---|---|
| Stav | Po rekonštrukcii |
| Poschodie | 1. poschodie z 4 |
| PENB | C - Hospodárne |
| Cena za jednotku | 2 551,28 € / m2 |
| Dostupné od | 29. 4. 2026 |
|---|---|
| Dispozícia | 3+1 |
| Číslo inzerátu | 1014416 |
| Úžitková plocha | 78 m² |
Čo táto nehnuteľnosť ponúka?
| Balkón | |
| Parkovanie |
| Pivnica | |
| MHD 1 minúta pešo |
V okolí nehnuteľnosti nájdete
Stále hľadáte to pravé?
Nastavte si strážneho psa. Ponuky vybrané na mieru dostanete súhrnne 1× denne e-mailom. S Premium profilom máte po ruke rovno 5 strážcov a keď sa niečo objaví, informujú vás obratom.











