Predaj domu • 215 m² bez realitkyBittlmairstr. 2 Ingolstadt Ingolstadt Bayern 85051
Bittlmairstr. 2 Ingolstadt Ingolstadt Bayern 85051MHD 3 minúty pešo • ParkovanieTento zmodernizovaný trojrodinný dom predstavuje atraktívnu kapitálovú investíciu so stabilnými príjmami z prenájmu a nízkym rizikom údržby.
Vďaka rozsiahlym modernizáciám v posledných rokoch – najmä v roku 2024 – sa nehnuteľnosť nachádza vo veľmi udržiavanom stave.
Nehnuteľnosť je kompletne prenajatá a ponúka dodatočný rozvojový potenciál vďaka existujúcim dohodám o stupňovanom prenájme.
Príjmy z prenájmu:
Aktuálny ročný čistý nájom: cca 37.200 €
Špecifiká / Výhody:
- Rozdelenie na spoločné vlastníctvo (WEG) → perspektívne aj individuálny predaj
- Plne prenajaté → okamžité príjmy
- Moderné vybavenie → potrebné iba minimálne investície
- Atraktívne veľkosti bytov → dobrá prenajímateľnosť
- Kombinácia stability a rozvojového potenciálu
Nehnuteľnosť sa nachádza v žiadanej rezidenčnej oblasti Ingolstadtu s dobrou infraštruktúrou a stabilným dopytom po bývaní.
Ingolstadt je charakterizovaný silnou ekonomikou, najmä vďaka blízkosti k Audi, a preto ponúka dlhodobo udržateľnú prenajímateľnosť.
Rozdelenie bytov:
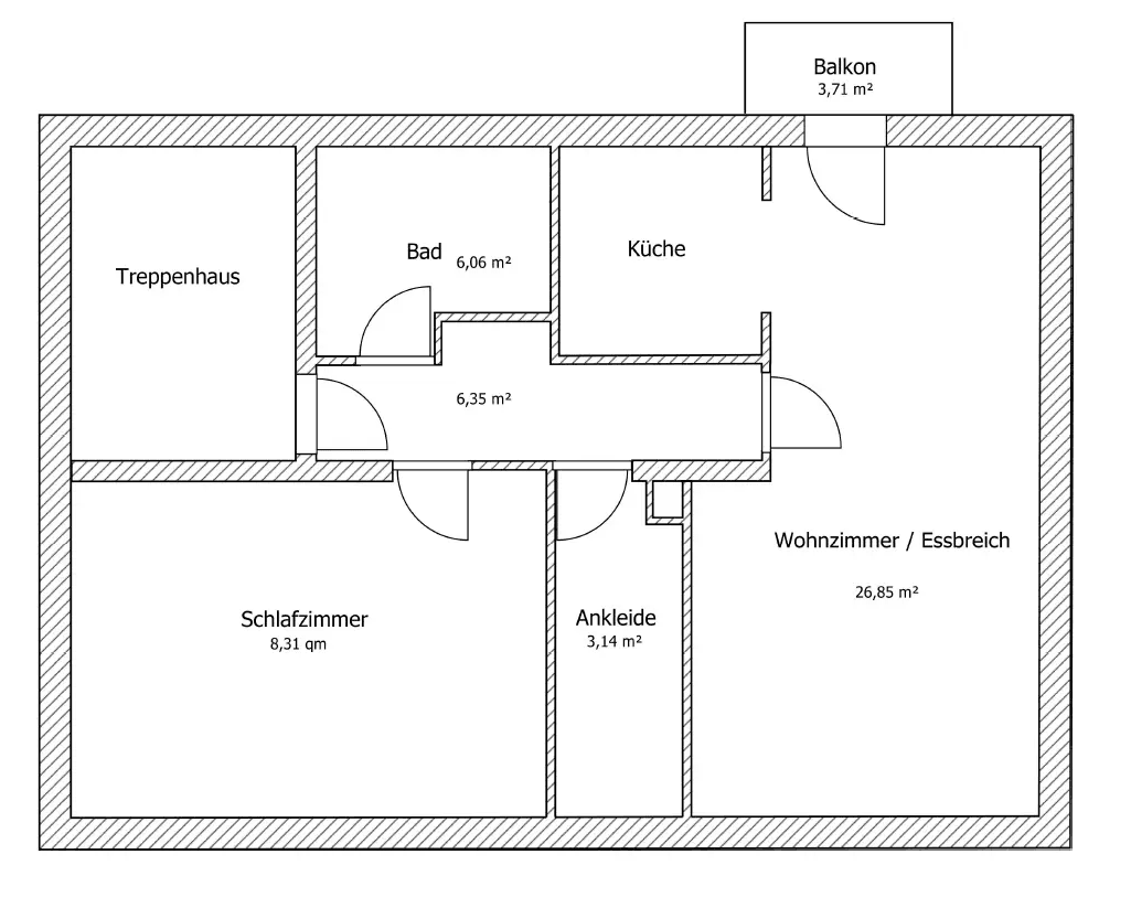
Prízemie (cca 75 m²)
4 izby
Právo na využitie záhradného priestoru
Parkovacie miesto v carporte
Poschodie (cca 75 m²)
4 izby
Balkón
Parkovacie miesto v carporte
Podkrovie (cca 56 m², úprava v roku 2024)
2,5 izby
Balkón
Vonkajšie parkovacie miesto
Modernizácie:
Nové plynové vykurovanie (Viessmann) – 2021
Kompletná rekonštrukcia podkrovia – 2024
Všetky kúpeľne kompletne zrekonštruované – 2024
Nové balkóny (kovová konštrukcia) – 2024
Čiastočne nové okná (prízemie/poschodie) – 2024
Fasáda natretá – 2024
Žiadne zjavné oneskorenie v rekonštrukcii.
Parametre nehnuteľnosti
| Vek | Nad 50 rokov |
|---|---|
| Stav | Po rekonštrukcii |
| Úžitková plocha | 215 m² |
| Celkové poschodia | 3 |
| Dostupné od | 29. 4. 2026 |
|---|---|
| Číslo inzerátu | 1014393 |
| Plocha pozemku | 355 m² |
| Cena za jednotku | 4 348,84 € / m2 |
Čo táto nehnuteľnosť ponúka?
| Balkón | |
| Parkovanie | |
| Terasa |
| Pivnica | |
| MHD 3 minúty pešo |
V okolí nehnuteľnosti nájdete
Stále hľadáte to pravé?
Nastavte si strážneho psa. Ponuky vybrané na mieru dostanete súhrnne 1× denne e-mailom. S Premium profilom máte po ruke rovno 5 strážcov a keď sa niečo objaví, informujú vás obratom.











