Predaj domu 4+1 • 120 m² bez realitkyFärbergasse 5, , Bádensko-Wurttembersko
Färbergasse 5, , Bádensko-WurttemberskoMHD 2 minúty pešo • Parkovanie*Dom bez poplatku makléra v historickom centre Ettlingenu
Architektonicky zaujímavý mestský dom (postavený v roku 1988) s parkovacím miestom a terasou – priamo v srdci historickej štvrte a v bezprostrednej blízkosti pešej zóny a rieky Alb.
Približne 120 m² obytného priestoru sa rozprestiera na posunovaných úrovniach s celkovo štyrmi izbami a otvorenou galériou. Práve pri dome sa nachádza parkovacie miesto pre motorové vozidlo – v tejto centrálnej lokalite historickej štvrte je to rarita.
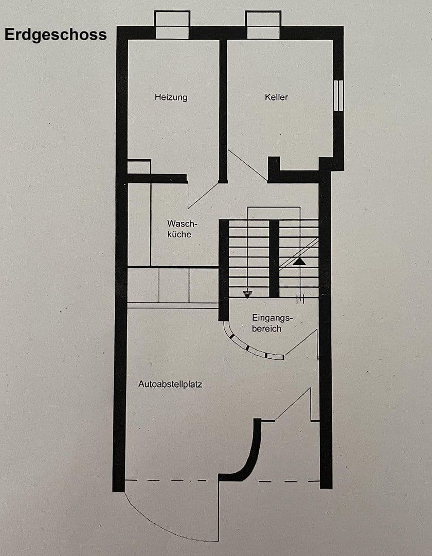
Zo vstupnej haly máte možnosť dostať sa buď do pivnice s veľkorysým úložným priestorom a práčovňou, alebo na vyššie poschodia s obytnými a spálňovými priestormi. Dve rovnako veľké izby orientované na svetlý dvor sú vhodné ako detská izba alebo pracovňa. Väčšia izba s pripojenou toaletou je ideálna ako hlavná spálňa.
Otvorený obývací a kuchynský priestor pôsobí pôsobivo vďaka množstvu svetla. Švédska pec môže – v kombinácii s plynovým kondenzáciou vykurovacím systémom – zabezpečiť útulné teplo. Otvorená galéria a strešná terasa na horných poschodiach ponúkajú ďalšie miesta na oddych pre chvíle relaxu na pohovke alebo na slnku.
Najdôležitejšie na prvý pohľad:
• Rok výstavby 1988, cca 120 m² obytného priestoru, 4 izby, posunované úrovne
• Absolútne tichá lokalita blízko Alb a historického centra (Färbergasse)
• Dve rovnako veľké detské/pracovné izby
• Hlavná spálňa s pripojenou toaletou
• Obývacia/jedálenská izba s otvorenou kuchyňou
• Strešná terasa a otvorená galéria
• Parkovacie miesto (pre malé/stredné vozidlo) priamo pri dome
• Veľké pivničné priestory v historickom múri
• Plynový kondenzáciou vykurovací systém z roku 2013 (servis do 2025)
K dispozícii ihneď, bez poplatku makléra
Nehnuteľnosť sa nachádza v centrálnom a predsa veľmi pokojnom prostredí historického centra Ettlingenu. Námestie, zámok a množstvo kaviarní, reštaurácií a nákupných možností sú pohodlne dostupné pešo.
Materské školy, školy, lekári a lekárne sa nachádzajú v bezprostrednom okolí. Aj možnosti pre voľnočasové aktivity a oddych pozdĺž rieky Alb a v parku Horbach sú vzdialené len pár minút chôdze.
Vynikajúce napojenie na verejnú dopravu je zabezpečené vďaka blízkym autobusovým a električkovým zastávkam. Cez cestnú komunikáciu B3 a diaľnicu A5 sa dostanete do Karlsruhe a okolitých miest v krátkom čase.
Energetický preukaz z roku 2019 (trieda D) je k dispozícii a môže byť preverený počas obhliadky.
Všetky údaje sú uvádzané bez záruky presnosti. Radi sa Vám prostredníctvom obhliadky osobne predstaví nehnuteľnosť. Detaily je možné na mieste preštudovať a prediskutovať.
Parametre nehnuteľnosti
| Vek | Nad 50 rokov |
|---|---|
| Dispozícia | 4+1 |
| PENB | D - Menej hospodárne |
| Plocha pozemku | 70 m² |
| Dostupné od | 27. 4. 2026 |
|---|---|
| Číslo inzerátu | 1014174 |
| Úžitková plocha | 120 m² |
| Cena za jednotku | 5 408,33 € / m2 |
Čo táto nehnuteľnosť ponúka?
| Pivnica | |
| MHD 2 minúty pešo |
| Parkovanie |
V okolí nehnuteľnosti nájdete
Stále hľadáte to pravé?
Nastavte si strážneho psa. Ponuky vybrané na mieru dostanete súhrnne 1× denne e-mailom. S Premium profilom máte po ruke rovno 5 strážcov a keď sa niečo objaví, informujú vás obratom.















