
Prenájom kancelárie • 143 m² bez realitkyPrinz-Albert-Strasse 13 Bonn Südstadt Nordrhein-Westfalen 53113
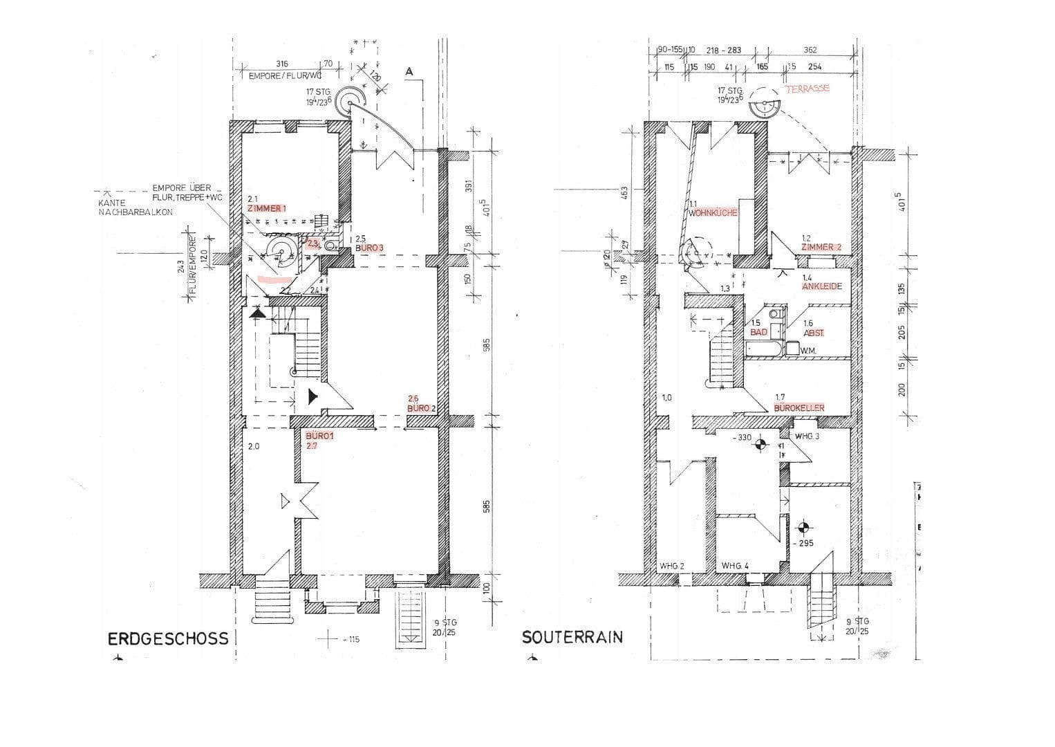
Prinz-Albert-Strasse 13 Bonn Südstadt Nordrhein-Westfalen 53113MHD 1 minúta pešoDie reprezentatívne kancelárske alebo ordinácie v prízemí a v poloprijemnom suteréne orientovanom na záhradu historickej budovy z obdobia Gründerzeit sú vhodné na rôzne využitie, aj v kombinácii s bývaním, keďže časť priestorov môže byť aj samostatne prístupná. Dom sa nachádza centrálne, len pár krokov od hlavnej stanice v Bonne, a ponúka čaro obdobia Gründerzeit so svojimi vysokými stropmi, profilovanými dverami, starým parketovým podlahovým krytím a priestranným predsienňou a schodiskom. V roku 1998 bol dom celkovo a s láskou zrekonštruovaný vlastníkom, architektonickým párom, pričom bolo zachované historické dedičstvo, ktoré bolo doplnené decentnými novými, detailne navrhnutými prvkami.
K prízemiu patrí okrem malej kúpeľne aj ďalšia kúpeľňa, a v suteréne sa nachádza chodba a skladová miestnosť. Kuchyňa a samostatná miestnosť pre tím sú orientované k terase, ktorá v lete láka na oddychové prestávky.
Záhrada na zadnej strane budovy ponúka aj z prízemia zelený výhľad a je navyše prístupná z vonkajších schodov.
Súčasní používatelia rozšírili svoje podnikanie natoľko, že priestory už bohužiaľ nestačia. Prebratie častí zariadenia je možné a prípadne je možné dohodnúť aj skorší termín odovzdania.
Nájomné je udávané netto, podľa využitia zvýšené o zákonnú DPH.
Prosím, pošlite nám výstižnú dopyt ohľadom Vášho zámery. Radi zodpovieme vaše otázky e-mailom alebo Vám zavoláme späť.
Objekt je centrálne umiestnený pri bonnskej hlavnej stanici, s výbornou dostupnosťou verejnou dopravou. Všetky obchody a zariadenia dennej potreby sa nachádzajú v pešej vzdialenosti.
Parametre nehnuteľnosti
| Vek | Nad 50 rokov |
|---|---|
| Stav | Dobrý |
| Plocha kancelárie | 143 m² |
| Dostupné od | 1. 9. 2026 |
|---|---|
| Číslo inzerátu | 1014133 |
| Cena za jednotku | 12,24 € / m2 |
Čo táto nehnuteľnosť ponúka?
| MHD 1 minúta pešo |
| Terasa |
V okolí nehnuteľnosti nájdete
Stále hľadáte to pravé?
Nastavte si strážneho psa. Ponuky vybrané na mieru dostanete súhrnne 1× denne e-mailom. S Premium profilom máte po ruke rovno 5 strážcov a keď sa niečo objaví, informujú vás obratom.


























