
Prenájom bytu 2+1 • 52 m² bez realitkyParkstraße 21 Spandau Hakenfelde Berlin 13585
Parkstraße 21 Spandau Hakenfelde Berlin 13585MHD 5minút pešoNa prenájom je k dispozícii kvalitný, moderný 2-izbový byt s približne 52 m² obytného priestoru na adrese Parkstraße, 13585 Berlín (Spandau). Byt sa nachádza vo 4. nadzemnom poschodí novostavby v atraktívnej, novo rozvinutej obytnom štvrti. Výťah v schodisku zabezpečuje pohodlný prístup do bytu.
Byt pôsobí moderným, otvoreným obývacím priestorom s integrovanou kuchyňou, ktorá je už zahrnutá v nájomnom.
Spálňa je dobre navrhnutá a ponúka dostatočný priestor.
Kúpeľňa je vybavená podľa súčasných štandardov a disponuje bezprahovou sprchou. Balkon láka na oddych a ponúka pekný výhľad do pokojného obytného prostredia.
Vlastná pivnica poskytuje ďalší úložný priestor. Výťah umožňuje komfortný prístup do bytu – mimoriadne praktický v každodennom živote.
V celom byte je inštalované príjemné podlahové kúrenie, ktoré zabezpečuje moderný zážitok z bývania a rovnomerné teplo.
Aktuálny nábytok, ktorý sa v byte nachádza, môže byť podľa dohody prevzatý súčasnou nájomkyňou.
Celkovo ide o veľmi uprataný, akosi nový byt, ideálny pre jednotlivcov alebo páry.
Byt sa nachádza v Parkstraße v Berlíne-Spandau, v perspektívnej obytnom oblasti priamo pri rieke Havel.
• len niekoľko minút pešo k rieke Havel / promenáde
• pokojná, moderná obytná zóna s množstvom zelene
• cca 1,2 km k historickému centru Spandau s množstvom nákupných možností
• dobré spojenie s MHD (autobus + stanica Spandau so S a diaľkovou železnicou)
• supermarkety, materské školy, školy a lekári v bezprostrednej blízkosti
Lokalita kombinuje bývanie v prírodnom prostredí pri vode s dobrou dostupnosťou do berlínskeho centra.
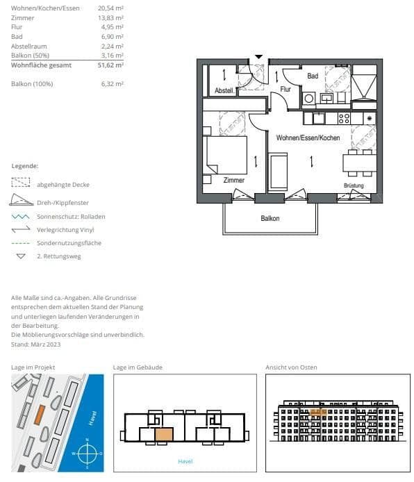
• cca 52 m² obytného priestoru
• 2 izby (obývacia/jedálenská miestnosť + spálňa)
• balkón s príjemným výhľadom
• 4. nadzemné poschodie
• výťah v budove
• podlahové kúrenie vo všetkých miestnostiach
• moderná vstavaná kuchyňa (zahŕňa sa v nájme)
• k dispozícii pivnica
• svetlý, priestranný obývací/jedálenský priestor
• moderná kúpeľňa so sprchou a pripojením pre práčku
• kvalitné podlahové krytiny s dreveným vzhľadom
• veľké okná zaisťujú dostatok denného svetla
• premyslené rozloženie
Pre Vašu žiadosť potrebujeme nasledujúce doklady:
– Vyplnené vlastné hodnotenie
– Kópia občianskeho preukazu alebo cestovného pasu
– Aktuálne doklady o príjme (posledné 3 mesiace)
– Výpis zo Schufa (nesmie byť starší ako 3 mesiace)
– Potvrdenie o bezdlhovom nájme od predchádzajúceho prenajímateľa (ak je k dispozícii)
– Zmluva o zamestnaní alebo potvrdenie od zamestnávateľa (voliteľné, ale výhodné)
Radi si ich môžete priniesť na obhliadku alebo mi ich zaslať vopred.
Teším sa na stretnutie s Vami.
Parametre nehnuteľnosti
| Vek | Nad 50 rokov |
|---|---|
| Stav | Veľmi dobrý |
| Poschodie | 4. poschodie z 4 |
| PENB | B - Veľmi úsporné |
| Cena za jednotku | 26,92 € / m2 |
| Dostupné od | 1. 6. 2026 |
|---|---|
| Dispozícia | 2+1 |
| Číslo inzerátu | 1014127 |
| Úžitková plocha | 52 m² |
Čo táto nehnuteľnosť ponúka?
| Balkón |
| MHD 5 minút pešo |
V okolí nehnuteľnosti nájdete
Stále hľadáte to pravé?
Nastavte si strážneho psa. Ponuky vybrané na mieru dostanete súhrnne 1× denne e-mailom. S Premium profilom máte po ruke rovno 5 strážcov a keď sa niečo objaví, informujú vás obratom.














