
Predaj bytu 2+1 • 60 m² bez realitkyStamsrieder Weg 10, , Sasko
Táto exkluzívna 2-izbová bytosť sa nachádza v 1. poschodí 15-bytejnového domu, ktorý je možné prevziať od 01.06.2026 (nájomná zmluva končí, keďže nájomníci sa sťahujú v rámci domu).
Lokalita uprostred domu s neobmedzeným výhľadom na verejný park a južným balkónom s voľnými stranami na východ a západ vyvoláva celoročnú dovolenkovú atmosféru.
K bytu patrí priestranné parkovacie miesto v podzemnej garáži, ktorá je prístupná cez dom.
Okrem toho ponúka vlastnú pivnicu, ktorá slúži ako praktický úložný priestor pre rôzne predmety.
V dome panuje priateľská a pokojná atmosféra, pričom niektorí obyvatelia žijú tu už mnoho rokov. Celkovo ide o pokojnú, vyvinutú obytnú lokalitu s prevažne stabilným a spoľahlivým susedstvom.
Kesselsdorf je časťou Wilsdruffu v okresnom regióne Saská Švajčiarsko – východné Erzgebirge (Sasko), ktorý susedí iba štyri kilometre na západ s hlavné mesto Drážďany. Jadrové mesto Wilsdruff sa nachádza približne štyri kilometre severozápadne od Kesselsdorf.
Nakupovacie možnosti, škola a materská škola sú veľmi dobre dostupné.
Prístup k diaľnici A17 je len 1,5 km vzdialený a dá sa dosiahnuť za 3 minúty, pričom najbližšia autobusová zastávka je vzdialená 200 m.
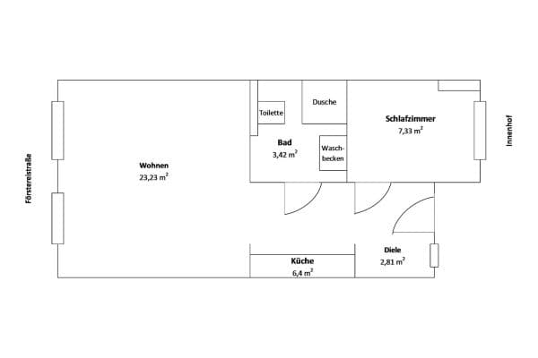
Výbavu bytu možno označiť za nadštandardnú:
- Masívne parkety (plné parkety) v obývacej izbe
- Kuchyňa a kúpeľňa so sprchou a vaňou sú obložené dlažbou
- Veľmi udržiavaná kuchynská linka
- Čiastočne krytý balkón, ktorý rozširuje obytný priestor a láka na oddych
- Pivničný priestor pre dodatočné úložné možnosti
- Parkovacie miesto v podzemnej garáži pre bezstarostné parkovanie
BWS Immobilien GmbH
An der Kalkhütte 4
88131 Lindau (Bodensee)
AG Kempten (Allgäu) HRB 14599
St.Nr. 127/122/90461
Riaditelia: Holger Bongardt, Martin Bongardt
Upozornenie k provízii: Táto nehnuteľnosť je ponúkaná priamo od vlastníka bez dodatočnej provízie pre kupujúceho. S potenciálnym kupcom neuzatvárame žiadnu zmluvu s realitnou kanceláriou. K tomu nedôjde ani prostredníctvom odovzdania dokumentov, dohodnutia termínu prehliadky či prijatia nákupnej ponuky.
Keďže byt je momentálne ešte obývaný, boli fotografie upravené pomocou umelej inteligencie s cieľom odstrániť osobné predmety.
Parametre nehnuteľnosti
| Vek | Nad 50 rokov |
|---|---|
| Stav | Dobrý |
| Poschodie | Prízemie |
| PENB | C - Hospodárne |
| Cena za jednotku | 2 450 € / m2 |
| Dostupné od | 1. 6. 2026 |
|---|---|
| Dispozícia | 2+1 |
| Číslo inzerátu | 1013873 |
| Úžitková plocha | 60 m² |
Čo táto nehnuteľnosť ponúka?
| Balkón | |
| Garáž |
| Pivnica | |
| MHD 3 minúty pešo |
V okolí nehnuteľnosti nájdete
Stále hľadáte to pravé?
Nastavte si strážneho psa. Ponuky vybrané na mieru dostanete súhrnne 1× denne e-mailom. S Premium profilom máte po ruke rovno 5 strážcov a keď sa niečo objaví, informujú vás obratom.














