Prenájom nebytového priestoru 7+1 • 178 m² bez realitkyMühlenstraße 5, , Severné Porýnie - Westfálsko
Mühlenstraße 5, , Severné Porýnie - WestfálskoMHD 2 minúty pešo • VýťahV srdci Drensteinfurtu vzniká do konca 2026 vysoko kvalitný obytný a obchodný dom s 9 obytnými jednotkami a veľkorysým obchodným priestorom v prízemí.
Jednotka s rozlohou približne 178 m² sa nachádza priamo pri novo upravenom trhovom námestí a ponúka vynikajúcu viditeľnosť aj reprezentatívnu lokalitu.
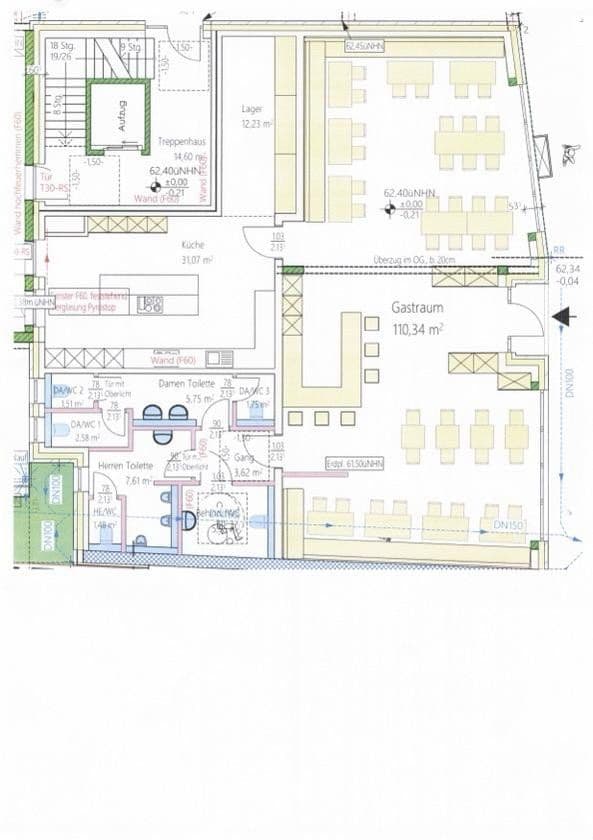
Priestor je momentálne plánovaný ako gastronómia (príklad pôdorysu je priložený), no dá sa flexibilne prispôsobiť vášmu využitiu. Pôdorys aj vybavenie sa stanovujú v úzkej spolupráci s budúcim nájomcom.
Drensteinfurt je atraktívne mesto pre dojíždzaných; podnik sa nachádza centrálne v historickom jadre mesta – priamo pri trhovom námestí. Vysoká kúpna sila obyvateľov, vysoký podiel vlastníctva a vybudovaná štruktúra centra mesta poskytujú najlepšie predpoklady pre udržateľný obchodný úspech.
Oblasť má výborné dopravné spojenie:
• Železničná stanica Drensteinfurt je pešo dostupná
• Viackrát za hodinu vlakové spojenie do Münsteru a Hamm
• Rýchly prístup k diaľniciam A1 a A2
Energeticky efektívna novostavba
• Teplotné čerpadlo
• Trojité zasklenie
• Optické pripojenie
• Kvalitná fasádna úprava
• Moderná, reprezentatívna architektúra
• Dokončenie koncom roku 2026 – istota časového plánu
Obchodný priestor sa nachádza v modernom obytnom a obchodnom dome v srdci Drensteinfurtu.
Vybudovanie priestoru prebieha v úzkej spolupráci s budúcim nájomcom, čo umožňuje individuálne plánovanie pôdorysu, technických pripojení aj detailov vybavenia presne podľa vášho konceptu využitia.
Dokončenie projektu je plánované na koniec roku 2026. Včasná koordinácia prináša istotu plánovania a optimálne možnosti realizácie.
Priestor je ideálny pre dlhodobo orientovaných prevádzkovateľov, ktorí hľadajú modernú novostavbu v centrálnej lokalite trhového námestia a kladú dôraz na udržateľnú výstavbu, kvalitnú architektúru a prostredie s vysokou kúpnou silou.
Cena na vyžiadanie.
Seriózne dopyty s konceptom využitia sú vítané.
Parametre nehnuteľnosti
| Vek | Nad 50 rokov |
|---|---|
| Dispozícia | 7+1 |
| Plocha nebytového priestoru | 178 m² |
| Stav | Novostavba |
|---|---|
| Číslo inzerátu | 1013727 |
| Cena za jednotku | 0 € / m2 |
Čo táto nehnuteľnosť ponúka?
| Bezbariérový prístup | |
| Výťah |
| Pivnica | |
| MHD 2 minúty pešo |
V okolí nehnuteľnosti nájdete
Stále hľadáte to pravé?
Nastavte si strážneho psa. Ponuky vybrané na mieru dostanete súhrnne 1× denne e-mailom. S Premium profilom máte po ruke rovno 5 strážcov a keď sa niečo objaví, informujú vás obratom.






