
Prenájom bytu 3+1 • 63 m² bez realitkyAuerbachstr. 38 Gera Gera Thüringen 07549
Auerbachstr. 38 Gera Gera Thüringen 07549MHD 4 minúty pešo • ParkovanieNa prenájom je k dispozícii očarujúci, kompletne zrekonštruovaný byt, ktorý sa okamžite môže stať vašim novým domovom.
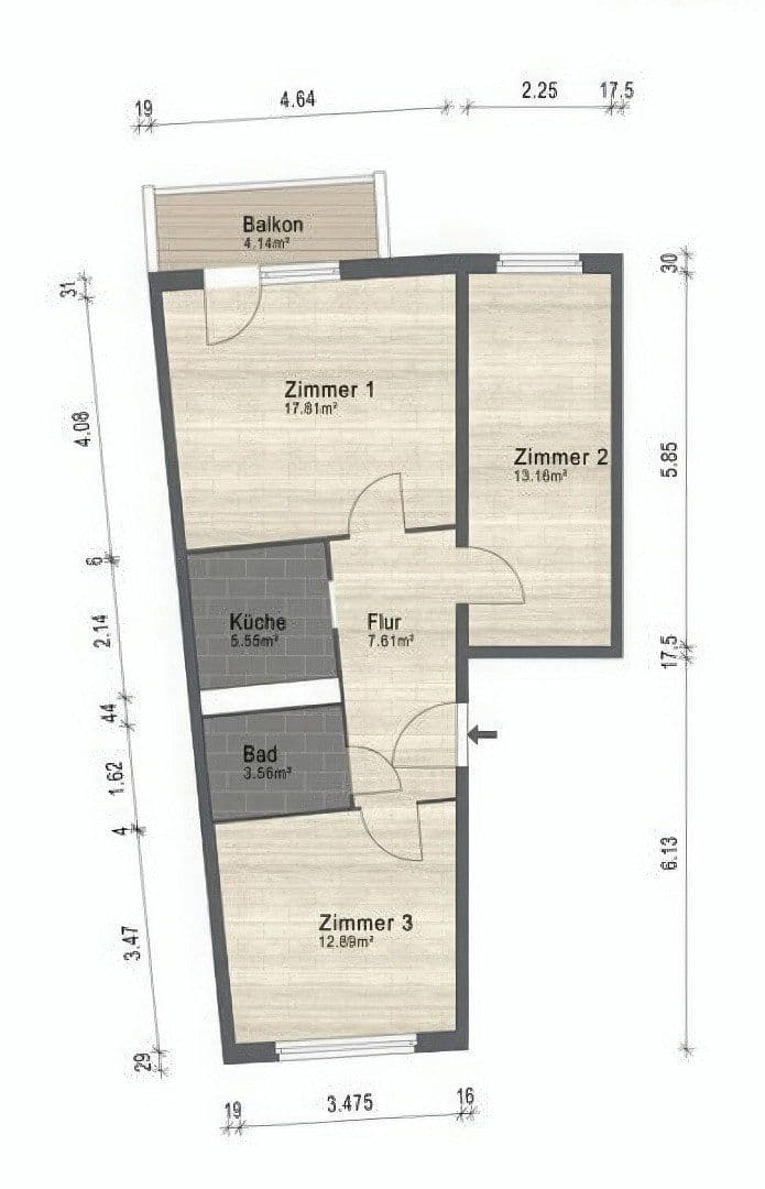
Pri vstupe do bytu sa dostanete cez schodisko do priestrannej chodby, ktorá ponúka dostatok miesta pre váš šatník. Odtiaľ máte prístup ku všetkým izbám. Zavesený strop je vybavený modernými LED vstavanými svietidlami, ktoré vytvárajú teplú a príjemnú atmosféru.
Ďalšia izba vám poskytuje flexibilné možnosti využitia – či už ako útulná detská izba, príjemná izba pre hostí, alebo inšpiratívna pracovňa. K bytu patrí aj praktický suterénny priestor.
Vďaka nedávno vykonaným izolačným opatreniam a vysokej energetickej účinnosti vykurovacieho systému sa nemusíte obávať vysokých nákladov na energiu.
Neváhajte ma kontaktovať pre podrobnú video prehliadku.
Verejné parkoviská sú vám k dispozícii priamo pred dverami, takže sa nemusíte obávať hľadania miesta na parkovanie. V blízkosti sa nachádza aj garážový komplex, ktorý ponúka ďalšie možnosti prenájmu pre vaše vozidlo.
Obchody s bežnými potrebami, športoviská a verejná doprava sú pohodlne dostupné pešo len za niekoľko minút, takže všetko, čo potrebujete, máte priamo za vašimi dverami.
Vykonané rekonštrukčné opatrenia:
• Nová elektroinštalácia bytu
• Nové vodovodné/odpadové potrubia
• Laminátové podlahy
• Nové tapety a štruktúrovaná omietka
• Novo obložená kuchyňa
• Kvalitná vstavaná kuchyňa vrátane chladničky, rúry, keramickej varnej dosky, umývačky riadu a svietidiel
• Medzikuchynský pult spájajúci kuchyňu a obývačku (obalený renovovaným rámom z vidieckeho konštrukčného systému)
• Úsporný dverový rám medzi chodbou a obývacou izbou
• Podlahová krytina kúpeľne bola obnovená, zatiaľ čo zvyšok bol zrekonštruovaný pred niekoľkými rokmi
Ďalšie výhody:
• Suterénny priestor
• Sušiareň
• Balkón so štýlovou podlahovou krytinou
• Zelená plocha
Možnosti využitia:
• pre rodiny
• pre slobodných
• ako spolubývanie
• ako komerčný byt
• pre majiteľov domácich zvierat
• a pod.
Parametre nehnuteľnosti
| Vek | Nad 50 rokov |
|---|---|
| Dispozícia | 3+1 |
| Číslo inzerátu | 1013594 |
| Úžitková plocha | 63 m² |
| Stav | Po rekonštrukcii |
|---|---|
| Poschodie | 4. poschodie |
| PENB | B - Veľmi úsporné |
| Cena za jednotku | 7,86 € / m2 |
Čo táto nehnuteľnosť ponúka?
| Balkón | |
| Parkovanie |
| Pivnica | |
| MHD 4 minúty pešo |
V okolí nehnuteľnosti nájdete
Stále hľadáte to pravé?
Nastavte si strážneho psa. Ponuky vybrané na mieru dostanete súhrnne 1× denne e-mailom. S Premium profilom máte po ruke rovno 5 strážcov a keď sa niečo objaví, informujú vás obratom.


































