Predaj domu 5+1 • 137 m² bez realitky, Bavorsko
, BavorskoMHD do minúty pešo • ParkovanieDomy so srdcom a rozumom
Plánované sú energeticky efektívne rodinné domy v pevnej tehlicovej masívnej technike.
• Dva poschodia (prízemie a nadzemie)
• Carport + ďalšie parkovacie miesto
• Vlastná záhrada s terasou: veľkosť pozemkov sa líši podľa stavebnej parcely
S dôrazom na trvácne, ekologicky priaznivé riešenia a konštrukcie sa používajú vysoko efektívne tehly bez izolačnej výplne, ktoré predstavujú udržateľnosť čo do materiálu aj nákladov na vykurovanie. Dýchajúci omietací systém zabezpečuje príjemnú a zdravú vnútornú klímu a podporuje prirodzenú reguláciu vlhkosti vzduchu. Kvalitné plastové okná v kombinácii s práškovou úpravou kovových žalúzií a drevená strešná konštrukcia s tehlicovým krytím tvoria vzhľad exteriéru. Izolovaná podhľad nad nadzemím vytvára priestranný úložný priestor a významne prispieva k letnej tepelnému ochrane budovy.
Exteriérové vybavenie
Kvalitné základné vybavenie s trávnou zmesou, dláždeným príjazdom a carportom. Priestor si môžete zariadiť individuálne – či už ako kvetinové záhony, ihrisko, alebo oddychovú zónu.
Energetický koncept
Domy spĺňajú energetický štandard KfW-40 a sú dotované. Fotovoltaická elektráreň, trojsklené izolačné okná, vzduchové tepelné čerpadlo alebo diaľkové teplo, ako aj podlahové kúrenie sú zahrnuté v cene a zaisťujú nízke náklady na energiu a vysoký komfort. Menej techniky znamená nižšie náklady na údržbu – spoliehame sa na osvedčené systémy.
Lokalita a štvrť
Mesto Kelheim v Dolnom Bavorsku s približne 17 000 obyvateľmi sa malebne nachádza medzi údolím Dunaja a Altmühltalu a vyniká dominantou – slávnou Befreiungshalle. So svojím historickým starým mestom, bohatou ponukou kultúrnych a rekreačných aktivít a pôsobivým prírodným okolím ponúka Kelheim vysokú kvalitu života a je atraktívnym miestom pre bývanie aj život. Kelheim zároveň poskytuje rozsiahlu vzdelávaciu ponuku s modernými školami a materskými škôlami pre rodiny. Centrum mesta láka rôznymi obchodmi a supermarketmi, ktoré dopĺňajú útulné kaviarne a reštaurácie obohacujúce mestský život.
V oblasti Hohenpfahl-Západ, severne od Dunaja, vzniká moderná obytná štvrť s rodinnými domami, dvojdomami, bytmi a zariadeniami pre rodinu a sociálne služby. Súčasťou je aj plán na výstavbu malých obchodíkov a jednej kaviarne. Školy (FOS/BOS) a Donaupark ako centrum lokálneho zásobovania sú pešo dosiahnuteľné.
Individuálne želania
Extra vybavenie a zmeny v dispozícii sú možné (v prípade potreby môžu vzniknúť príplatkové náklady) a môžete si ich vybrať podľa seba. Je taktiež možnosť prispieť vlastnými prácami pri úpravách interiéru. Tak vznikne váš jedinečný domov!
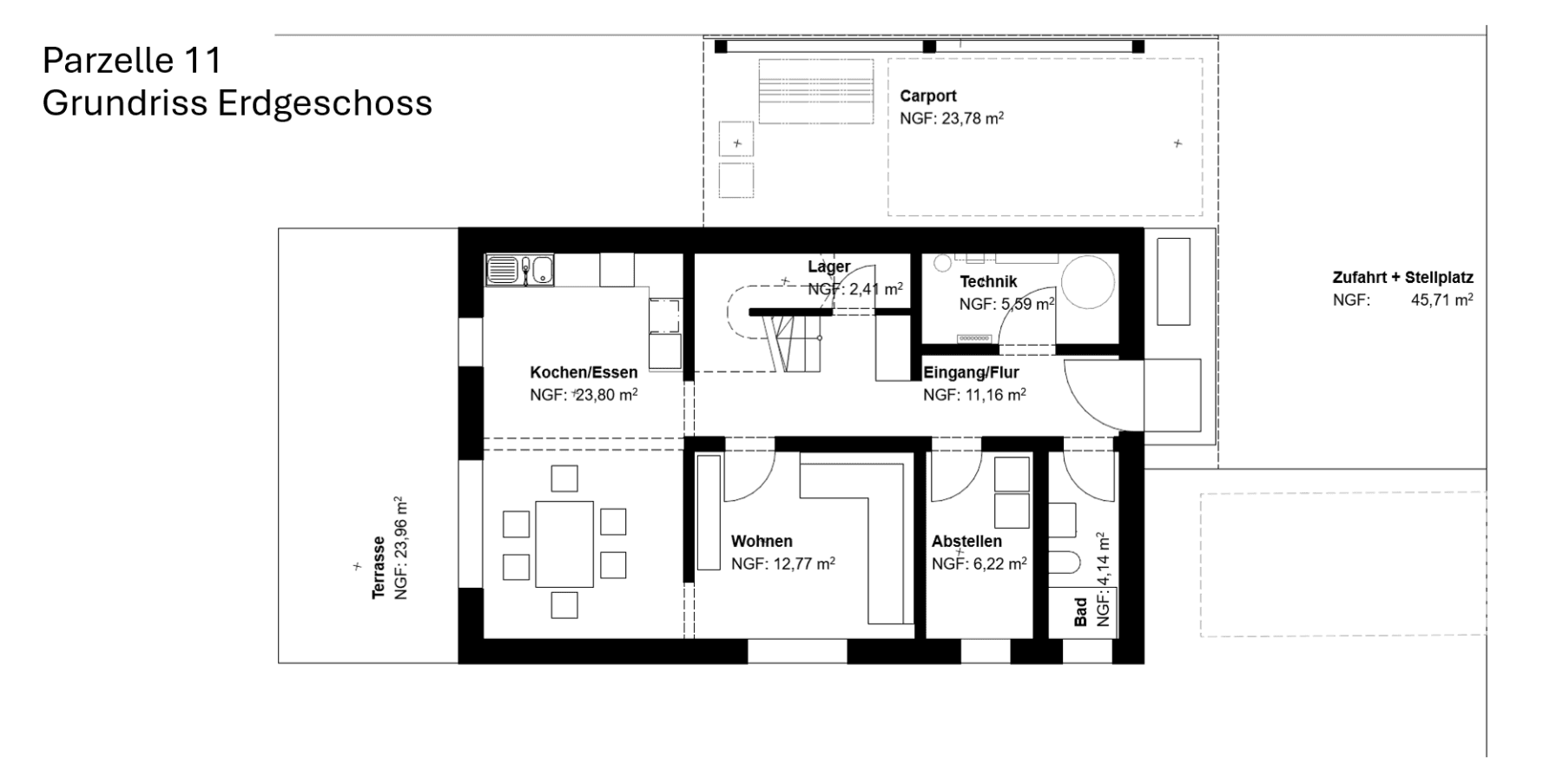
Príklad nákladov na stavebnú parcelu 11
• Rodinný dom: cca 137 m² obytného priestoru
• Náklady na stavbu: 560 000 €
• Parcela 11: cca 421 m²
• Náklady na pozemok: 165 000 €
• Žiadna provízia
• plus daň z nadobudnutia nehnuteľnosti, notárske a registračné poplatky
Ceny ďalších parcel sa určujú podľa veľkosti pozemkov.
• Dokončenie prvých domov od roku 2027
Žiadosť a priebeh
Každý sa môže uchádzať. Odovzdajte svoj prihlasovací formulár najneskôr do 30.06.2026.
Impresum:
Stadtbau Kelheim GmbH
Ludwigsplatz 16
93309 Kelheim
Tel.: 09441 701-204
E-mail: mail@stadtbau-kelheim.de
Riaditeľ:
Christoph Schäfer
Predseda dozorného orgánu:
Prvý primátor mesta Kelheim Christian Schweiger
Obchodný register: Okresný súd v Regensburgu, HRB 15769
DIČ pre DPH: DE311335199
Sme obecná GmbH mesta Kelheim.
Parametre nehnuteľnosti
| Vek | Nad 50 rokov |
|---|---|
| Dispozícia | 5+1 |
| Úžitková plocha | 137 m² |
| Celkové poschodia | 2 |
| Stav | Novostavba |
|---|---|
| Číslo inzerátu | 1013543 |
| Plocha pozemku | 421 m² |
| Cena za jednotku | 5 291,97 € / m2 |
Čo táto nehnuteľnosť ponúka?
| Parkovanie | |
| Terasa |
| MHD 0 minút pešo |
V okolí nehnuteľnosti nájdete
Stále hľadáte to pravé?
Nastavte si strážneho psa. Ponuky vybrané na mieru dostanete súhrnne 1× denne e-mailom. S Premium profilom máte po ruke rovno 5 strážcov a keď sa niečo objaví, informujú vás obratom.





