Predaj bytu 3+1 • 56 m² bez realitkyMoislinger Mühlenweg 21 Lübeck Moisling Schleswig-Holstein 23560
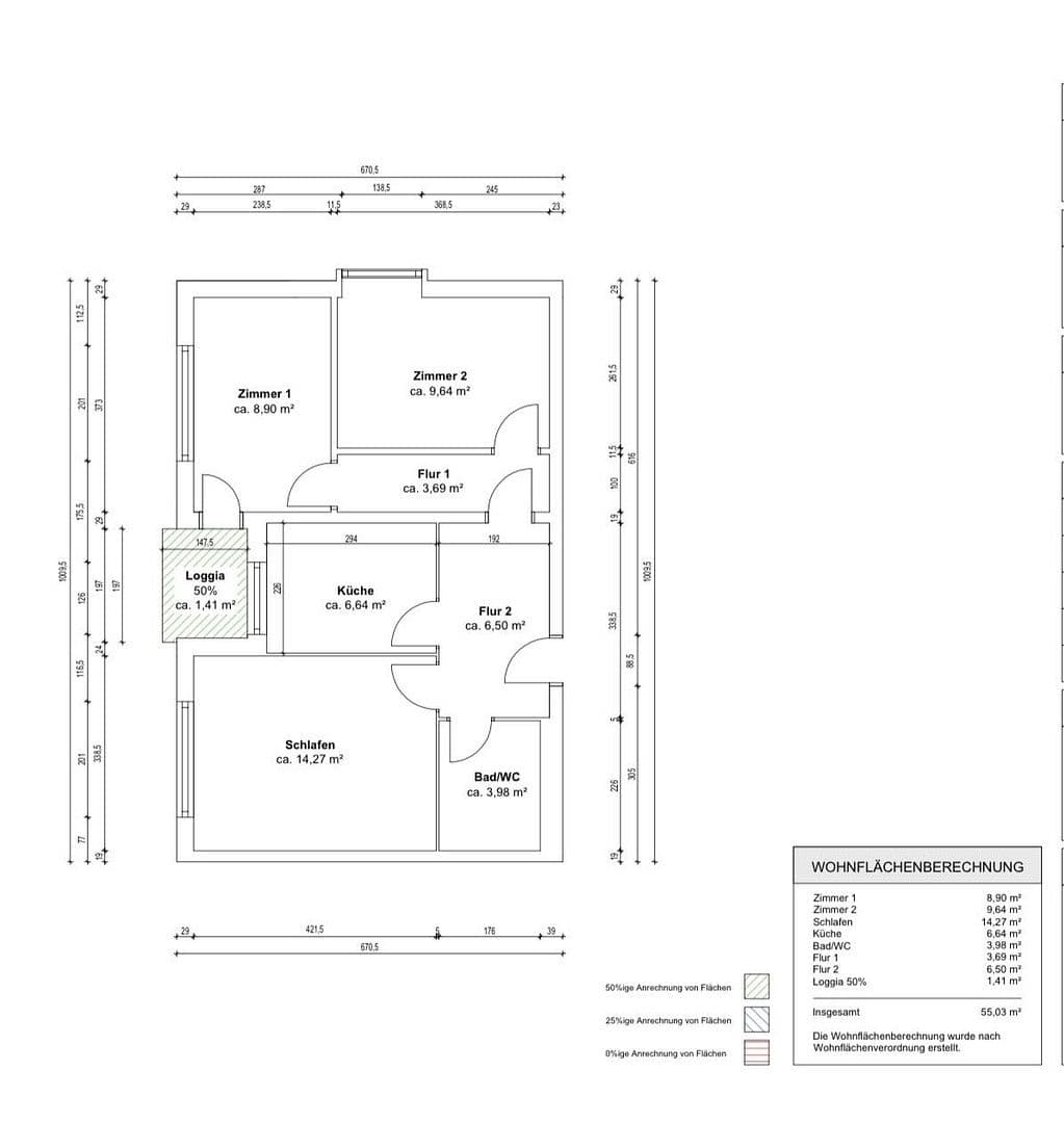
Moislinger Mühlenweg 21 Lübeck Moisling Schleswig-Holstein 23560MHD 1 minúta pešo • VýťahNa predaj je udržiavaný a nedávno zmodernizovaný zariadený byt na vlastníctvo, nachádzajúci sa v lübeckej štvrti Moisling na vlastnom pozemku. Byt má obytnú plochu približne 55,03 m² a bol cieleným spôsobom optimalizovaný pre zariadený koncept spolubývania (WG) pre troch obyvateľov.
Premyslené dispozično zahŕňa tri samostatne využiteľné izby (približne 8,90 m², 9,64 m² a 14,27 m²), funkčnú kuchyňu (približne 6,64 m²), kúpeľňu (približne 3,98 m²), dve predsiene a lodžiu.
Pred nasťahovaním súčasných nájomcov (apríl) bol byt dôkladne zrekonštruovaný a podľa požiadaviek spolubývania preusporiadaný. Vzniká tak okamžite využiteľná a už etablovaná nájomná situácia.
Vybavenie a hlavné výhody
• Optimalizovaná dispozícia pre 3-izbový WG koncept
• Čerstvo zrekonštruovaný pred prímym nasťahovaním súčasných nájomcov
• Svetlé miestnosti s efektívnym využitím priestoru
• Lodžia ako dodatočná obytná zóna
• Funkčná kuchyňa a kompaktná kúpeľňa
• Do bytu patrí aj pivnica
• Spoločná práčovňa v budove (použitie za poplatok)
• Okamžité príjmy vďaka existujúcej nájomnej zmluve
Nájomný koncept a výnosnosť
Byt je v súčasnosti prenajímaný ako spolubývanie s tromi izbami:
• Paušálny nájom: 500 € za izbu
• Celkový nájom (vrátane tepla): 1 500 € mesačne
• Čistý studený nájom: približne 1 200 € mesačne
Atraktívne výnosové ukazovatele:
• Ročný čistý studený nájom: 14 400 €
• Kúpna cena: 150 000 €
• Čistý nájomný výnos: približne 9,6 % p.a.
Spoluúdržbové poplatky:
• Mesačne: 330,69 €
• Z toho rezerva na údržbu: 47,88 €
Týmto ponúka nehnuteľnosť nadpriemernú výnosnosť v súčasnom trhovom prostredí a je ideálna pre kapitálových investorov zameraných na výnos.
Predložený WG koncept ponúka krízovo odolnú nájomnú stratégiu:
• Veľký dopyt po študentskom bývaní
• Overený koncept spolubývania s optimálnou dispozíciou izieb
• Stabilná a udržateľná obsadenosť
• Atraktívna cieľová skupina s neustálym dopytom
• Flexibilita pri zmene nájomcov vďaka prenájmu jednotlivých izieb
Záver
Táto nehnuteľnosť ponúka vynikajúcu príležitosť pre kapitálových investorov, ktorí sa spoliehajú na okamžité príjmy, overený nájomný koncept a dlhodobo stabilný dopyt.
Byt je ideálne vhodný ako nenáročná a výnosná kapitálová investícia s jasnou pozíciou na trhu.
Nehnuteľnosť sa nachádza v štvrti Moisling v Lübecku. Poloha sa vyznačuje dobrou infraštruktúrou a rýchlym spojením s centrom Lübecku. Obchody, verejná doprava a zariadenia dennej potreby sú v bezprostrednej blízkosti.
Lübeck je považovaný za klasické študentské mesto s obrovským potenciálom. Kombinácia univerzít, rastúceho dopytu a obmedzenej ponuky bývania zaisťuje vždy veľmi dobrú až vynikajúcu obsadenosť – najmä pri premyslených konceptoch spolubývania v dostupnom segmente.
Okrem toho sa v predsieni nachádza veľká vstavaná skriňa, ktorá poskytuje veľký úložný priestor.
Nábytok prechádza na kupujúceho zadarmo.
Tento exposé bolo vypracované s maximálnou starostlivosťou. Pri príprave textu bola na podporu použitá umelá inteligencia (AI) tak, aby bol obsah jazykovo atraktívny. Údaje uvedené v texte vychádzajú z informácií poskytnutých vlastníkom a boli preverené podľa najlepších znalostí.
Všetky údaje sú však poskytované bez záruky. Chyby, vynechania, medzikup alebo zmeny si výslovne vyhradzujeme. Za správnosť alebo úplnosť informácií nezodpovedáme.
Parametre nehnuteľnosti
| Vek | Nad 50 rokov |
|---|---|
| Dispozícia | 3+1 |
| PENB | D - Menej hospodárne |
| Cena za jednotku | 2 678,57 € / m2 |
| Stav | Po rekonštrukcii |
|---|---|
| Číslo inzerátu | 1013055 |
| Úžitková plocha | 56 m² |
Čo táto nehnuteľnosť ponúka?
| Balkón | |
| Výťah |
| Pivnica | |
| MHD 1 minúta pešo |
V okolí nehnuteľnosti nájdete
Stále hľadáte to pravé?
Nastavte si strážneho psa. Ponuky vybrané na mieru dostanete súhrnne 1× denne e-mailom. S Premium profilom máte po ruke rovno 5 strážcov a keď sa niečo objaví, informujú vás obratom.






