Predaj domu 7+1 • 183 m² bez realitky, Bádensko-Wurttembersko
INFOTELEFON: 015112257670
Ponúka sa polovičný dvojdom v kvalitnej novej výstavbe dvojdomov v centrálnom umiestnení v 74749 Rosenberg.
• Celková obytná plocha: cca 183 m²
• Pozemok: Celková rozloha 340 m²
(podiel pozemku pre každý dvojdom, pozri plány)
• Poloha: Slnečný rohový pozemok s dvoma prístupovými možnosťami
• Vonkajšia časť: terasa, záhrada, parkovacie plochy
Kúpno-nájom – súkromne, bez zálohy a provízie makléra
Tento objekt je ponúkaný súkromne v rámci notárskej kúpno-nájomnej zmluvy (prenájom s možnosťou odkúpenia).
• Súkromná kúpno-nájomná zmluva
• Notársky overená
• Trvanie zmluvy 9–10 rokov
• Istá možnosť odkúpenia po 9–10 rokoch
Dva kúpno-nájomné modely – flexibilne podľa rozpočtu a želania:
Model 1: "K okamžitému nasťahovaniu"
• Kompletná realizácia (vnútorná úprava aj vonkajší priestor)
• Kvalitné materiály a spracovanie
Mesačný nájom (bez zahrnutých služieb): 1.850 € (hodnota objektu vrátane pozemku 575.000 €)
Model 2: "Stavba s možnosťou vlastných úprav"
• Predávanie ako zatvorený hrubý stav
• Technické vybavenie plne nainštalované (kúrenie/podlahové kúrenie, sanitárna a elektroinštalácia)
• Steny pripravené na maľovanie
• Podlahy pripravené na pokládku
Mesačný nájom (bez zahrnutých služieb): 1.550 € (hodnota objektu vrátane pozemku 475.000 €)
Ideálne pre záujemcov s technickými zručnosťami, výhodný vstup, individuálne úpravy, možnosť vlastnej realizácie
Vaše výhody pri kúpno-nájme
> Nie je potrebná okamžitá kúpa nehnuteľnosti
> Istota plánovania vďaka notárskej zmluve
> Novostavba podľa moderných štandardov
> Flexibilné prispôsobenie podľa rozpočtu
> Perspektíva vlastníctva bez časového tlaku
> Priamo od majiteľa – žiadne poplatky makléra
Spôsob výstavby a technika (podľa GEG štandardu)
• Masívna stavba (Poroton tehly)
• Ochranná tepelná fasáda
• Vzduchovo-tepelné čerpadlo
• Podlahové kúrenie v celom dome
• Elektrické rolety na všetkých oknách
• Novostavba v súlade s GEG (trieda A+)
Prémiové vybavenie a pocit bývania
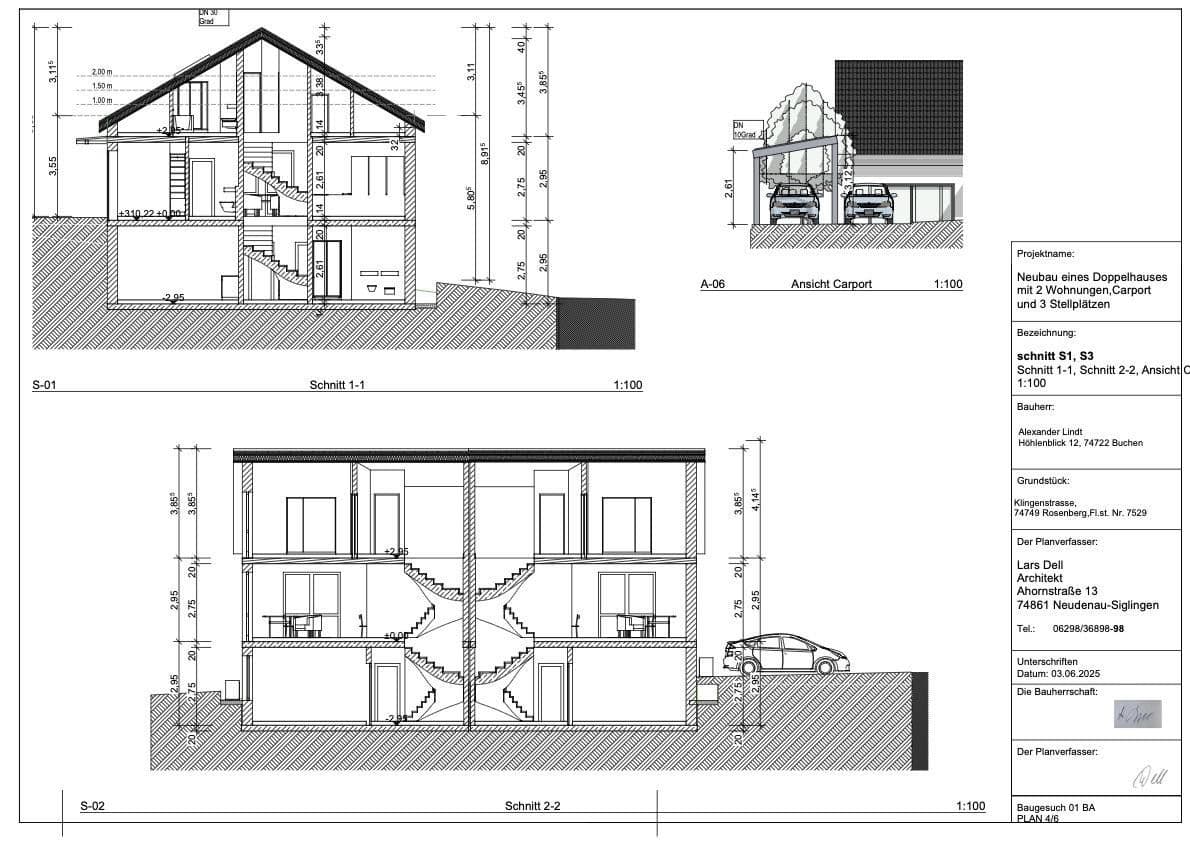
• Výška stropu cca 2,75 m
• Okná až k stropu
• Veľmi svetlé, otvorené priestory
• Moderná architektúra
• Priestranné, luxusné obytné prostredie
Flexibilný koncept bývania – ideálny pre veľké rodiny
• Medzigeneračné bývanie
• Veľké rodiny
• Bývanie a práca pod jednou strechou
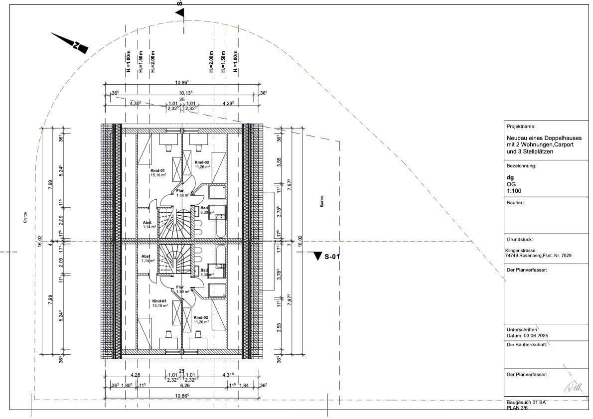
Podkrovie na mieru – od rodinnej izby až po fitness miestnosť
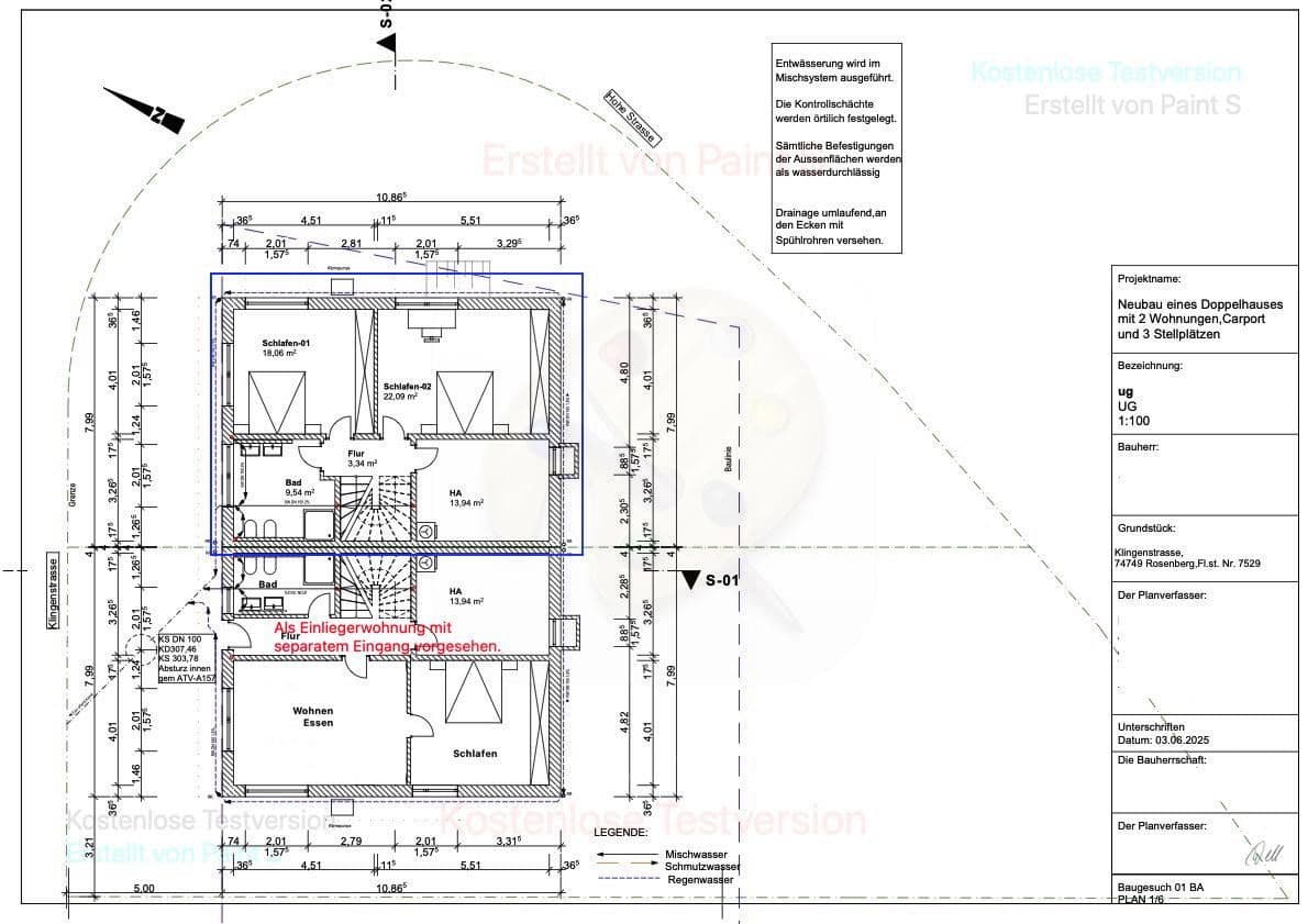
Podkrovie bolo zámerne navrhnuté ako priestor s možnosťou dokončenia. V závislosti od potrieb je možné tu zriadiť až dve ďalšie spálne a kúpeľňu (pozri plány). Alternatívne môže byť podkrovie zariadené ako otvorené atelié – ideálne ako priestranná hobby, fitness alebo kreatívna miestnosť pre tých, ktorí hľadajú jedinečný priestor bez priečok.
Priebeh výstavby a možnosť spolurozhodnutia:
• Fasádne práce, elektroinštalácia a inštalácia základnej vody dokončená (pozri fotografie)
• Dokončenie a pripravenosť na nasťahovanie: začiatok leta
Záujemcovia majú aktuálne možnosť spolurozhodovať o:
• Vnútornom vybavení
• Materiáloch
• Povrchových úpravách
• ako aj o častiach vonkajšieho dizajnu.
Obec Rosenberg, idylicky situovaná na okraji okresu Neckar-Odenwald, ponúka vysokú kvalitu života v prírode blízkom prostredí. Široké ulice, množstvo slnečného svetla a pokojné, ustálené susedstvo robia z tohto miesta mimoriadne atraktívnu voľbu pre rodiny, páry a tých, ktorí hľadajú pokoj.
Napriek pokojnej lokalite je Rosenberg centrálny a výborne dostupný: Všetky dôležité zariadenia ako škola, materská škola, obchod s potravinami, lekári, zastávka MHD a vlaková stanica sú dostupné pešo. Všetko, čo potrebujete na každodenný život, je priamo na mieste – pohodlne a šetriace čas.
Ďalším plusom je dobrá dopravná dostupnosť:
Diaľnica A81 smerom k Heilbronn/Stuttgart ako aj smerom k Würzburgu/Frankfurt nad Mohanom je autom dostupná len za 10 až 12 minút – ideálne pre dochádzajúcich alebo tých, ktorí chcú zostať flexibilní.
Parametre nehnuteľnosti
| Vek | Nad 50 rokov |
|---|---|
| Číslo inzerátu | 1013024 |
| Úžitková plocha | 183 m² |
| Celkové poschodia | 3 |
| Dispozícia | 7+1 |
|---|---|
| PENB | A - Mimoriadne úsporné |
| Plocha pozemku | 340 m² |
| Cena za jednotku | 8,47 € / m2 |
Čo táto nehnuteľnosť ponúka?
| Bezbariérový prístup | |
| Parkovanie | |
| Terasa |
| Pivnica | |
| MHD 1 minúta pešo |
V okolí nehnuteľnosti nájdete
Stále hľadáte to pravé?
Nastavte si strážneho psa. Ponuky vybrané na mieru dostanete súhrnne 1× denne e-mailom. S Premium profilom máte po ruke rovno 5 strážcov a keď sa niečo objaví, informujú vás obratom.








