
Predaj bytu 4+1 • 80 m² bez realitkyHurbanova, Praha - Krč
Nabízím k prodeji světlý a velmi prostorný mezonetový byt o dispozici 4+1 a celkové ploše 80 m², který se nachází v lokalitě Praha – Krč.
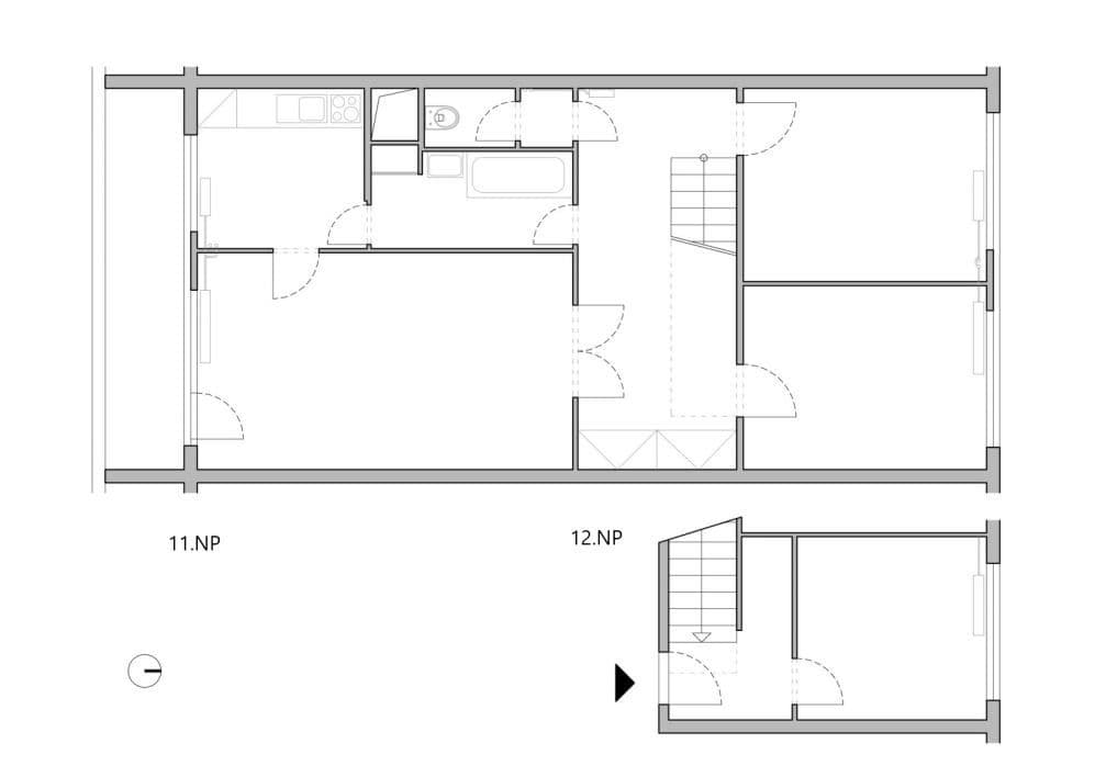
Byt je situován v 11. a 12. patře panelového domu se čtyřmi výtahy (vstup z 12. patra). Dům má celkem 13 nadzemních podlaží, což zajišťuje dostatek soukromí i výhledy do okolí.
Dispozice mezonetu nabízí nadstandardní prostor a vzdušnost, která není u klasických panelových bytů běžná. Díky originálnímu řešení působí byt velmi otevřeně a příjemně.
Byt je částečně zařízený a připravený k nastěhování bude od 1.6.2026. Součástí je moderní kuchyňská linka vybavená indukční varnou deskou, myčkou, americkou lednicí a pračkou. Koupelna je zděná. Nemovitost prošla částečnou rekonstrukcí a je ve dobrém, udržovaném stavu.
Velkým benefitem je zasklená lodžie o velikosti 7 m², ideální pro relaxaci nebo jako praktický úložný prostor. K bytu náleží také sklep o ploše 3 m².
Měsíční náklady na služby a energie činí aktuálně cca 11 000 Kč (z toho fond oprav přibližně 1 600 Kč). Výše záloh se může upravit dle skutečné spotřeby nového majitele.
Byt je vhodný jak pro rodinné bydlení, tak i jako investice například pro spolubydlení.
Lokalita nabízí kompletní občanskou vybavenost – v docházkové vzdálenosti se nachází školka, škola, obchody, pošta i zdravotnická zařízení včetně Thomayerovy nemocnice a IKEM. Milovníci přírody ocení blízkost Kunratického lesa. Přímo u domu je dětské hřiště a kavárna.
Výborná dopravní dostupnost – autobusová zastávka cca 300 m od domu, stanice metra Kačerov je dostupná během 3 zastávek.
Byt se nachází v jednom z unikátních mezonetových panelových domů z roku 1964, které jsou architektonicky zajímavé svým „prolínajícím se“ uspořádáním bytů připomínajícím strukturu Tetrisu. Výtahy staví vždy ve třetím patře, kde se nachází společná komunikační chodba.
V případě zájmu o prohlídku nebo více informací mě neváhejte kontaktovat.
Parametre nehnuteľnosti
| Dostupné od | 1. 6. 2026 |
|---|---|
| Konštrukcia budovy | Panel |
| Vybavené | Čiastočne |
| Číslo inzerátu | 1012931 |
| PENB | E - Nehospodárne |
| Úžitková plocha | 80 m² |
| Stav | Dobrý |
|---|---|
| Dispozícia | 4+1 |
| Poschodie | 11. poschodie z 12 |
| Vlastníctvo | Osobné |
| Umiestnenie | Sídlisko |
| Cena za jednotku | 126 875 CZK / m2 |
Čo táto nehnuteľnosť ponúka?
| Bezbariérový prístup | |
| Výťah | |
| Parkovanie |
| Pivnica 3 m² | |
| Lodžia 7 m² |
V okolí nehnuteľnosti nájdete
Stále hľadáte to pravé?
Nastavte si strážneho psa. Ponuky vybrané na mieru dostanete súhrnne 1× denne e-mailom. S Premium profilom máte po ruke rovno 5 strážcov a keď sa niečo objaví, informujú vás obratom.
























