Predaj domu • 244 m² bez realitkyDorfstraße, 16 Neuenkirchen Neuenkirchen Mecklenburg-Vorpommern 18569
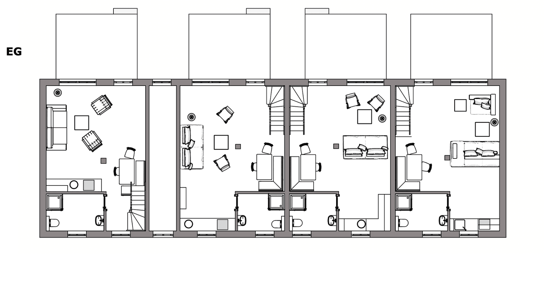
Zostava budovného komplexu tvorí štyri prilehlé domy, ktoré nemajú suterén. Každá obytná jednotka má vlastný vstup, je schematicky podobne usporiadaná a vybavená: cez veľkú terasu s neobmedzeným výhľadom (orientácia na západ) cez pozemok s rozlohou 1,3 ha vstúpite do svetlého, útulného obývacieho priestoru, ktorý upúta historická konštrukcia trámov. Je to pripomienka starej dedinskej pekárne. Na jej základe/burách vznikla v rokoch 2002/03 nová budova, pôvodne navrhnutá ako rekreačné sídlo.
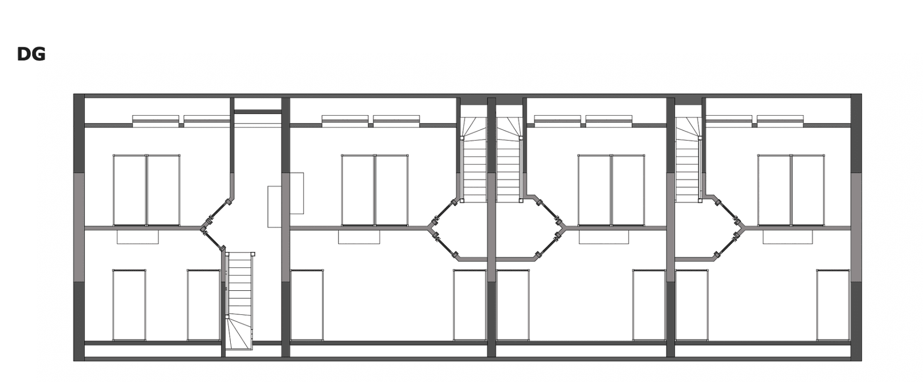
A čo vôňa z ohňa: Kompletné, kvalitne vybavené otvorené kuchyne nič nepostrádajú. Jedlo sa podáva v rustikálnej jedálni. Na východnej strane s veľkými oknami sa nachádza vždy sprchové kúpeľňu/toaleta (sprchové kútiky 2023). Drevený schodisko vedie na posledné poschodie, kde sa nachádzajú po dvoch priestranných spálňach.
Masívna záhradná chatka s rozlohou cca 35 m² slúži momentálne ako sklad, ale mohla by byť premenená aj na piatu rekreačnú jednotku. (Prípojky s výnimkou odpadových vôd sú už prítomné.)
Aj veľká samostatne stojaca garáž s prístreškom určeným na grilovanie ponúka veľa priestoru, nielen pre záhradné náradie, traktor na kosenie trávnika alebo dielňu.
Označenie „tajný tip“ pre Neuenkirchen a tento objekt v severozápadnej, vnútorne rieckej lagúnovej krajine môže znieť trošku opotrebovane, ale pre tento idylický kút je to naprosto výstižné! Jemný turizmus sľubuje tu aj naďalej „rentabelný“ oddych v láskavo zrekonštruovanej a dobre rozvinutej rekreačnej oblasti – rovnako pre budúcich vlastníkov ako aj ich hostí.
Dedinka so svojimi rozhádzanými domčekmi nie je sterilnou kolóniou rekreačných domov, ale kúsok idylického sveta. Bullerbü na Rügen! S veľmi dobrou hospodou, ústretivým obchodníkom, jedným z najkrajších dedinských kostolov na ostrove, dvoma prístavmi... všetko je zasadené do jemných kopčekov a medzi chránenými, rozvetvenými lagúnami, ktoré u nás nazývame Bodden.
Po dohode môže byť prevzaté celé kvalitné vybavenie, všetko príslušenstvo a osvedčená infraštruktúra (softvér, internetová prezentácia, servis a pod.) – pre sľubný štart do ďalšej sezóny. Ústredné kúrenie pozostáva z gazového kondenzácií Vaillant (kvapalný plyn, 2013) s 200-litrovým zásobníkom teplej vody. Budova tým už spĺňa energetickú triedu D. V dome je od roku 2023 pripojenie na širokopásmový internet, momentálne pripojenie 25 mb/s s WLAN.
Realitné dopyty od maklérov sú výslovne neželané. Ide o ponuku na predaj od súkromného poskytovateľa prevádzkovateľa. Aby sme predchádzali neserióznym kontaktom, prosíme o pochopenie, že odpovedáme len na personalizované dopyty s úplne overiteľnou adresou. Dodržiavame zákonné pravidlá ochrany osobných údajov.
Všetko ďalšie po kontaktnej žiadosti. Radi Vám zašleme podrobný exponát s aktuálnymi hospodárskymi číslami, kresbou v mierke a samozrejme s presnou adresou. Prosíme Vás o diskrétnosť, ktorú môžete od nás očakávať rovnako.
Parametre nehnuteľnosti
| Vek | Nad 50 rokov |
|---|---|
| Stav | Dobrý |
| PENB | D - Menej hospodárne |
| Plocha pozemku | 13 600 m² |
| Cena za jednotku | 2 807,38 € / m2 |
| Dostupné od | 16. 4. 2026 |
|---|---|
| Číslo inzerátu | 1012830 |
| Úžitková plocha | 244 m² |
| Celkové poschodia | 2 |
Čo táto nehnuteľnosť ponúka?
| Garáž | |
| MHD 4 minúty pešo |
| Parkovanie | |
| Terasa |
V okolí nehnuteľnosti nájdete
Stále hľadáte to pravé?
Nastavte si strážneho psa. Ponuky vybrané na mieru dostanete súhrnne 1× denne e-mailom. S Premium profilom máte po ruke rovno 5 strážcov a keď sa niečo objaví, informujú vás obratom.
















































