
Predaj bytu 3+kk • 153 m² bez realitkyReinbeker Redder 57a Hamburg Lohbrügge Hamburg 21031
Vitajte v lokalite „Alte Gärtnerei“
Na ulici Reinbeker Redder 55, 55a, 57, 57a, Hamburg, v katastrálnom území Boberg, vzniká nová obytná štvrť s názvom „Alte Gärtnerei“ s celkovo 71 obytnými jednotkami, rozdelenými do štyroch domov, a podzemnou garážou so 64 parkovacími miestami.
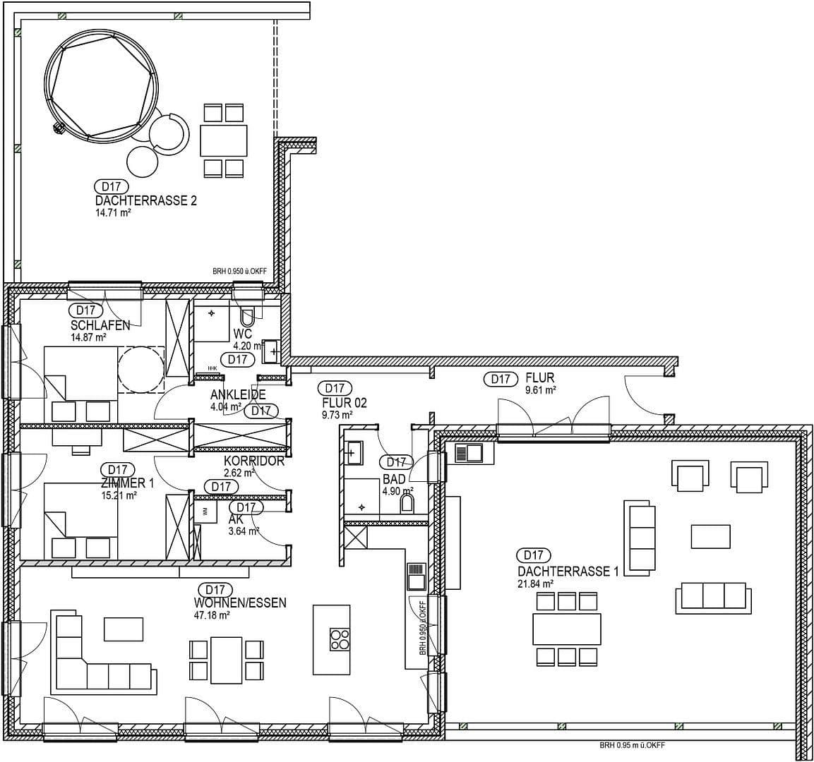
Ponúkaný 3,5 izbový byt D17, v obytnom štvrti „Alte Gärtnerei“, sa nachádza v meziposchodí domu D, ktorý obsahuje spolu 20 obytných jednotiek. Byt D17 zaujme dvoma priestrannými strešnými terasami. Z estetického hľadiska bol dom navrhnutý v dvoch odlišných omietacích farbách. Pri navrhovaní obytných priestorov sa myslelo na množstvo detailov, ktoré zvyšujú komfort bývania.
Do bytu vstúpite najprv do svetlého halu, z ktorého máte výhľad na terasu orientovanú na juhozápad. Pre vašich hostí alebo deti sú k dispozícii dve kúpeľne. Obe kúpeľne, okrem bezbariérového sprchového kúta a ohrevníkov na uteráky, disponujú aj satinovým oknom, ktoré zabezpečuje prísun denného svetla a čerstvého vzduchu. Orientácia spálne do pokojnej časti bývania zaručuje oddychové noci.
Predstavte si, aké výnimočné je ráno prebudiť sa v spálni a pozerať sa na 44 m² veľkú strešnú terasu, ktorá poskytuje dostatok súkromia. Hlavná strešná terasa o rozlohe 65 m², orientovaná na juhozápad, ponúka množstvo možností na vytvorenie útulného spoločného priestoru na čerstvom vzduchu. Táto jedinečná strešná terasa zanechá trvalý a výnimočný dojem už od prvého vstupu do bytu až po pobyt v kuchyni a obývacej izbe.
Byt D17 môže byť na základe vašej požiadavky pripravený na nasťahovanie s približne 14-dňovým predstihom. Predaj prebieha bez provízie priamo od developera a je ihneď možné si ho osobne pozrieť. Dokončenie štvrte je plánované na jún 2026.
Zasadená medzi záhradníckymi združeniami a rodinnými či viacrodinnými domami, sa štvrť „Alte Gärtnerei“ prezentuje ako atraktívna lokalita. Poloha na Reinbeker Redder 57a v Hamburg Boberg je rovnako centrálna, ako aj obývateľná.
Pešo máte možnosť objaviť očarujúce okolie v blízkosti rekreačnej oblasti Boberger Dünen a Boberger Ausgleichswiesen. Na hranici Hamburgu so Schleswig-Holštajnom budú vaši budúci nájomníci okrem centrálnej polohy medzi Hamburg City a Hamburg Bergedorf zažívať aj vysoký zážitkový a voľnočasový potenciál.
Krátke vzdialenosti do prírody alebo voľnočasové aktivity, ako napríklad golf, fitness, tenis či exkluzívne SPA zariadenie Vabali, dávajú tejto lokalite veľmi vysokú hodnotu pre voľnočasové vyžitie. Verejné ihriská, prechádzky v prírode a pešo dostupná občianska vybavenosť dokonale dopĺňajú lokalitu „Alte Gärtnerei“ a robia ju mimoriadne atraktívnou pre všetky generácie.
K tomuto bytu patrí aj úložný priestor o rozlohe približne 7,7 m² v suteréne.
Vybavenie:
• Efektívny dom podľa normy KfW 55
• Výtah spájajúci podzemnú garáž s obytnými poschodiami
• Podlahové kúrenie
• Vonkajšie rolety na všetkých oknách a terasových dverách
• Steny s malířskym vlneným podkladom a bielym nátierkom
• Kúpeľne: obložené dlaždicami, nástenná toaleta, ohrevníky na uteráky, bezbariérový sprchový prvok
• Dizajnová vinylová podlaha v drevenom vzhľade v obývacej izbe a spálňach
• Príjem tepelnej energie prostredníctvom centrálného tepla
• Ďalšie vybavenie získate pri zaslaní našej stavebnej technickej dokumentácie
Extra služby:
• Kuchyne (samostatná montáž) – Radi vám sprostredkujeme kontakt na nášho dlhoročného dodávateľa kuchynských zariadení
• Miesta v podzemnej garáži je možné dokúpiť od 35 000 € navyše
Všetky vizualizácie, návrhy usporiadania, zariadania, grafiky a rozmery slúžia výhradne na ilustračné účely a majú iba ilustratívny charakter – nepredstavujú právny základ.
Krátke informácie:
• Kraj: Hamburg
• Štvrť: Hamburg-Lohbrügge – katastrálne územie Boberg
• Štvrť: Alte Gärtnerei – 71 obytných jednotiek
• Budova: Dom B – 15 obytných jednotiek
• 1. miestnosť pre bicykle – 65 parkovacích miest
• 2. miestnosť pre bicykle – 113 parkovacích miest
• Podzemná garáž (číslo 64) – parkovacie miesta pre autá
• Vzdialenosti:
– materská škola: 1,2 km
– základná škola: 1,6 km
– integrovaná škola: 2,8 km
– gymnázium: 1,7 km
– BG Klinikum: 1,7 km
– klinika Praxis Bergedorf: 3,3 km
– Univerzita Hamburg Bergedorf: 4,8 km
– Centrum mesta Bergedorf: 4,5 km
– Centrum Reinbeker: 5,4 km
– Hamburg centrum: 14,5 km
– Prístup na diaľnicu A1 (Hannover/Lübeck): 3,2 km
– Prístup na diaľnicu A24 (Berlín): 8,2 km
– Občianska vybavenosť: 600 m
– Verejné ihrisko: 450 m
Zhotoviteľom je developerská spoločnosť Reinbeker Redder 55 mbH.
# Realizáciu zabezpečuje np Projektentwicklung GmbH z Mölln s viac ako 25-ročnými skúsenosťami vo výstavbe bytových domov.
Kontaktnou osobou pre dopyty k tomuto expozé je pán Robert Wolff, np Projektentwicklung GmbH z Mölln.
Impressum
Informácie podľa § 5 TMG:
np Projektentwicklung GmbH
Hindenburgstraße 15e
23879 Mölln
Zastúpená:
pán Marcus Pape – konateľ np Projektentwicklung GmbH
Kontakt:
Telefón: +49 (0) 4542 99 59 10
Telefax: +49 (0) 4542 99 59 199
E-mail: info@np-projektentwicklung.de
Registrácia:
Zápis v obchodnom registri.
Registrový súd: Okresný súd Lübeck
Registračné číslo: HRB 18431 HL
Parametre nehnuteľnosti
| Vek | Nad 50 rokov |
|---|---|
| Dispozícia | 3+kk |
| Číslo inzerátu | 1012701 |
| Úžitková plocha | 153 m² |
| Stav | Novostavba |
|---|---|
| Poschodie | 2. poschodie z 3 |
| PENB | B - Veľmi úsporné |
| Cena za jednotku | 6 176,14 € / m2 |
Čo táto nehnuteľnosť ponúka?
| Balkón | |
| Garáž | |
| MHD 3 minúty pešo |
| Pivnica | |
| Výťah |
V okolí nehnuteľnosti nájdete
Stále hľadáte to pravé?
Nastavte si strážneho psa. Ponuky vybrané na mieru dostanete súhrnne 1× denne e-mailom. S Premium profilom máte po ruke rovno 5 strážcov a keď sa niečo objaví, informujú vás obratom.



























