Predaj nebytového priestoru • 2889 m² bez realitky, Bavorsko
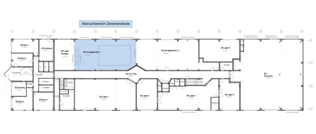
, BavorskoMHD 4 minúty pešo • VýťahKomerčný objekt je využívaný ako výrobná a administratívna budova. Vstup do kancelárskych priestorov sa nachádza na západnej strane, priamo pri príjazdovej ceste na pozemok. Či už ide o štúdio alebo výrobnú halu, obe disponujú veľkou rolovacou bránou. Tieto priestory majú výšku haly. Okrem toho sú tri ďalšie priestory vybavené menšími bránami (sklad 5, montážna zóna 2, sklad 2).
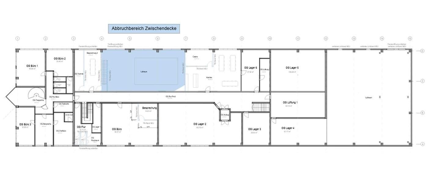
Na oboch podlažiach zabezpečuje centrálnym priečnym chodbou horizontálnu prístupnosť. Na západnej strane budovy je umiestnená administratíva. Výrobná časť sa nachádza na východnej strane. Celkovo je k dispozícii osem kancelárií. Toalety sú dostupné na oboch podlažiach. V hornom poschodí sa navyše nachádzajú dve zasedacie miestnosti, kantína a päť skladových priestorov.
Vďaka konštrukcii zo železobetónového skeletu je možné veľmi dobre upravovať vnútorné priestory. Vertikálna prístupnosť je zabezpečená schodiskami na východnej aj západnej strane. Ďalej je k dispozícii funkčný nákladový výťah, ktorý je umiestnený centrálne. Päťdesiat vonkajších parkovacích miest dopĺňa celkový koncept nehnuteľnosti a zabezpečuje dostatočnú ponuku pre personál aj zákazníkov.
V katastri je zapísané právo stavby. Nasledujúce podrobnosti:
- Doba platnosti: do roku 2065 s možnosťou predĺženia
- Ročný poplatok za právo stavby vo výške 8.032,50 €
- Výhoda pre kupujúceho: nižšie obstarávacie náklady
Obec Hengersberg sa nachádza v srdci Bavorského lesa, približne 10 kilometrov juhovýchodne od Deggendorfu a asi 40 kilometrov od mesta Passau, známeho aj ako mesto troch riek. Ako súčasť metropolitnej oblasti Regensburg ponúka Hengersberg dokonalú rovnováhu medzi vidieckym pokojom a dobre vybudovanou infraštruktúrou.
Hengersberg disponuje vynikajúcou dopravnou dostupnosťou: diaľnica A3 (Regensburg–Passau) je dostupná za pár minút, čím je zabezpečené rýchle spojenie s hospodárskymi centrami v Bavorsku. Blízkosť cesty B533 navyše posilňuje regionálnu dostupnosť. Verejná doprava, ako napríklad autobusové linky, zabezpečuje dobré spojenie s Deggendorfom a ďalšími susednými obcami. Najbližšie letisko je v Mníchove, približne hodinu cesty.
V Hengersbergu sú k dispozícii viaceré možnosti nákupov, medzi ktorými nájdete supermarkety, pekárne, mäsiarstva aj menšie špecializované obchody. Školy, materské školy a zdravotná starostlivosť robia z Hengersbergu atraktívne miesto pre život – rovnako pre rodiny, ako aj pre pracovníkov. Národný park Bavorského lesa a cyklotrasa pozdĺž Dunaja sú v bezprostrednej blízkosti a ponúkajú množstvo možností pre milovníkov prírody.
• 4 klimatizácie
• Celkovo veľmi dobrý stav, keďže prebiehali pravidelné rekonštrukcie:
Výměna kúrenia: 2015
Výmena okien: 2019/20, trojité zasklenie
Obnova fasády: dodatočne pripojená, rok výstavby 2019/20
• 50 vonkajších parkovacích miest
Dopyty môžeme spracovať iba v prípade, že od vás obdržíme nasledujúce údaje: meno, priezvisko, adresa, telefónne číslo, mobilné číslo, e-mailová adresa.
Všetky informácie o objekte, dokumentácia, plány a pod. sú založené na údajoch poskytnutých vlastníkmi alebo tretími stranami. Za správnosť a úplnosť týchto informácií nenesieme žiadnu zodpovednosť. Je preto na zákazníkoch, aby si starostlivo overili správnosť uvedených informácií.
Parametre nehnuteľnosti
| Vek | Nad 50 rokov |
|---|---|
| Číslo inzerátu | 1012363 |
| Plocha pozemku | 5 355 m² |
| Stav | Dobrý |
|---|---|
| Plocha nebytového priestoru | 2 889 m² |
| Cena za jednotku | 584,98 € / m2 |
Čo táto nehnuteľnosť ponúka?
| Výťah |
| MHD 4 minúty pešo |
V okolí nehnuteľnosti nájdete
Stále hľadáte to pravé?
Nastavte si strážneho psa. Ponuky vybrané na mieru dostanete súhrnne 1× denne e-mailom. S Premium profilom máte po ruke rovno 5 strážcov a keď sa niečo objaví, informujú vás obratom.



















