Predaj domu • 217 m² bez realitkyKatzstraße 23,25, , Porýnie-Falcko
Katzstraße 23,25, , Porýnie-FalckoMHD 2 minúty pešo • GarážPonúkaný objekt je dvojdom, ktorý najmä svojim priestranným pozemkom s rôznymi možnosťami využitia zaujme. Celková plocha približne 4 494 m² je rozdelená na dve samostatné parcely, ktoré majú každá vlastné pripojenie na cestu. Budova bola postavená v roku 1949 masívnou stavbou. V roku 1967 boli vykonané rozsiahle prerábky a modernizačné práce – medzi iným bola obnovená strecha, modernizovaný interiér a nainštalované trojitá zasklené okná.
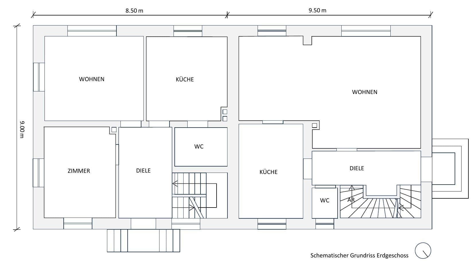
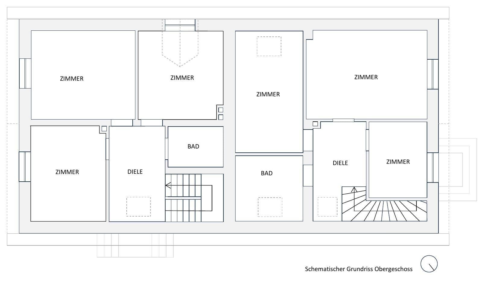
Dvojpodlažný dvojdom s klasickou sedlovou strechou je orientovaný do východu a západu a ponúka obytnú plochu približne 217 m², rozdelenú do celkovo 9 izieb. Obe polovičky majú dispozíciu obsahujúcu predsieň, kuchyňu, WC, kúpeľňu a obývaciu izbu. Ďalšími izbami sa rozširuje obytný priestor – v jednej polovici sú tri, v druhej štyri, čím vznikajú rôzne možnosti využitia. Kúpna cena celého objektu, zloženého z dvojdomu a pozemku, je 650 000 €.
Pozemok sa nachádza vo výhodnej lokalite mesta Speicher, medzi centrom a okrajovými oblasťami. Leží vedľa evanjelickej cirkvi a zaujme mimoriadne príjemným a rodinne orientovaným prostredím. Priama blízkosť je charakteristická veľmi dobrou sociálnou infraštruktúrou s základnou školou, gymnáziom, materskou školou a detským ihriskom. Všetky zariadenia sú bezpečne a pohodlne dostupné pešo do desiatich minút, bez toho, aby bolo potrebné prechádzať rušnými cestami – čo je výhodou najmä pre rodiny s deťmi. Aj zdravotná starostlivosť je v bezprostrednom okolí dobre zabezpečená. V blízkosti sa nachádza zdravotnícke centrum s fyzioterapeutickou praxou, zubný lekár a ďalšie zdravotnícke zariadenia, čo z lokality robí aj vhodné prostredie pre bývanie prispôsobené seniorom.
Samotný pozemok sa vyznačuje priestrannou plochou a relatívne malými obmedzeniami pokiaľ ide o možnosti zastavania. Tieto podmienky otvárajú atraktívne možnosti rozvoja, nielen pre klasickú obytnú výstavbu, ale aj pre iné bývacie koncepty, napríklad v oblasti bývania prispôsobeného veku dôchodcov. Centrum mesta so škriato-katolíckou cirkvou je vzdialené len približne 500 metrov a ponúka príjemné miestne vybavenie s kaviarňou a lekáreňou. Dva supermarkety sa nachádzajú približne jeden kilometer od objektu a sú ľahko dostupné. K dispozícii je aj niekoľko reštaurácií.
Aj infraštruktúra lokality je veľmi výhodná. Autobusová zastávka je vzdialená len dve minúty pešo, čo zabezpečuje bezprostredné napojenie na mestskú verejnú dopravu. Železničná stanica je vzdialená približne 4 kilometre a je dosiahnuteľná za približne desať minút autom. Vzdušná základňa Spangdahlem je vzdialená len okolo 10 kilometrov a predstavuje významného zamestnávateľa v regióne. Najbližšie väčšie mesto Bitburg je dosiahnuteľné za približne 20 minút autom, zatiaľ čo historické mesto Trier, významný hospodársky a pracovný uzol regiónu, je vzdialené približne 40 minút. Mesto Speicher spája mimoriadne atraktívne malomestskú kvalitu života s dedinským šarmom. Okolie je charakterizované pokojným obytným prostredím, prírodnou blízkosťou a dobre vybudovanou infraštruktúrou.
Dvojdom zaujme svoje udržiavané vybavenie s funkčnými detailmi. Obytné priestory sú vybavené rôznymi druhmi podlahových krytín, medzi ktoré patria parkety, dlaždice, laminát a linoleum. Jedna polčasť dvojdomu má udržiavanú vstavanú kuchyňu vrátane plne funkčných elektrospotrebičov. Obe obytné jednotky disponujú hosťovským WC v prízemí, pričom hlavné kúpeľne sa nachádzajú na hornom poschodí. V jednom dome sa jedná o kúpeľňu so sprchou a WC, v druhom o kúpeľňu so sprchou a WC. Kúpeľne boli modernizované počas 2010. rokov a nachádzajú sa v primerane súčasnom stave.
Exteriér predstavuje mimoriadne zvýraznenie celého objektu: Výnimočne veľký pozemok ponúka rôzne možnosti využitia a priestor pre individuálne úpravy. Je doplnený spevneným príjazdom, ktorý môže slúžiť aj ako dvorná a vonkajšia plocha. Pre vozidlá je pripravená dvojgaráž s elektrickou prípojkou. Technicky je objekt vybavený centrálnym olejovým kúrením, ktorého spaľovač bol v roku 2014 obnovený. K dispozícii je aj energetický certifikát. Internetové pripojenie je momentálne realizované cez DSL, pričom optické vlákno je už vyžiadané a plánované. Dodatočný úložný priestor ponúkajú čiastočné podkrovia a podkrovie budovy.
Parametre nehnuteľnosti
| Vek | Nad 50 rokov |
|---|---|
| Číslo inzerátu | 1012278 |
| Úžitková plocha | 217 m² |
| Celkové poschodia | 2 |
| Stav | Dobrý |
|---|---|
| PENB | G - Mimoriadne nehospodárne |
| Plocha pozemku | 4 494 m² |
| Cena za jednotku | 2 995,39 € / m2 |
Čo táto nehnuteľnosť ponúka?
| Pivnica | |
| MHD 2 minúty pešo |
| Garáž |
V okolí nehnuteľnosti nájdete
Stále hľadáte to pravé?
Nastavte si strážneho psa. Ponuky vybrané na mieru dostanete súhrnne 1× denne e-mailom. S Premium profilom máte po ruke rovno 5 strážcov a keď sa niečo objaví, informujú vás obratom.



