
Prenájom bytu 2+1 • 58 m² bez realitkyObere Rodstr. 3 Pforzheim Pforzheim Baden-Württemberg 75173
Obere Rodstr. 3 Pforzheim Pforzheim Baden-Württemberg 75173MHD 1 minúta pešoTento svetlý a dobre dispozične usporiadaný byt zaujme svojou príjemnou atmosférou a premysleným rozložením miestností. Dve priestranné izby plus úložný priestor ponúkajú rôzne možnosti využitia a vytvárajú pohodlný domov.
Dom bol v roku 2024 energeticky kompletne zrekonštruovaný s 16 cm vonkajšou izoláciou a trojsklo zateplenými oknami, elektrickými žalúziami, novými stenovými a podlahovými krytinami a so zmodernizovanými inštaláciami, čo zabezpečuje prehľadné vedľajšie náklady. Vrcholom je podlahové kúrenie, ktoré poskytuje príjemné teplo v zime.
Okrem veľkej útulnej obývacejsko-jedálenskej miestnosti s úžasnou vinylovou podlahou v dizajne loftového dubu, je k dispozícii aj svetlá spálňa a úložný priestor určený na umiestnenie práčky a sušičky. Moderná kuchyňa, ktorá vyzerá ako nová, je vybavená praktickými vstavanými skriňami a elektrospotrebičmi (vrátane indukčnej varnej dosky, rúry, umývačky riadu, digestora a veľkej kombinovanej chladiacej-mrazničky) a ponúka dostatočný úložný priestor pre každodenné potreby. Nájomné kuchyne vo výške 80 eur mesačne sa pripočítava k základnému nájomnému. Krásny balkón je plánovaný na leto 2026.
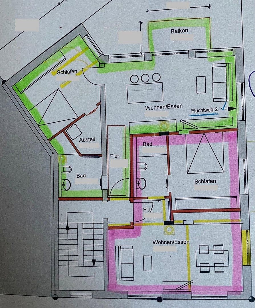
Ponuku dopĺňa vlastná pivnica, ktorá poskytuje ďalší úložný priestor. V tichej obytné štvrti je zvyčajne k dispozícii dostatok parkovacích miest. Pôdorys je na obrázku vyznačený zelenou farbou. Osmdružinný dom sa nachádza ideálne – v pešej vzdialenosti od centra mesta a súčasne na jeho okraji, blízko parkov a zelených plôch. V bezprostrednej blízkosti sa nachádza pekáreň, zmrzlináreň, reštaurácie, kaviarne aj supermarket.
• novácký vinylový podlahový povrch s dubovou optikou
• podlahové kúrenie
• elektrické žalúzie
• veľká kúpeľňa s prístupnou sprchou
• moderná vstavaná kuchyňa so všetkými elektrospotrebičmi
Kontaktujte nás ešte dnes pre obhliadku!
Prosím, uveďte počet osôb, ktoré sa sťahujú, dôvod Vášho plánovaného presťahovania, Vaše povolanie a čistý príjem, a tiež niečo o sebe, aby sme Vás mohli lepšie spoznať ako potenciálneho nájomcu.
Parametre nehnuteľnosti
| Vek | Nad 50 rokov |
|---|---|
| Dispozícia | 2+1 |
| Číslo inzerátu | 1012260 |
| Úžitková plocha | 58 m² |
| Stav | Veľmi dobrý |
|---|---|
| Poschodie | 2. poschodie z 2 |
| PENB | B - Veľmi úsporné |
| Cena za jednotku | 13,62 € / m2 |
Čo táto nehnuteľnosť ponúka?
| Balkón | |
| MHD 1 minúta pešo |
| Pivnica |
V okolí nehnuteľnosti nájdete
Stále hľadáte to pravé?
Nastavte si strážneho psa. Ponuky vybrané na mieru dostanete súhrnne 1× denne e-mailom. S Premium profilom máte po ruke rovno 5 strážcov a keď sa niečo objaví, informujú vás obratom.










