Predaj bytu 5+1 • 111 m² bez realitkyHamburg Eimsbüttel Hamburg 20259
Hamburg Eimsbüttel Hamburg 20259MHD 1 minúta pešoPredám byt v historickej budove v najkrajšej časti Eimsbüttel – od súkromného vlastníka k súkromnému kupujúcemu – žiadne dopyty od maklérov
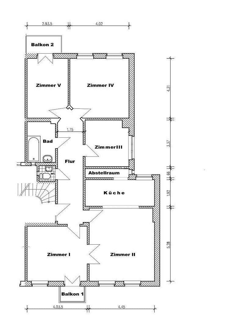
Tento byt v historickej budove, nachádzajúci sa na druhom poschodí viacrodinového domu, je skutočným klenotom. Nachádza sa v najkrajšej časti Eimsbüttel, medzi ulicami Eppendorfer Weg, Bismarckstraße, Schanze a Osterstraße, a ponúka pôvodný šarm s najvyšším komfortom bývania. Obytná plocha 111 m² je ideálne rozdelená na päť izieb. Byt je veľmi svetlý a disponuje dvoma balkónmi.
V roku 2024 bol byt dôkladne zmodernizovaný a preusporiadaný a teraz ponúka otvorenú kuchyňu spojenú s veľmi príjemným a priestranným obývacím priestorom smerom dopredu. Je potrebné vyzdvihnúť vysoké stropy, krásne štukové prvky a starostlivo obnovenú pôvodnú parketovú podlahu. Z priestrannej chodby vedie do samostatnej toalety, kúpeľne s vaňou, ako aj do troch spálň alebo detských izieb, ktoré všetky majú východisko do veľmi pokojného vnútorného nádvoria. Všetky miestnosti sú svetlé, priestranné a nesú typické znaky historických budov. Súčasťou bytu je aj úložná izba pripojená ku kuchyni.
Kvalitná vstavaná kuchyňa bola nová inštalovaná koncom roka 2024 a elektroinštalácia bola pri tom taktiež modernizovaná.
Viacrodinový dom sa nachádza v pokojnej obytné ulici a je v dobrom stave. Je pripojený na centrálny systém vykurovania a neplánujú sa žiadne zásadné rekonštrukčné práce. Na zadnom dvore je možné bicykle uložiť v cyklistickej halke a náhradná pivnica je tiež k dispozícii majiteľom v zadnej časti domu.
Mesačné poplatky za správu domu (Hausgeld) sú aktuálne 481 € (vrátane nákladov na centrálny tepelný systém, vrátane 139 € príspevku do rezervy).
Byt momentálne obývame my sami a plánujeme presťahovanie na prelome leta a jesene, takže noví vlastníci by mohli nadviazať v jeseni.
Eimsbüttel je mestská štvrť s vynikajúcim spojením do centra a na diaľnicu. V tejto štvrti nájdete množstvo zelených plôch, ako napríklad Kaiser-Friedrich-Ufer alebo "Weiher", ktoré sú dostupné pešo. Mnoho rodín žije v Eimsbüttel a oceňuje kvalitnú infraštruktúru. Byt sa nachádza v mŕtvej ulici medzi Eppendorfer Weg a Bismarckstraße. Osterstraße na jednej strane a Weidenallee na druhej strane ponúkajú všetko, čo si od mestského života možno priať. Nádherné kaviarne, reštaurácie, butiky a množstvo supermarketov sú dostupné pešo. V bezprostrednom okolí nájdete tiež množstvo materských škôl a škôl. Športový klub Eimsbüttel, bazén Kaifu alebo Kaifu Lodge ponúkajú všetky možnosti pre športové aktivity a sú len na dosah ruky. Stanica metra Christuskirche (linka U2) a autobusové linky Metrobus 4, 20 a 25 sú dostupné pešo len v niekoľkých minútach.
Päť dobre navrhnutých izieb, ideálnych pre rodiny:
– 3 spálne
– priestranný obývací a jedálenský priestor
– kvalitná vstavaná kuchyňa z roku 2024
– vaňa a samostatné WC
– priestranná chodba s dostatkom úložného priestoru
– dva balkóny
– centrálny systém vykurovania
– cyklistická halka na zadnom dvore
– náhradná pivnica na zadnom dvore
– parketová podlaha
– štukové prvky
Parametre nehnuteľnosti
| Vek | Nad 50 rokov |
|---|---|
| Dispozícia | 5+1 |
| Číslo inzerátu | 1012255 |
| Úžitková plocha | 111 m² |
| Stav | Po rekonštrukcii |
|---|---|
| Poschodie | 2. poschodie z 5 |
| PENB | D - Menej hospodárne |
| Cena za jednotku | 9 819,82 € / m2 |
Čo táto nehnuteľnosť ponúka?
| Balkón | |
| MHD 1 minúta pešo |
| Pivnica |
V okolí nehnuteľnosti nájdete
Stále hľadáte to pravé?
Nastavte si strážneho psa. Ponuky vybrané na mieru dostanete súhrnne 1× denne e-mailom. S Premium profilom máte po ruke rovno 5 strážcov a keď sa niečo objaví, informujú vás obratom.











