Predaj domu • 578 m² bez realitkyMagdeburg Buckau Sachsen-Anhalt 39104
Magdeburg Buckau Sachsen-Anhalt 39104MHD 1 minúta pešoDie Schönebecker Str. 2 je samostatnou pamiatkovou budovou, ktorá bola postavená v roku 1893 v štýle neorenesancie stavebným majstrom A. Böttcherom z Magdeburgu. Už počas výstavby išlo o veľmi modernú budovu, keďže v bytoch už boli inštalované vodné záchody. Dievčatá v "Mädchenkammer" – miestnosti pre dievčatá za kuchyňou (s vlastným oknom) – si taktiež mohli oddýchnuť v súkromí, a neboli umiestnené na streche. Pôvodné dispozície boli počas rekonštrukcie len mierne zmenené, pričom sa spojili dievčenská izba a WC, čím vznikla rozľahlejšia kúpeľňa, aká je dnes bežná. Počas rekonštrukcie sa dalo pozor na to, aby pôvodný stav budovy so svojím veľšianskym šarmom nebol stratený. Podesty boli opäť odkryté rovnako ako štuk vstupnej haly, pričom sa zrestaurovali a prebrúsili aj terrazzo podlahy v hale.
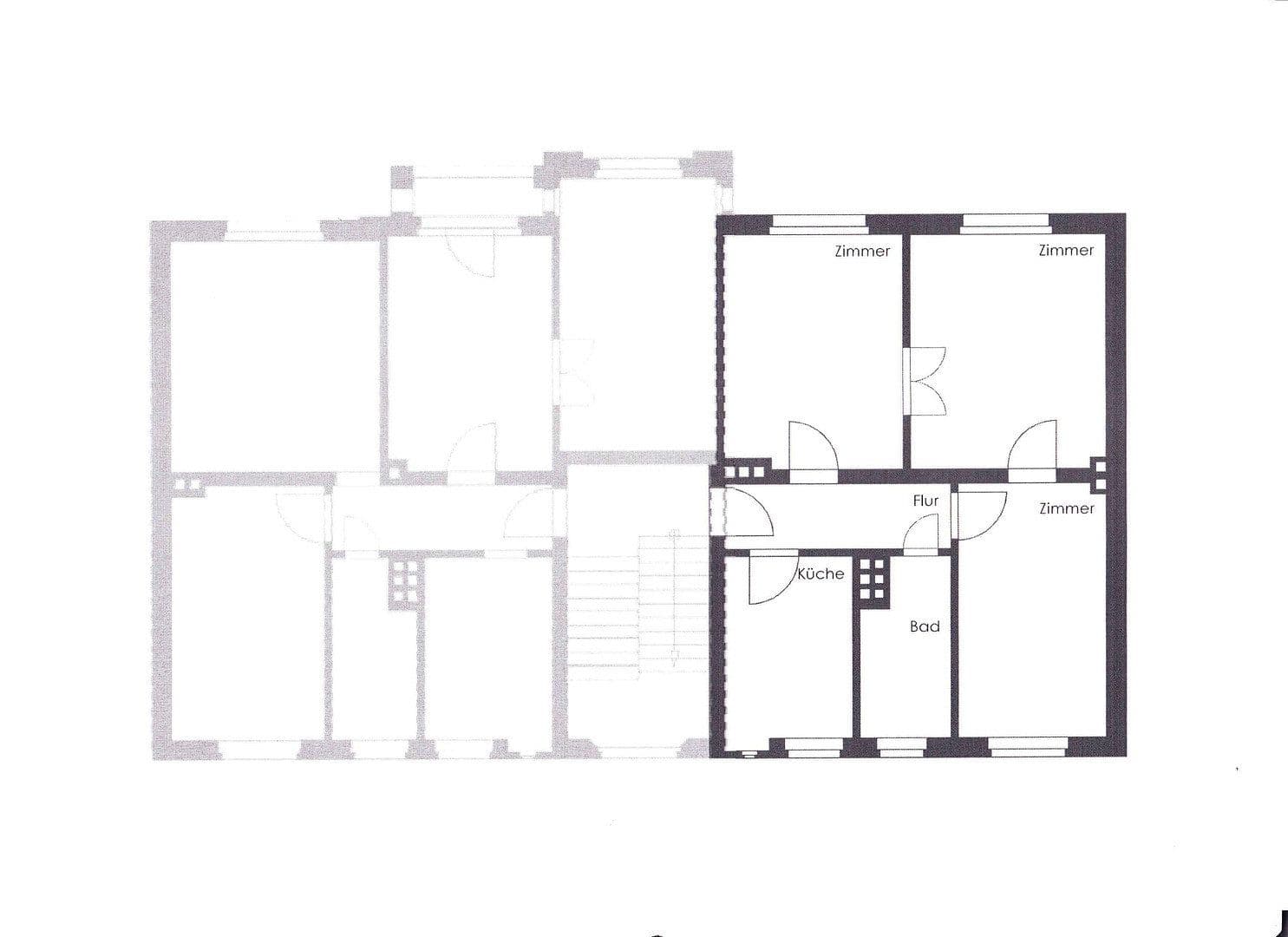
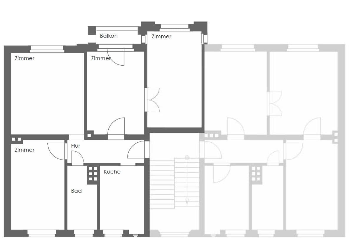
Byty – Byty sa nachádzajú od 1. do 3. poschodia. Trojizbové byty majú približne 68 m², štvorizbové byty okolo 83 m² vrátane výklenkového izby. Všetky miestnosti sú prístupné z chodby, pričom predsiene sú taktiež prístupné cez pôvodné, zachované a obnovené krídlové dvere. Všetky byty disponujú francúzskym balkónom (spálňa), väčšie byty navyše majú balkón s výhľadom na Pionierpark alebo breh Labe. Drevené podlahy – pôvodné borovicové dosky – boli opracované a nalakované, originálny štuk bol verne obnovený. Všetky byty ponúkajú výhľad na zeleň Pionierparku alebo na zadnú stranu, ktorá smeruje do zeleniaceho sa vnútorného nádvoria. Byty sú prekrásne osvetlené a vybavené mramorovými kúpeľňami. Bývacie a spálňové priestory vo všetkých poschodiach majú výšku stropu 3,40 m. Všetky okná boli vyrobené podľa pamatkových predpisov a majú zvukovú izoláciu triedy IV. Steny bytov boli náročne vyhladené – viac sa už netapetuje! Každý byt je pripojený na úsporné, domáce satelitné káblové pripojenie.
Loft – Veľmi moderný loftový byt s celkovou rozlohou 64 m² sa nachádza v polovičnom nadzemnom podlaží (hochparterre). Okrem spálne so vstupom z dvoch strán a kúpeľne v byte neexistujú žiadne dvere. Byt je veľmi priestranný, nakoľko má otvorený pôdorys. Okrem vysoko kvalitného vybavenia, napr. sú všetky podlahy obložené brazílskym bridlicou, vaňa bola „znížená“ pre pohodlnejší vstup a vďaka skutočne jedinečnému dispozíciu disponuje loft aj podlahovým kúrením. Dôsledné vynechanie bežného bytového vybavenia robí z tohto bytu „byt pre alergikov“. V kombinácii s vysoko kvalitnými oknami (zvuková izolácia triedy IV), harmonickým pôdorysom a veľmi peknou výškou stropov vzniká veľmi ľahký pocit zo bývania. Park na druhej strane ulice so svojím brehom Labe dokonale dopĺňa mestský relaxačný efekt!
Predajňa – Samotná predajňa ponúka predajný priestor približne 15 m². Za ňou sa nachádza bytová jednotka s rozlohou okolo 48 m². Predajňa, do ktorej je možné vstúpiť priamo zo ulice, sa tak vhodne hodí pre rôzne funkcie.
Schönebecker Str./Roh Porsestraße,
naproti skleníkom/spoločenskému domu,
len pár minút chôdze od Labe, 5 minút do centra mesta.
Moderná a obľúbená lokalita v Buckau.
Pôsobivá fasáda, reprezentatívna vstupná hala so štukom a terrazzom, množstvo detailne verne obnovených a zrestaurovaných prvkov.
Krásne, vkusne zariadené byty v historickej budove, so štukom, pôvodnými dverami doby výstavby, drevenými doskami, mramorovými kúpeľňami.
Plne obsadené, ročný štandardný nájom: € 60.151,--, ročný nárast o 2%.
Parametre nehnuteľnosti
| Vek | Nad 50 rokov |
|---|---|
| Číslo inzerátu | 1012166 |
| Plocha pozemku | 306 m² |
| Cena za jednotku | 2 508,65 € / m2 |
| Stav | Po rekonštrukcii |
|---|---|
| Úžitková plocha | 578 m² |
| Celkové poschodia | 4 |
Čo táto nehnuteľnosť ponúka?
| Balkón | |
| MHD 1 minúta pešo |
| Pivnica |
V okolí nehnuteľnosti nájdete
Stále hľadáte to pravé?
Nastavte si strážneho psa. Ponuky vybrané na mieru dostanete súhrnne 1× denne e-mailom. S Premium profilom máte po ruke rovno 5 strážcov a keď sa niečo objaví, informujú vás obratom.

























