
Prenájom bytu 2+1 • 53 m² bez realitkyFrankfurt am Main Gallus Hessen 60486
Frankfurt am Main Gallus Hessen 60486MHD 3 minúty pešo • Výťah • GarážModerný 2-izbový byt s najnovšou energetickou účinnosťou – v obľúbenom, zelenom Európskom štvrti
Prispôsobený modernému životnému štýlu
Európska štvrť – v srdci života, v centre Frankfurtu
Európska štvrť ponúka možnosti pre všetkých, ktorí chcú žiť priamo v centre mesta. So svojou polohou medzi veľtrhom a bankovým štvrťou spája centrum mesta so zeleným okrajom. Je to živá mestská štvrť s priestorom na bývanie, prácu, nakupovanie a oddych. Vznikli tu už kancelárie, hotely, byty ako aj možnosti na nákupy a voľnočasové aktivity. Mestská štvrť určená pre centrálne bývanie s úspešne zrealizovanou obchodnou a kultúrnou infraštruktúrou. Oblúbené Skyline Plaza, nákupné a zábavné centrum, ponúka pre každý vkus vítanú zmenu.
• Dobré spojenie verejnou dopravou
• Autobus č. 52 zastavuje priamo pred domom
• Cca 7 minút k stanici S-Bahn "Messe"
• Výborné a krátke diaľničné spojenia na A5 a A66
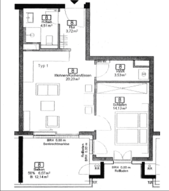
• Dobre navrhnutý obývací/jedálenský priestor
• Príjemná výška stropu
• Kvalitná parketa z masívneho dreva vo všetkých obytných priestoroch
• Podlahové kúrenie
• Exkluzívna otvorená vstavaná kuchyňa s kvalitnou granitovou pracovnou doskou a inovatívnymi značkovými spotrebičmi
• Kompletne vybavená kúpeľňa s kvalitným nábytkom, bezbariérovou sprchou s pravými sklenenými dverami, ohrievačom uterákov, osvetlením a rádiom
• Úložný priestor s prípojkami pre práčku a sušičku
• Až po zem drevené okná s izolačným zasklením
• Vizionárske multimediálne káblovanie (Homeway)
• Elektrické rolety a vertikálne markízy
• Výťah až do podzemnej garáže
• Južný balkón s útulnou drevenou podlahou a výhľadom na Európsku záhradu, krytý
• Oddelený pivničný priestor
• Pivnica na bicykle
Obmedzenia
Maximálne 2 osoby, iba nefajčiari
Parametre nehnuteľnosti
| Vek | Nad 50 rokov |
|---|---|
| Stav | Veľmi dobrý |
| Poschodie | 1. poschodie z 6 |
| PENB | B - Veľmi úsporné |
| Cena za jednotku | 23,21 € / m2 |
| Dostupné od | 1. 6. 2026 |
|---|---|
| Dispozícia | 2+1 |
| Číslo inzerátu | 1011929 |
| Úžitková plocha | 53 m² |
Čo táto nehnuteľnosť ponúka?
| Balkón | |
| Pivnica | |
| Výťah |
| Bezbariérový prístup | |
| Garáž | |
| MHD 3 minúty pešo |
V okolí nehnuteľnosti nájdete
Stále hľadáte to pravé?
Nastavte si strážneho psa. Ponuky vybrané na mieru dostanete súhrnne 1× denne e-mailom. S Premium profilom máte po ruke rovno 5 strážcov a keď sa niečo objaví, informujú vás obratom.














