Prenájom bytu 3+1 • 68 m² bez realitkyFriedensstr. 18c, , Brandenbursko
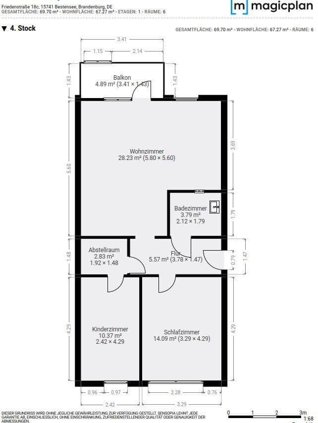
Friedensstr. 18c, , BrandenburskoMHD 4 minúty pešo • ParkovanieNa približne 67 m² ponúka byt priestory naplnené svetlom.
Byt pozostáva zo 3 pekných izieb, kúpeľne a samostatnej (veľkej) kuchyne a chodby.
WC je vybavené sprchou.
Ďalšie atrakcie
Bezpečné parkovanie vďaka vlastnému parkovaciemu miestu:
Flexibilita pre vodičov bez stresu hľadania parkovacieho miesta.
Dodatočný priestor na parkovanie vďaka priestrannému suterénu:
Dostatok miesta pre všetko, čo máte radi, bez preplnenia obytných priestorov – prípadne aj ako dielňa.
Blízkosť MHD – autobus a regionálna železnica:
Perfektné spojenie, ktoré vás rýchlo a pohodlne dovezie do mesta, do Berlína/centra a ďalej.
Obchody a reštaurácie v bezprostrednej blízkosti:
Edeka a reštaurácie zabezpečujú krátke vzdialenosti a kulinársku rozmanitosť.
Výborné spojenie na mestskú diaľnicu:
Ideálne pre dochádzanie do práce alebo víkendové výlety – príjazd/odjazd je len niekoľko minút autom (blízko, ale bez rušenia hlukom).
Energeticky efektívna budova:
Energetická trieda B šetrí prevádzkové náklady a životné prostredie – moderné bývanie s ohľadom na zodpovednosť.
Zaujala vás naša ponuka? Kontaktujte nás ešte dnes a zabezpečte si prehliadku skôr, než bude tento byt opäť zarezervovaný!
V pokojných a veľmi zelených obytných lokalitách, 30 km od Berlína, pokojne a zároveň centrálnе, sa nachádza tento svetlý 3-izbový byt.
Budova bola postavená v roku 1990 a v roku 1994 kompletne zrekonštruovaná. Príjemná kvalita bývania je pocitná už pri vstupe do bytu.
- WC so sprchou
- Luxusný vinyl pre štýlovú kúpeľňu
- Nový laminát (v štýle dubu) v celom zvyšku bytu
- Parkovacie miesto
Byt naplnený svetlom:
Veľké okná zabezpečujú svetlé, priateľské priestory a vytvárajú teplú, príjemnú atmosféru, ktorá vás vtiahne do pohodlia.
LED stropné svetlá v obývačke, kuchyni, chodbe a kúpeľni:
Moderné osvetlenie, ktoré dokonale zvýrazní priestory a vytvorí vysoko kvalitnú atmosféru.
Kvalitná vstavaná kuchyňa s varnou doskou, umývačkou riadu a veľkým množstvom denného svetla:
Ideálna pre milovníkov varenia – vychutnajte si štýlové večere alebo praktické každodenné varenie s kvalitným vybavením.
Vysoko kvalitná laminátová podlaha v vzhľade dubového dreva:
Štýlová podlaha dodáva bytu moderný a útulný charakter – robustná a ľahko udržiavateľná.
Novo natreté radiátory v celom byte:
Nový vzhľad a optimálne rozloženie tepla pre príjemné klimatizované prostredie v každom ročnom období.
Sušicí radiátor v kúpeľni:
Luxusné teplo pre vaše uteráky – malý luxus, ktorý skrášli každé ráno.
Prípojka pre práčku v kúpeľni:
Praktické a úsporné – špinavé bielizeň môžete ihneď umiestniť do práčky pred sprchovaním.
Nový podnosový záchod:
Moderný vzhľad kombinovaný s ľahkou údržbou – hygienický a praktický.
Parametre nehnuteľnosti
| Vek | Nad 50 rokov |
|---|---|
| Stav | Po rekonštrukcii |
| Poschodie | 4. poschodie z 4 |
| PENB | B - Veľmi úsporné |
| Cena za jednotku | 13,82 € / m2 |
| Dostupné od | 15. 4. 2026 |
|---|---|
| Dispozícia | 3+1 |
| Číslo inzerátu | 1011847 |
| Úžitková plocha | 68 m² |
Čo táto nehnuteľnosť ponúka?
| Balkón | |
| Parkovanie |
| Pivnica | |
| MHD 4 minúty pešo |
V okolí nehnuteľnosti nájdete
Stále hľadáte to pravé?
Nastavte si strážneho psa. Ponuky vybrané na mieru dostanete súhrnne 1× denne e-mailom. S Premium profilom máte po ruke rovno 5 strážcov a keď sa niečo objaví, informujú vás obratom.



















