
Predaj domu 3+kk • 100 m² bez realitkyLeipzig Böhlitz-Ehrenberg Sachsen 04178
Leipzig Böhlitz-Ehrenberg Sachsen 04178MHD do minúty pešo • ParkovaniePôvabný rodinný dom so záhradou, kachľovým kachľovým kachľom a okamžite prístupný – bývanie v blízkosti Auenwaldu v Lipsku Böhlitz-Ehrenberg
________________________________________
Vaše nové domov v zeleni
Tento starostlivo modernizovaný, samostatne stojaci rodinný dom (postavený v roku 1935, cca 100 m² obytných priestorov) spája pokojné bývanie v zelene s vynikajúcim napojením na centrum Lipska.
Užite si pokojných chvíľ na slnečnej terase, príjemné večery pri krbe a bezprostrednú blízkosť idylického Auenwaldu – jedného z najkrajších rekreačných oblastí Lipska.
Dom je v veľmi udržiavanom stave a bez potreby rekonštrukcie je pripravený na nastěhovanie.
Ideálny pre páry alebo rodiny hľadajúce domov s pôvabom, záhradou a možnosťami individuálneho zariadenia.
________________________________________
Hlavné výhody na prvý pohľad
• samostatne stojaci rodinný dom z masívnej stavby
• okamžite prístupný – žiadne čakajúce rekonštrukcie
• pokojné, zelené bývanie
• veľká, udržiavaná záhrada s terasou a pavilónom
• kachľový kachlový kachľový kachlíček (kamin)
• moderná vstavaná kuchyňa s kvalitnými spotrebičmi vrátane
• dostupné optické vlákno
• úplne s pivnicou s variabilnou využiteľnou plochou
• carport ako aj úložisko pre bicykle a náradie
• vynikajúce napojenie (diaľnice A9, A14, letisko Lipsk/Halle)
________________________________________
Lokalita – príroda a mesto perfektné v kombinácii
Dom sa nachádza v obľúbenom lipskom mestskom rámci Böhlitz-Ehrenberg – rozvinutej a pokojnej lokalite na západnom okraji mesta.
Tu si vychutnáte ideálnu kombináciu bývania blízko prírody a dostupnosti do mesta:
• len pár minút chôdze k rozľahlej Auenwalu
• obchodné možnosti, školy, materské školy a lekári v bezprostrednej blízkosti
• veľmi dobré napojenie na električku a autobus
• rýchly prístup do centra Lipska ako aj k diaľniciam a letisku
Lokalita, ktorá zaujme ako v každodennom živote, tak aj počas voľného času.
________________________________________
Pozemok a vonkajšia časť
• cca 480 m² pozemok
• slnečná terasa (cca 16 m²)
• doplnková oddychová zóna s pavilónom
• udržiavaná záhrada s ovocnými stromami a záhonmi
• studňa na zavlažovanie záhrady
• carport ako aj úložisko pre bicykle a náradie
Ideálne miesto pre oddych, záhradkárov a príjemné letné večery vo vlastnej zeleni.
________________________________________
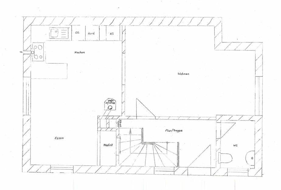
Rozloženie priestorov
Prízemie (cca 56 m²):
• priestranný obývací priestor
• otvorená kuchyňa a jedáleň
• hostinská toaleta
• úložný priestor
• predsieň so schodiskom
Medziposchodie (cca 32 m²):
• spálňa s šatníkom
• detská izba
• predsieň s prístupom na špicatú strechu (podkrovie)
Pivnica (dodatočná využiteľná plocha):
• kúpeľňa s vaňou a sprchou
• hobby izba
• úložné priestory
• kotolňa
________________________________________
Vybavenie (výber)
• Plynový kondenzačný kotol (2011)
• Podlahové kúrenie v kúpeľni a hostinskej toalete
• Kamin (kamenisko)
• moderná vstavaná kuchyňa s kvalitnými spotrebičmi
• Rolety (izolované, hliníkové)
• Optické vlákno a internetové pripojenie
• Fotovoltaická balkónová elektráreň
• Laminátové a dlaždicové podlahy
• Pripojenie pre práčku v pivnici a prízemí
________________________________________
Energetika
• Energetická trieda: D
• Ročná spotreba energie: cca 115 kWh/m²*a
________________________________________
Zaujal sme Vašu pozornosť?
Tešíme sa na Vašu dopyt!
Prosím, pošlite nám krátky predstavenie seba a Vaše úplné kontaktné údaje – čoskoro sa Vám ozveme.
Predaj prebieha súkromne, prípadne je možné vybavenie aj cez makléra, ktorého poznáme.
________________________________________
Všetky údaje bez záruky.
________________________________________
Parametre nehnuteľnosti
| Vek | Nad 50 rokov |
|---|---|
| Stav | Po rekonštrukcii |
| Číslo inzerátu | 1011749 |
| Úžitková plocha | 100 m² |
| Celkové poschodia | 2 |
| Dostupné od | 16. 4. 2026 |
|---|---|
| Dispozícia | 3+kk |
| PENB | D - Menej hospodárne |
| Plocha pozemku | 480 m² |
| Cena za jednotku | 4 820 € / m2 |
Čo táto nehnuteľnosť ponúka?
| Pivnica | |
| MHD 0 minút pešo |
| Parkovanie | |
| Terasa |
V okolí nehnuteľnosti nájdete
Stále hľadáte to pravé?
Nastavte si strážneho psa. Ponuky vybrané na mieru dostanete súhrnne 1× denne e-mailom. S Premium profilom máte po ruke rovno 5 strážcov a keď sa niečo objaví, informujú vás obratom.

































