Prenájom bytu 3+1 • 104 m² bez realitkyAm Steinkart 5b, , Bavorsko
Am Steinkart 5b, , BavorskoMHD 5minút pešo • Výťah • GarážBáječné bývanie a život v Bad Griesbach
Tu sa spája architektúra s pocitom domova. Byty spájajú príjemný pocit kvality a istoty štýlu. Priestranné, svetlom naplnené miestnosti očaria vďaka kvalitným materiálom v nadčasovej, krásnej estetike.
V krásnej časti Bad Griesbach pre Vás realizujeme v najatraktívnejšej lokalite náročný projekt novostavby so štyrmi bytovými domami, ktorý zahŕňa celkom 44 bytových jednotiek výnimočného a moderného typu. Okrem kvality kladieme pri plánovaní a realizácii veľký dôraz na súčasnú a regiónu prispôsobenú architektúru. Pozemok sa nachádza bájne na vyvýšenej polohe na konci osady a ponúka voľný výhľad na hory. Mestské námestie, lekári a všetky zariadenia dennej potreby sú pohodlne dostupné pešo.
Byty zaujmú svojimi priestrannými balkónmi, strešnými terasami a terasami so záhradami. Záhrady prízemných bytov sú k dispozícii výlučne pre vlastníka. Penthouse byty a byty vo vyšších poschodiach ponúkajú nádherný a neprekrytý výhľad s pohľadom na Alpy. Výťahy prepravujú všetkých obyvateľov pohodlne z podzemnej garáže do každého poschodia. Veľká časť bytov je bezbariérová.
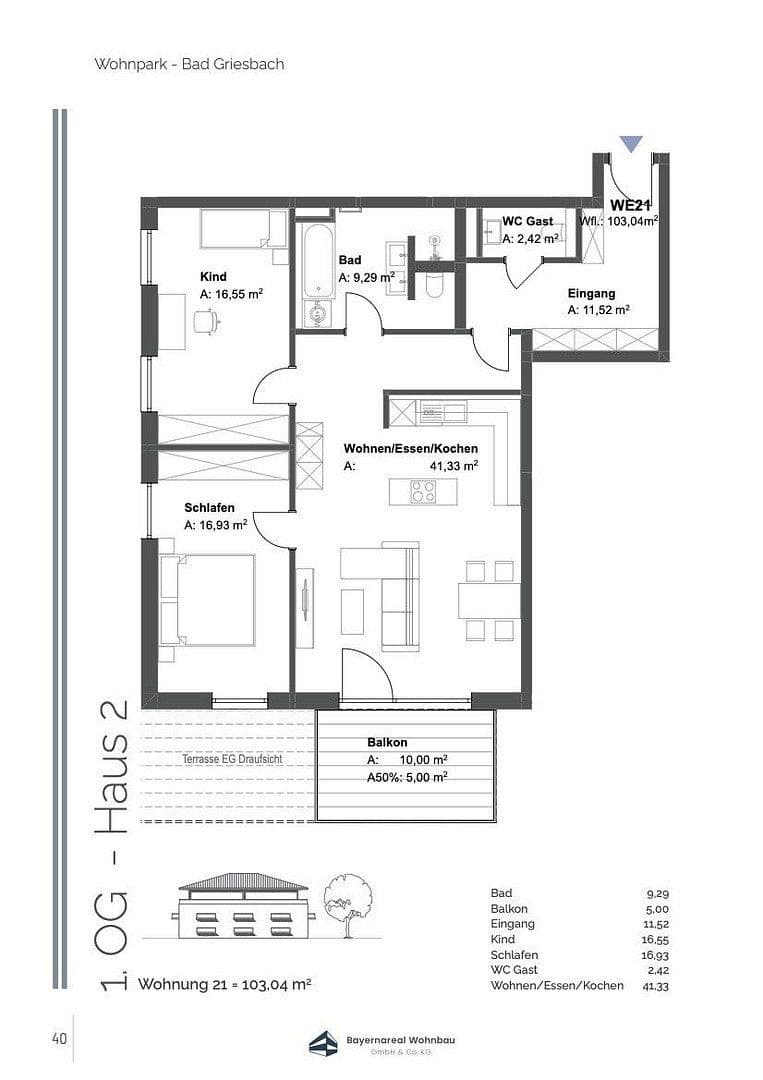
Náš slnečný 3-izbový byt s južným balkónom, spálňou, kúpeľňou a priestranným otvoreným obývacieho-jedálenského-kuchynským priestorom je ideálny pre rodiny a páry, ktoré hľadajú miesto na oddych a pohodu! Veľká záhrada je výlučne určená na používanie príslušného vlastníka.
Samozrejme, projekt ponúka TG-parkovacie miesta, miesta v carporte aj vonkajšie parkovacie miesta. Okrem toho má každý byt vlastný pivničný priestor.
Štandard KFW 40 QNG:
Stavba spĺňa všetky kritériá aktuálnej EnEV v triede energetickej efektívnosti KfW40 QNG a so svojím tepelným obalom budovy podčiarkuje udržateľný spôsob výstavby. Tým pádom je stavba veľmi energeticky úsporná, udržateľná a šetrná k životnému prostrediu. Vďaka tejto výstavbe budú budúce prevádzkové náklady veľmi nízke. Energetický koncept je navyše podporený fotovoltaickou inštaláciou s výkonom 10 kWp.
Zloženie nájomného:
- Nájomné za 2-izbový byt: 1 170,00 €
- Nájomné za 2× parkovacie miesto v podzemnej garáži: 130,00 €
- Nájomné za vstavanú kuchyňu: 65,00 €
- Prevádzkové náklady: 190,00 €
= Celkové nájomné (vrátane tepla): 1 555,00 €
VIAC BYTOV JE K DISPOZÍCII, KTORÉ SA DAJÚ PREHLIADNUŤ PO DOHODE PREHLIADKY V BYTOVOM COMPLEXE!
Bývanie a život v Bad Griesbach
V neprekúpateľnej najlepšej lokalite s báječným výhľadom a v bezprostrednej blízkosti centra Bad Griesbach vzniknú štyri bytové domy, ktoré poskytnú celkom 44 moderných a výnimočných bytových jednotiek.
360-stupňová prehliadka:
https://bayernarealwohnbau.viewin360.co/share/collection/7bQ8V?logo=bWVkaWEvNTQxNTIyLzY2ZTQtMDI1Ni00MTViLWYxOTIucG5n&info=0&logosize=160&fs=1&vr=1&sd=1&thumbs=1&inst=de
Moderné a exkluzívne vybavenie:
+ Moderná stavba a kvalitné vybavenie podľa štandardu KfW 40 NH Efektívny dom
+ Tepelnoizolačné tehly
+ Vstavaná kuchyňa
+ Fotovoltaická inštalácia s 10 kWp
+ Prízemné byty s terasami a záhradným areálom
+ V každom bytovom dome je výťah
+ Energeticky úsporné kúrenie prostredníctvom peletových kotlov
+ Väčšina bytov je bezbariérová
+ Kvalitné parkety z masívneho dreva / moderné dlaždice
+ Individuálne nastaviteľné podlahové kúrenie pre príjemný pocit komfortu bývania
+ Podlahové sprchy a dizajnové kúpeľňové vybavenie
+ Čiastočne s hosťovskou toaletou
+ Alu-plastové okná, vonku antracit, vo vnútri biele (trojsklo)
+ Elektricky ovládateľné rolety a lamely
+ Decentrálne vetranie s rekuperáciou tepla
+ Parkovacie miesta v carporte
+ Vonkajšie parkovacie miesta
+ Na každý byt patrí 1 pivničný priestor
Parametre nehnuteľnosti
| Vek | Nad 50 rokov |
|---|---|
| Stav | Novostavba |
| Číslo inzerátu | 1011689 |
| Úžitková plocha | 104 m² |
| Dostupné od | 15. 11. 2025 |
|---|---|
| Dispozícia | 3+1 |
| PENB | A - Mimoriadne úsporné |
| Cena za jednotku | 11,25 € / m2 |
Čo táto nehnuteľnosť ponúka?
| Balkón | |
| Pivnica | |
| Výťah |
| Bezbariérový prístup | |
| Garáž | |
| MHD 5 minút pešo |
V okolí nehnuteľnosti nájdete
Stále hľadáte to pravé?
Nastavte si strážneho psa. Ponuky vybrané na mieru dostanete súhrnne 1× denne e-mailom. S Premium profilom máte po ruke rovno 5 strážcov a keď sa niečo objaví, informujú vás obratom.




















