Predaj domu • 250 m² bez realitkyHauptstr. 151 Mannheim-Feudenheim Feudenheim Baden-Württemberg 68259
Dôkladne zrekonštruovaná dvojdomovka v secesnom štýle s luxusnými detailmi a najmodernejšou technikou
V srdci očarujúcej manheimanskej štvrte Feudenheim vzniká pravý klenot bývania:
Dôkladne zrekonštruovaná starostlivo zachovaná dvojdomovka, ktorá spája historický charakter s najmodernejšou technikou a luxusnými detailmi.
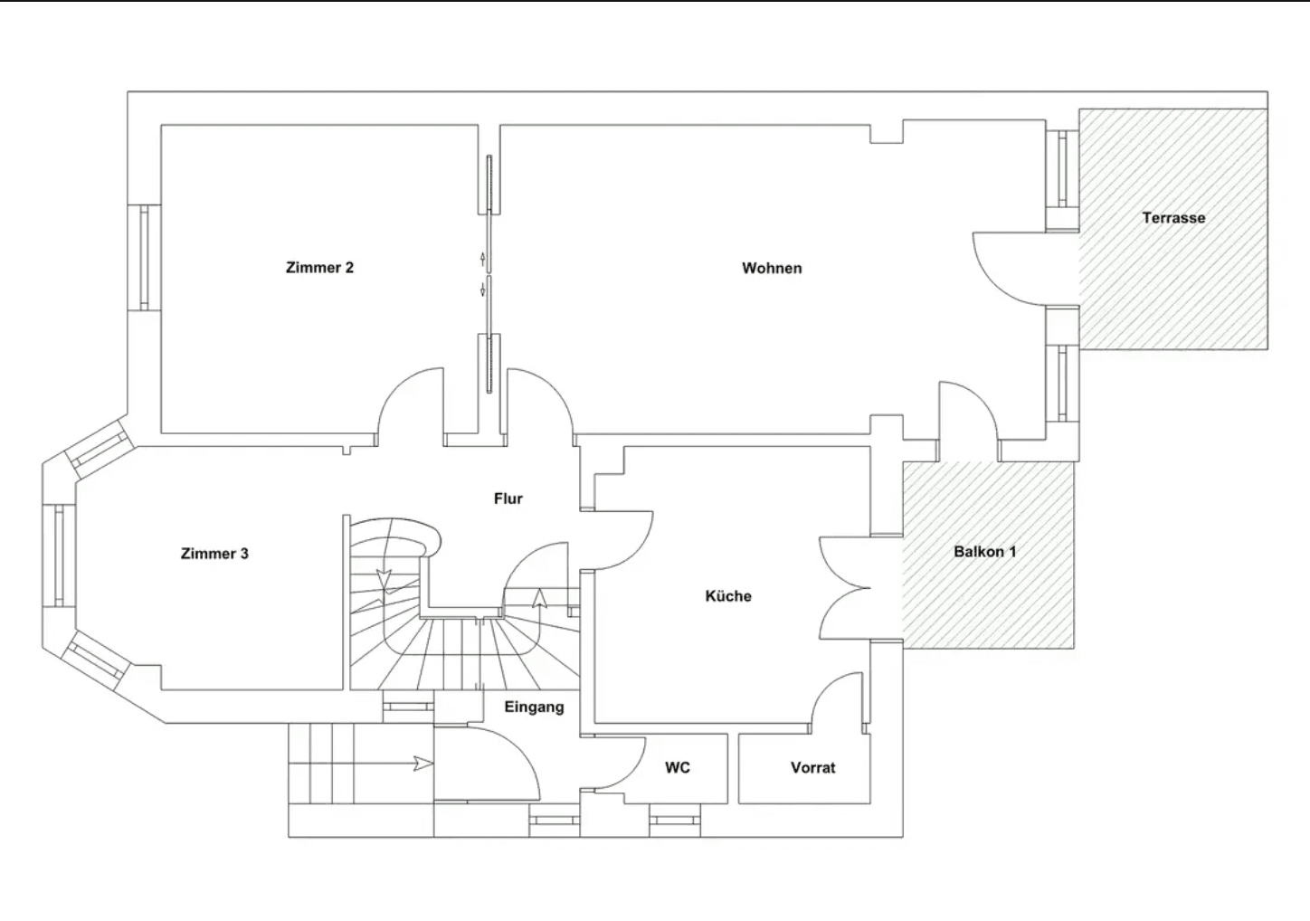
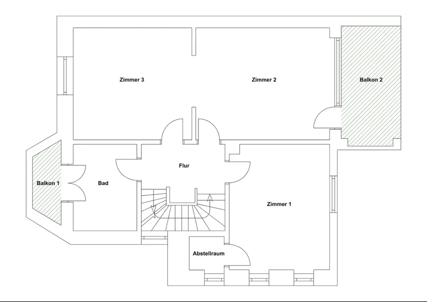
Na približne 250 m² obytného priestoru sa rozprestiera premyslený dispozíciu s deviatimi izbami, dvoma balkónmi, záhradou (juhozápadná orientácia), garážou a parkovacím miestom – ideálna pre rodiny, ktoré hľadajú dizajn, komfort a udržateľnosť.
Luxusné vybavenie zahŕňa exkluzívny dubový parket s rybiacim vzorom, terrazzo v kuchyni a kúpeľni, trojitostatkové drevené okná s elektrickými hliníkovými žalúziami, hladko omietnuté steny a výšku stropov presahujúcu 2,90 metra – jasné vyjadrenie zmyslu pre štýl a priestrannosť.
Interiér zaujme talianskym dizajnom kúpeľní s čiernymi armatúrami značky Gessi, neoro umiestnenými umývadlami, na mieru vyrobeným nábytkom a dizajnovou keramikou od Kartell by Laufen – v kombinácii s prírodným kameňom pre nadčasovú eleganciu.
Maximálny komfort bývania zaistí inteligentné ovládanie svetiel a žalúzií, videointerkom, prémiové spínače JUNG LS990, samostatné hosťovské WC, funkčný práčovňový priestor a pripravená pracovňa/home-office v prízemí.
Moderná vzduchová tepelná čerpadlo, priestranný piatok a pripravené prípojky pre elektromobilitu dokonale doladia udržateľný energetický koncept.
Feudenheim samotný ponúka so svojimi upratanými ulicami, vysokou kvalitou života a blízkosťou centra jedno z najžiadanejších obytných miest v Manheime – ideálne pre tých, ktorí hľadajú niečo výnimočné.
Aktuálne je dom v hrubej rekonštrukcii. Dokončenie je plánované do januára 2026. Ak sa teraz rozhodnete pre tento dom, môžete ovplyvniť vnútorné úpravy.
Váš nový domov sa nachádza v srdci očarujúcej manheimanskej štvrte Feudenheim.
Nákupné a servisné služby v prevažne rodinne orientovaných obchodoch pokrývajú všetky potreby.
V piatok sa na radnici koná týždenný trh.
Pre deti a mládež je v štvrti niekoľko detských škôl, základná škola, stredná škola a gymnázium.
Obchody, lekári a kaviarne sú ľahko dostupné pešo. MHD (autobusy, električky) je výborne rozvinutá – centrum Manheimu, Heidelbergu a Frankfurtu je rýchlo dosiahnuteľné.
Blízky Necker, početné zelené plochy a dobre zbudovaná cyklistická sieť ponúkajú oddych priamo za dverami.
Dôkladne zrekonštruovaná dvojdomovka starodarového štýlu s luxusnými detailmi a najmodernejšou technikou:
- Podlahy: rybiacim vzorom z dubového parketu, štýlové drevené dosky a terrazzo vo všetkých priestoroch
- Okná: trojitostatkové drevené okná s elektrickými hliníkovými žalúziami
- Steny: hladko omietnuté povrchy (bez tapiet), natreté na bielo – ideálne pre moderné dizajnovanie
- Kúpeľne: vysoko kvalitná prírodná kameňová optika, elegantný dizajn kúpeľní s talianskymi čiernymi armatúrami značky Gessi, neoro umiestnené umývadlá a nábytok vyrobený na mieru
- Sanita: dizajnová keramika od Kartell by Laufen
- Smart Home: inteligentné ovládanie svetiel a žalúzií, integrovaný videointerkom, prémiové spínače od JUNG LS990
- Energetika: nové, energeticky úsporné vzduchové tepelné čerpadlo s výmenníkom tepla
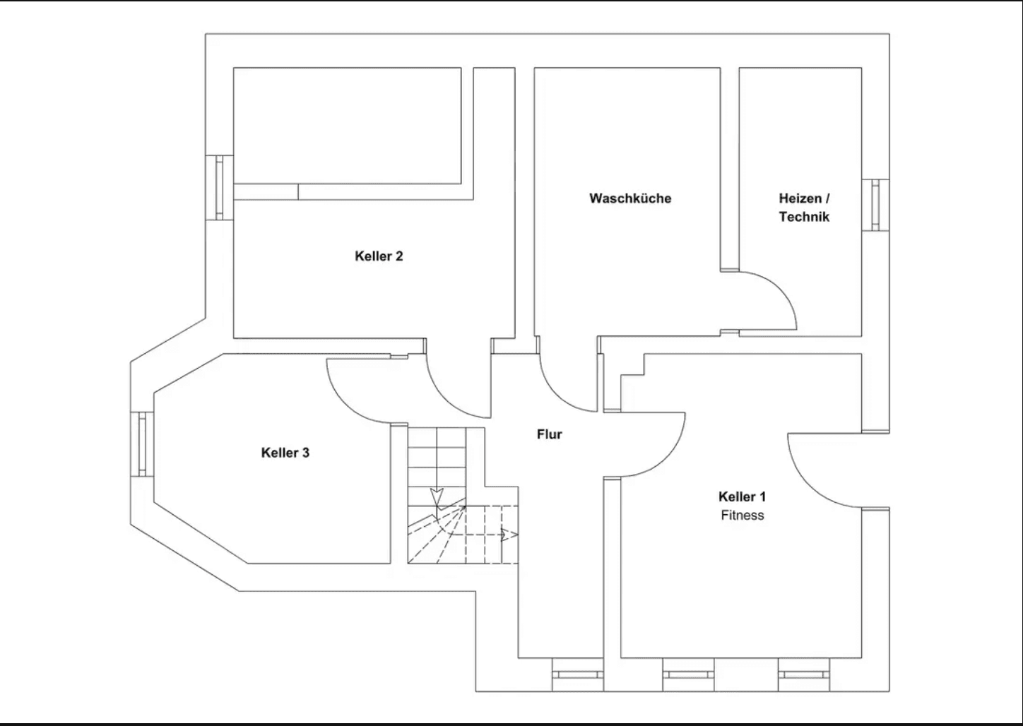
- Podzemie: priestranné, suché sklepné priestory s veľkým úložným priestorom pre hobby, zásoby alebo techniku
- Hosťovské WC v prízemí
- Pracovňa/Home-office v 1. alebo 2. poschodí
- Elektrická/vodovodná prípojka v záhrade (príprava pre E-nabíjačku)
- Nové rozvody (voda/kanalizácia/centrálne kúrenie)
- Protivlomové vstupné dvere
- Výška miestnosti (~3 m)
- Samostatný práčovňový priestor v kuchyni
Parametre nehnuteľnosti
| Vek | Nad 50 rokov |
|---|---|
| Číslo inzerátu | 1011485 |
| Úžitková plocha | 250 m² |
| Celkové poschodia | 3 |
| Stav | Po rekonštrukcii |
|---|---|
| PENB | B - Veľmi úsporné |
| Plocha pozemku | 311 m² |
| Cena za jednotku | 5 920 € / m2 |
Čo táto nehnuteľnosť ponúka?
| Balkón | |
| Garáž | |
| MHD 1 minúta pešo |
| Pivnica | |
| Parkovanie | |
| Terasa |
V okolí nehnuteľnosti nájdete
Stále hľadáte to pravé?
Nastavte si strážneho psa. Ponuky vybrané na mieru dostanete súhrnne 1× denne e-mailom. S Premium profilom máte po ruke rovno 5 strážcov a keď sa niečo objaví, informujú vás obratom.









