Predaj domu • 460 m² bez realitkyRodelhaus 1, , Dolné Sasko
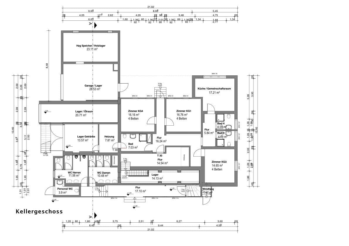
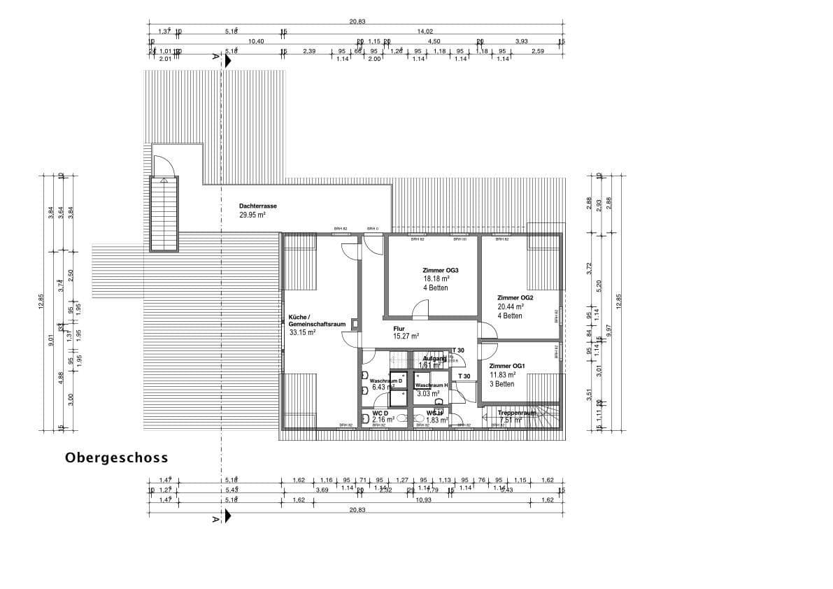
Rodelhaus 1, , Dolné SaskoMHD 12minút automVitajte v Rodelhause v Braunlage – jedinečnej nehnuteľnosti s charakterom, 120-ročnou históriou, umiestnenej v samostatnom prostredí. Nachádza sa v slnečnej polohy na svahu pri Wurmberge a toto pôvabné domček ponúka dokonalú kombináciu pokoja, oddychu a turistického kúzla. Či už ako vlastné bývanie, rekreačné sídlo pre hostí alebo gastronomický prevádzkovateľ – tu máte otvorené všetky možnosti. Nepretržití susedia, servisná stanica v dohľade a jedinečné panoráma s výhľadom až na Rennsteig v Durindsku vás očaria. V podstate objekt zahŕňa vnútorné reštauračné priestory (prízemie), záhradnú reštauráciu, dve rekreačné byty (suterén a poschodie), byt pre vlastníka, skladové a technické miestnosti. Celková využiteľná plocha je približne 760 m², pričom záhradná reštaurácia ponúka 120 miest. Podrobnosti nájdete v plánoch.
Rodelhaus sa nachádza v výnimočnej svahovej polohe – priamo pri Wurmberge, jednom z najobľúbenejších lyžiarskych stredísk v severnom Nemecku. Vchod do pešej a lyžiarskej siete strediska je prakticky priamo pred dverami. Centrum Braunlage so svojimi obchodmi, reštauráciami a kúpeľným parkom je vzdialené približne 1,5 km a za pár minút je dosiahnuteľné.
Rodelhaus v Braunlage je nehnuteľnosť s osobitým pôvabom a rozmanitým využitím. Na viacerých úrovniach spája priestranné gastronomické priestory, útulné obytné zóny a samostatné izby so sanitárnymi zariadeniami – ideálne pre gastronomiu, rekreačné byty alebo ako súkromné útočisko pre rodinu a priateľov. Objekt bol modernizovaný v 4 krokoch. Do modernizácie patrí obnovu energetického zabezpečenia, vykurovania, rekonštrukciu rekreačných bytov, rekonštrukciu bytu vlastníka, opravu strechy s inštaláciou 18 kW fotovoltaiky, zriadenie záhradnej reštaurácie s 120 miestami, výstavbu exteriérovej reštaurácie s vlastným energetickým zabezpečením a množstvo dôležitých opatrení týkajúcich sa protipožiarnej ochrany. Počas 15 rokov bolo investovaných približne 1 milión €.
Jedinečný tradičný dom s 120-ročnou históriou a výraznou identitou
Perfektná poloha pre zimné športy, cyklistiku a ďalších milovníkov prírody
Pokojná nehnuteľnosť s výhľadom do prírody a na Braunlage
Južný svah na 740 m n. m. a slnko od skorých hodín ráno až do neskorých večerných hodín
Dobrá dostupnosť cez cestu B4 (Göttingen – Braunschweig - Goslar)
Solídna stavebná konštrukcia a existujúca gastronómia
Vybavené na prenesenie s kompletným inventárom gastronomických kuchýň v internej aj exteriérovej reštaurácii
Iné:
Nehnuteľnosť je momentálne v prevádzke, čo vám poskytuje maximálnu slobodu pre ďalšie fungovanie alebo prestavbu. Predaj prebieha priamo od súkromného vlastníka. Ideálne pre rekreačné prenájmy, gastronomiu alebo ako druhé bývanie pre vlastníka.
Parametre nehnuteľnosti
| Vek | Nad 50 rokov |
|---|---|
| Číslo inzerátu | 1011328 |
| Plocha pozemku | 2 041 m² |
| Cena za jednotku | 3 478,26 € / m2 |
| Stav | Po rekonštrukcii |
|---|---|
| Úžitková plocha | 460 m² |
| Celkové poschodia | 4 |
Čo táto nehnuteľnosť ponúka?
| Balkón | |
| MHD 12 minút autom |
| Pivnica | |
| Terasa |
V okolí nehnuteľnosti nájdete
Stále hľadáte to pravé?
Nastavte si strážneho psa. Ponuky vybrané na mieru dostanete súhrnne 1× denne e-mailom. S Premium profilom máte po ruke rovno 5 strážcov a keď sa niečo objaví, informujú vás obratom.





















































