Predaj bytu 4+1 • 107 m² bez realitkyBorkumerstr.1 Wiesbaden Wiesbaden Hessen 65199
Borkumerstr.1 Wiesbaden Wiesbaden Hessen 65199MHD 3 minúty pešo • GarážExkluzívny, mimoriadne svetlý, 4-izbový duplexový byt v pokojnej a rodinnej lokalite Wiesbaden.
Štýlový byt so svojím premysleným pôdorysom sa prezentuje vo výbornom stave.
V treťom nadzemnom podlaží veľmi udržiavanej obytnnej budovy z roku 1994 sa nachádza tento klenot – byt.
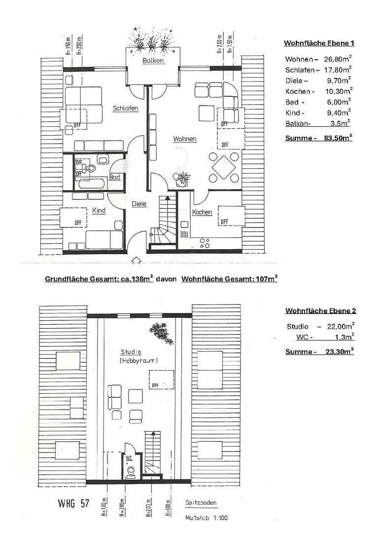
Byt má základnú plochu približne 136 m², z toho obytná plocha okolo 107 m², ktorá je rozdelená do dvoch úrovní.
Na dolnej úrovni sa nachádza obytná/jedálenská časť o veľkosti cca 45 m² s otvorenou kuchyňou a vstupom na balkón, 2 spálne, z ktorých jedna má tiež vstup na balkón, a krásna kúpeľňa s denným svetlom, zatiaľ čo na hornej úrovni je úžasné štúdio s samostatnou toaletou.
Byt je veľmi svetlý s nádherným výhľadom do všetkých strán.
Podlahové krytiny v obytných priestoroch pozostávajú z odolných a kvalitných materiálov, chodba, kúpeľňa s denným svetlom vybavená sanitárnymi výrobkami od Villeroy & Boch, ako aj toaleta na hornom poschodí sú obložené dlažbou.
V roku 2023 boli inštalované prémiové klimatizačné zariadenia, takže najmä počas letných mesiacov panuje príjemné bydlisko, pričom v zimných mesiacoch je možné s ich pomocou vykurovanie.
V tomto kontexte bol aj balkón vylepšený, keď boli inštalované nové podlahové krytiny a značková konštrukcia pre zatienenie.
Kvalitná vstavaná kuchyňa s modernými Siemens spotrebičmi nie je súčasťou kúpnej ceny.
Byt sa vykurí centrálnym teplom (diaľkovým kúrením).
Okrem bytu nájdete aj pivnicu o veľkosti cca 12 m² a možnosť spoločného využívania miestnosti pre bicykle a práčovňu.
Mesačný poplatok za dom (hausgeld) je 390,- €/mesiac.
Spoločenstvo vlastníkov (WEG) je veľmi udržiavané bez akéhokoľvek oneskorenia v údržbe, rezervy sú nadpriemerne vysoké, takže nehnuteľnosť je pre budúce modernizačné opatrenia vynikajúco pripravená.
K nemovitosti patrí aj parkovacie miesto v podzemnej garáži s elektrickým pripojením (napr. pre nabíjanie elektromobilov) – kúpna cena 20.000 €.
Základné údaje na prvý pohľad:
• Obytna plocha: cca 107 m² /+ využiteľná plocha cca 29 m²
• Rozloženie: 4 izby, kuchyňa, kúpeľňa, balkón
• Poschodie: 3. poschodie
• Rok výstavby: 1994
• K dátumu sťahovania: podľa dohody
Extra vybavenie / špeciálne vlastnosti:
• Kvalitná vstavaná kuchyňa (Siemens elektrospotrebiče)
• Moderné a vysoko kvalitné vybavenie
• Prístup na balkón zo dvoch izieb
• Kompletná klimatizácia (chladenie aj kúrenie)
• Zatienený balkón s novou podlahou
• Veľká pivnica
• Parkovacie miesto v podzemnej garáži vrátane elektrického pripojenia
• Milé a priateľské susedstvo
• Výborná lokalita
• Energeticky úsporný byt (pozri energetický preukaz)
• Bez provízie pre kupujúceho
Parametre nehnuteľnosti
| Vek | Nad 50 rokov |
|---|---|
| Dispozícia | 4+1 |
| Číslo inzerátu | 1011284 |
| Cena za jednotku | 4 196,26 € / m2 |
| Stav | Dobrý |
|---|---|
| Poschodie | 3. poschodie z 3 |
| Úžitková plocha | 107 m² |
Čo táto nehnuteľnosť ponúka?
| Balkón | |
| Garáž |
| Pivnica | |
| MHD 3 minúty pešo |
V okolí nehnuteľnosti nájdete
Stále hľadáte to pravé?
Nastavte si strážneho psa. Ponuky vybrané na mieru dostanete súhrnne 1× denne e-mailom. S Premium profilom máte po ruke rovno 5 strážcov a keď sa niečo objaví, informujú vás obratom.













