
Prenájom bytu 4+1 • 107 m² bez realitkyDorfstraße 61, , Sasko
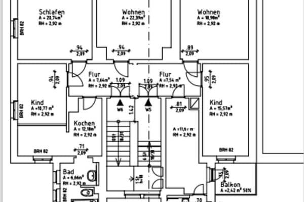
Tento svetlý a priestranný 4-izbový byt na 1. poschodí ponúka s rozlohou cca 106 m² ideálny domov pre rodiny alebo páry s potrebou priestoru. Byt poskytuje príjemný pocit bývania v pokojnom prostredí. Mimoriadne vyniká priestranné rozloženie izieb a vlastná terasa, ktorá zvyšuje komfort bývania.
Lokalita:
Byt sa nachádza v pokojném a rodinne príjemnom prostredí v Grünhainich. Obchody, lekári, školy a materské školy sú dobre dostupné. Okolie ponúka príjemnú kombináciu bývania blízko prírody a dobrého spojenia smerom k Chemnitzu.
Vybavenie:
• cca 106 m² obytná plocha
• poloha na 1. poschodí
• 4 dobre rozmiestnené izby
• priestranný obývací priestor s množstvom denného svetla
• 1 spálňa a 2 ďalšie izby (ideálne ako detská izba alebo domáca kancelária)
• kompletne zrekonštruovaná, moderná kúpeľňa s vaňou a samostatnou sprchou
• samostatná toaleta.
Kúpeľňa bola nedávno kompletne zrekonštruovaná a zaujme moderným vybavením s kvalitnými dlaždicami, vaňou a samostatnou sprchou.
Kuchyňa:
Je vybavená vstavaná kuchyňa, ktorú si môže záujemca prevziať od súčasného nájomcu (vyjednávacia základňa cca 3 500 €). Prevzatie prebieha priamo medzi predchádzajúcim nájomcom a novým nájomcom a nie je podmienkou pre prenájom bytu.
Dostupnosť:
Byt je k dispozícii od 31.07.2026.
Ostatné:
Byt je aktuálne ešte obývaný a je odovzdaný nehnaliteľne. Nábytok zobrazený na fotkách slúži iba na lepšiu predstavu rozloženia a nepatrí do prenájmu.
Parkovacie miesto:
Parkovacie miesto je možné si na požiadanie prenajať priamo cez správu domu.
Vhodné pre:
Ideálne pre rodiny, páry alebo pracujúcich s potrebou priestoru.
V prípade záujmu sa tešíme na vašu správu s krátkym predstavením.
Parametre nehnuteľnosti
| Vek | Nad 50 rokov |
|---|---|
| Stav | Dobrý |
| Poschodie | 1. poschodie |
| Úžitková plocha | 107 m² |
| Dostupné od | 31. 7. 2026 |
|---|---|
| Dispozícia | 4+1 |
| Číslo inzerátu | 1011098 |
| Cena za jednotku | 7,24 € / m2 |
Čo táto nehnuteľnosť ponúka?
| Pivnica | |
| Terasa |
| MHD 3 minúty autom |
V okolí nehnuteľnosti nájdete
Stále hľadáte to pravé?
Nastavte si strážneho psa. Ponuky vybrané na mieru dostanete súhrnne 1× denne e-mailom. S Premium profilom máte po ruke rovno 5 strážcov a keď sa niečo objaví, informujú vás obratom.














