
Prenájom bytu 2+1 • 69 m² bez realitkyEschollbrücker Straße 12 Darmstadt Darmstadt Hessen 64295
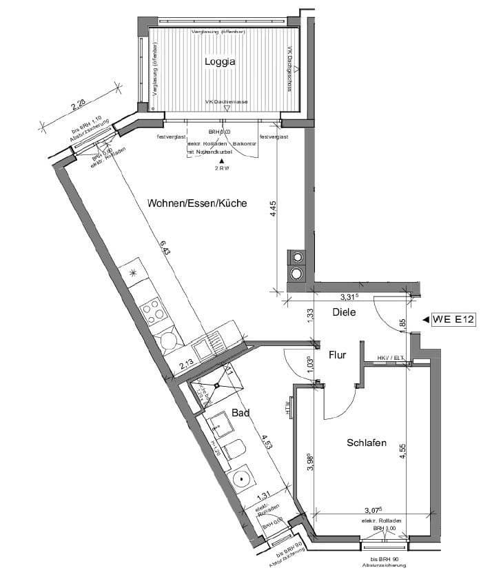
Eschollbrücker Straße 12 Darmstadt Darmstadt Hessen 64295MHD 2 minúty pešo • Výťah • GarážTáto exkluzívna 2‐izbová bytosť sa nachádza na 4. poschodí nového rezidenčného komplexu HERZOGHÖFE v obľúbenom Darmstadtskom štvrtí Verleger Viertel. Prvý nájom ponúka moderné, energeticky efektívne bývanie s kvalitným vybavením, výťahom, podzemnou garážou a chránenou západnou loggiou, ktorá sa vďaka posuvným oknám od podlahy dá úplne otvoriť alebo zatvoriť – ideálna pre celoročné využitie.
Priestranná obývacia a jedálenská časť s čiastočne otvorenou kuchyňou, svetlá spálňa a komfortná kúpeľňa s denným osvetlením vytvárajú štýlové bývanie. Byt očaruje čistými líniami, kvalitnými materiálmi a modernou technikou budovy podľa normy Effizienzhaus-55.
Byt sa nachádza v žiadanej štvrti Verleger vo vnútri Darmstadtu – centrálne, mestské a zároveň príjemne pokojné. Centrum, historická časť Bessungen a hlavná stanica sú dostupné za pár minút. Nakupovanie, reštaurácie, kaviarne a MHD sú v bezprostrednej blízkosti.
1,5 km k Luisenplatz / centru mesta
3 minúty pešo k zariadeniu Albert-Schweitzer-Anlage
10 minút pešo k záhrade Prinz-Emil-Garten
Ideálne spojenie na A5 a A67
Krátke vzdialenosti k Technickej vysokej škole Darmstadt a frankfurtskému letisku
Poloha spája mestský život s vysokou kvalitou bývania – perfektné pre pracujúcich, páry aj dojíždzaných.
Prvý nájom v kvalitnom novostavbovom komplexe HERZOGHÖFE
Veľká západná loggia, úplne uzatvárateľná vďaka posuvným oknám od podlahy – perfektná pre prechodné obdobia
Parketová podlaha vo všetkých obytných priestoroch s príjemným podlahovým kúrením
Kvalitná vstavaná kuchyňa
Kúpeľňa s denným osvetlením, bezprímetovou sprchou, značkovou keramikou a pripojením pre práčku
Moderná bloková tepelná elektráreň a efektívna izolácia (Effizienzhaus 55)
Elektrické žalúzie na všetkých oknách
Video domofónny systém
Výťah do všetkých poschodí
Podzemné parkovacie miesto (jednotlivé miesto)
Skladová miestnosť zahrnutá
Byt sa prenajíma po prvýkrát.
Domáce zvieratá po dohode.
Minimálna doba prenájmu: 24 mesiacov
Nekúriaca bytosť.
Parametre nehnuteľnosti
| Vek | Nad 50 rokov |
|---|---|
| Dispozícia | 2+1 |
| Číslo inzerátu | 1010935 |
| Úžitková plocha | 69 m² |
| Stav | Novostavba |
|---|---|
| Poschodie | 4. poschodie z 5 |
| PENB | B - Veľmi úsporné |
| Cena za jednotku | 19,57 € / m2 |
Čo táto nehnuteľnosť ponúka?
| Balkón | |
| Garáž | |
| MHD 2 minúty pešo |
| Pivnica | |
| Výťah |
V okolí nehnuteľnosti nájdete
Stále hľadáte to pravé?
Nastavte si strážneho psa. Ponuky vybrané na mieru dostanete súhrnne 1× denne e-mailom. S Premium profilom máte po ruke rovno 5 strážcov a keď sa niečo objaví, informujú vás obratom.




















