
Predaj bytu 4+1 • 128 m² bez realitkySpandauer Damm 52 Berlin Charlottenburg Berlin 14059
Spandauer Damm 52 Berlin Charlottenburg Berlin 14059MHD 2 minúty pešo • VýťahPriamo pri zámku Charlottenburg a jeho rozsiahlym parku vzniká v druhej rade ROTE CHARLOTTE, novostavba s piatimi bezbariérovými rodinnými bytmi s obytnou plochou 110 m², pozostávajúcimi z veľkej obývacej kuchyne, troch spální, kúpeľne a hostinskej toalety.
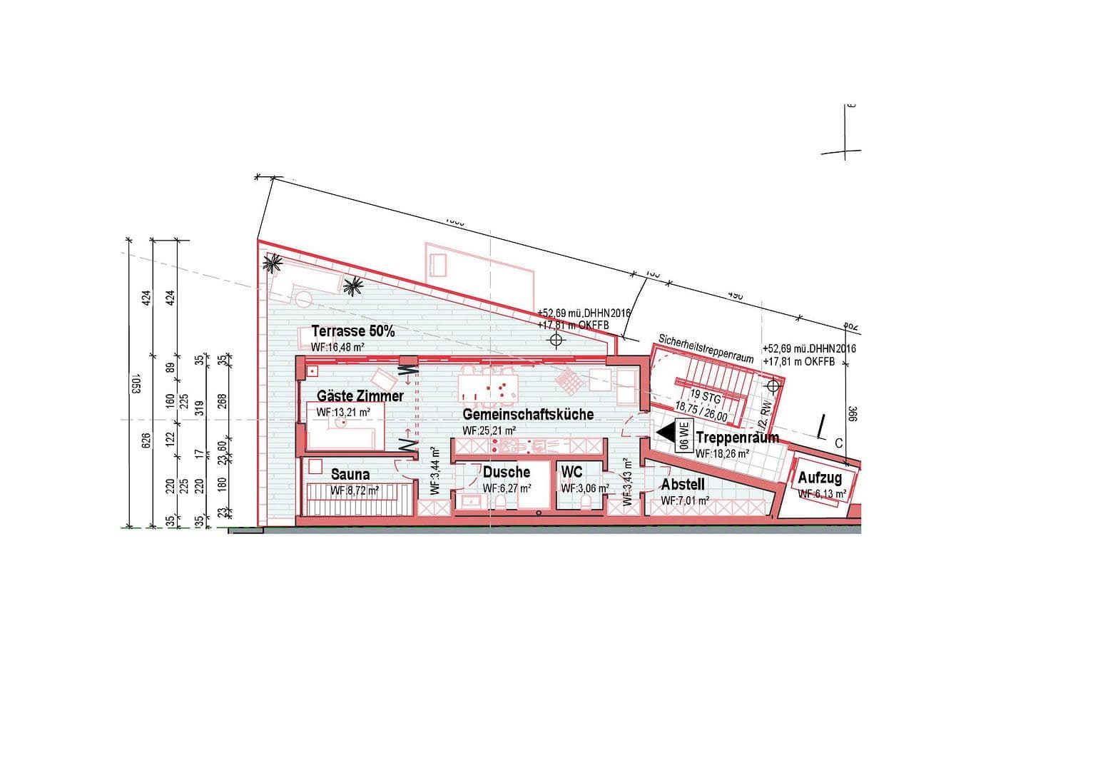
Všetkých päť bytov si navyše spoločne delí celé podkrovie s veľkou spoločnou terasou (33 m²), spoločenskou miestnosťou (25 m²), hostinským bytom a saunou.
Tu uvedená cena sa vzťahuje na byt na 3. poschodí vrátane podielov na spoločných priestoroch na podkroví (5. poschodie). Sú k dispozícii aj ďalšie byty v nízko položenom prízemí (HP), 1. poschodí, 2. poschodí a 4. poschodí, ktoré sú či už lacnejšie, či drahšie – pozri cenovú prehľadnicu.
Stavebný pozemok sa nachádza dopravne výhodne takmer priamo pri záhrade zámku Charlottenburg. Hoci je Spandauer Damm veľmi frekventovaná ulica, keďže novostavba leží v druhej rade v záhradnej časti, hlukové obmedzenie bude držané na minime.
Na južnej strane diaľnice sa nachádza obľúbená štvrť Seeling s kaviarňami a možnosťami na večerné vychádzky. Ku ringbahn je to len krátka prechádzka a rôzne autobusové linky majú zastávky priamo pred dverami. K Nemeckej opere to pešo trvá síce polhodinu, avšak autobus M45 túto vzdialenosť výrazne skracuje, najmä keď začne pršať.
Linka M45 potom do 20 minút dorazí na stanicu Zoo, kde hlavná trať S-Bahn ponúka rýchle spojenie smerom na východ.
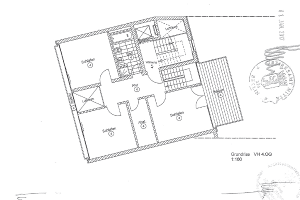
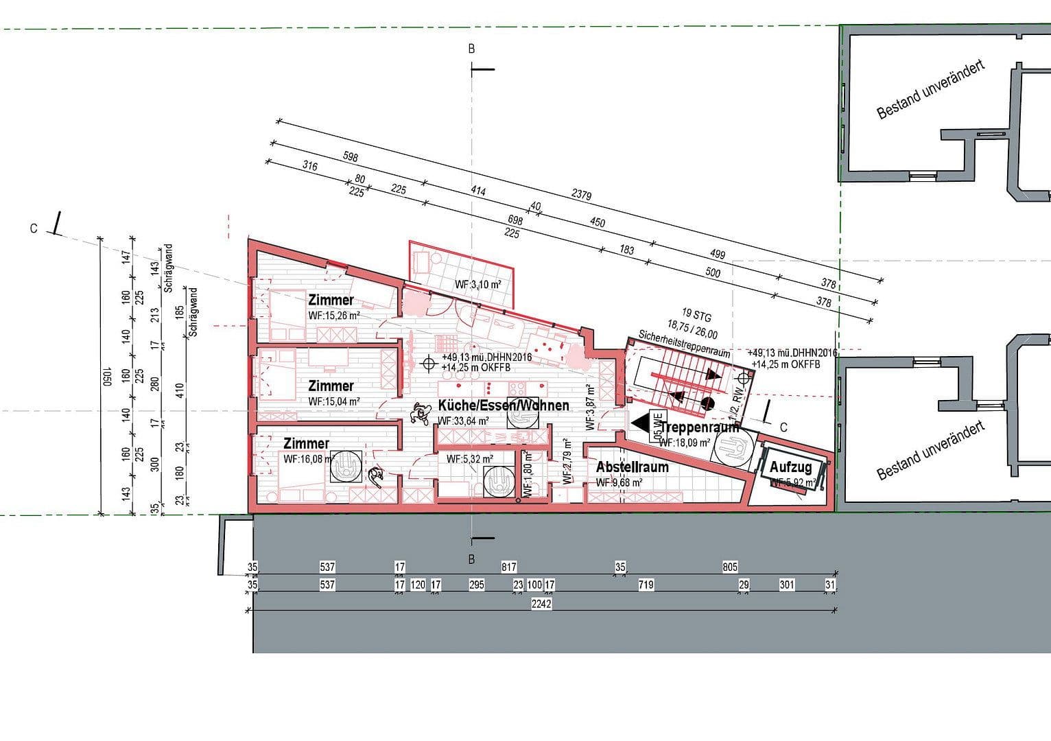
Vždy je iba jeden byt na poschodí. Všetky byty od prízemia (vysoké prízemie) až po 4. poschodie majú zo statických a ekonomických dôvodov mať čo najviac rovnaké dispozície. V centre je veľká obývacia kuchyňa s pripojeným balkónom, tri spálne, vnútorná kúpeľňa, hostinská toaleta a veľká úložňa. Výška stropov presahuje 3 m.
Výťah zastavuje na každom poschodí, čím je zabezpečená bezbariérovosť. V suteréne je vyhradená miestnosť pre pripojenie vzduchového tepelného čerpadla, ako aj úložný priestor. Všetky byty sú orientované na východ, oproti nie je žiadna budova (a ani v budúcnosti sa tu nevznikne žiadna novostavba), takže slnko ráno priamo osvetľuje miestnosti. Keď sa slnko po poludní, nad zenitom, posúva, majú všetci prístup na spoločnú terasu na streche. Táto susedí s veľkým krytým spoločným priestorom s kuchyňou, ktorý môže slúžiť pre coworking, stretnutia alebo oslavy. Z tohto priestoru sa dostanete k hostinskému bytu a spoločnej saune s oddeleným sprchovacím kútom.
Náklady na spoločné podkrovie nesú všetky päť bytov rovným dielom.
Záujemcovia sa prosím ozvite na prvý telefonát s koordinátorom stavebnej skupiny, pánom Duske. Ak sa vytvorí dobrá alchýmia, obdržíte rozsiahlu príručku k ďalšiemu štúdiu.
Stavebná skupina
groove top | Rote Charlotte
www.groove-top.de/rote-charlotte
Impressum:
Frank Duske
ifo ideen für orte gmbh
Swinemünder Str. 2
10435 Berlín
t 030/ 690 40 - 515
f 030/ 690 40 - 516
m 0177/ 506 86 53
Okresný súd Charlottenburg
HRB 100520 B
DIČ 30/357/36068
IČ DPH DE254409982
Povolenie §34c GewO
Okresný úrad Mitte v Berlíne
Parametre nehnuteľnosti
| Vek | Nad 50 rokov |
|---|---|
| Dispozícia | 4+1 |
| Číslo inzerátu | 1010837 |
| Cena za jednotku | 9 234,38 € / m2 |
| Stav | Novostavba |
|---|---|
| Poschodie | 3. poschodie z 5 |
| Úžitková plocha | 128 m² |
Čo táto nehnuteľnosť ponúka?
| Balkón | |
| Pivnica | |
| MHD 2 minúty pešo |
| Bezbariérový prístup | |
| Výťah |
V okolí nehnuteľnosti nájdete
Stále hľadáte to pravé?
Nastavte si strážneho psa. Ponuky vybrané na mieru dostanete súhrnne 1× denne e-mailom. S Premium profilom máte po ruke rovno 5 strážcov a keď sa niečo objaví, informujú vás obratom.










