Predaj domu 6+1 • 130 m² bez realitky, Dolné Sasko
, Dolné SaskoMHD 4 minúty pešo • Parkovanie • GarážTento udržiavaný rodinný dom z roku 1980 zaujme solídnou výstavbou, premysleným pôdorysom a rôznorodými možnosťami využitia. Obzvlášť je potrebné zdôrazniť existujúci potenciál na prestavbu a modernizáciu, ktorý ponúka priestor pre individuálne obytné koncepty.
Hlavné prednosti v prehľade:
• približne 84 m² obytná plocha v prízemí
• približne 17 m² zimná záhrada
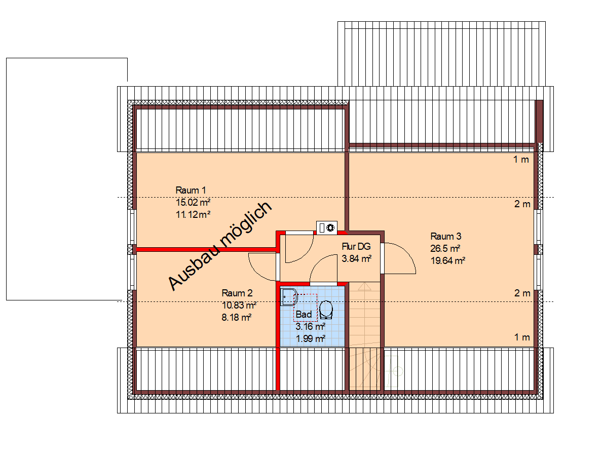
• približne 59 m² obytná/užitková plocha v podkroví (možný individuálny pôdorys)
• približne 75 m² užitkovej plochy vo suteréne s miestnosťou pre oslavy, toaletou a domácim priestorom
• pozemok s rozlohou cca 513 m², orientovaný na juh
• svetlý obývací a jedálenský priestor s krbom
• nová kuchynská linka (2025) vrátane nových dlaždíc
• kúpeľňa so sprchou a vaňou (modernizovaná)
• 2 spálne v prízemí
• trojnásobne zasklené okná s rolety (2024/2025)
• plynové kúrenie (2014)
• garáž s priamym vstupom do záhrady + dodatočný úložný priestor
• solídna výstavba (masívny suterén, drevená rámová konštrukcia s klinkerovou fasádou)
• možnosť pripojenia na optické vlákno
Špeciálna ponuka:
Ako projektový developer Vám na požiadanie ponúkame individuálny koncept rekonštrukcie a modernizácie vrátane poradenstva ohľadom dotácií (napr. cez KfW-banku), aby ste si mohli svoje budúce bývanie cielene naplánovať a optimálne financovať.
Velpke zaujme ako atraktívna lokalita na bývanie v bezprostrednej blízkosti Wolfsburgu (cca 15 minút). Obec ponúka veľmi dobrú infraštruktúru s možnosťami nákupu, školami, materskými škôlkami, ako aj solídnym dopravným spojením cez cestu B 244 a verejnú dopravu.
Obzvlášť stojí za zmienku vysoká hodnota voľnočasových možností: "Velpker Schweiz" s jazerami, turistickými a cyklistickými trasami sa nachádza prakticky za dverami a láka na oddych v zelenej prírode.
Zároveň lokalita ťaží z rastúcej infraštruktúry optických vlákien a vyvíja sa čoraz viac na žiadané miesto bývania v tzv. Wolfsburgskom opolku – ideálne pre všetkých, ktorí chcú spojiť pokojné bývanie s mestskou dostupnosťou.
Nehnuteľnosť osloví úspešnou kombináciou solídnej štruktúry a už vykonaných modernizácií, ktoré umožňujú komfortné bývanie a zároveň ponechávajú priestor pre individuálne úpravy.
• Kvalitná, nová kuchynská linka (2025) s modernými dlaždicami
• Štýlová kúpeľňa so sprchou a vaňou (modernizovaná, WC nové 2024)
• Priestranná zimná záhrada ako svetlý prístav rozšírenia obytného priestoru
• Obývacia a jedálenská miestnosť s pripojením krbu pre útulnú atmosféru
• Energeticky optimalizované trojnásobne zasklené okná s rolety (2024/2025)
• Moderné podlahové krytiny: nové dlaždice, klik-vinyl (2023), laminát a koberec
• Plne využiteľný suterén s viacerými priestormi vrátane miestnosti pre oslavy a samostatného WC
• Efektívne plynové kúrenie (2014)
• Podlahové kúrenie
• Vybavené podkrovia s dodatočným rozvojovým potenciálom pre ďalšie obytné priestory
• Garáž s priamym vstupom do záhrady a praktickými priestormi pre zariadenie a bicykle
• Svetlý pozemok orientovaný na juh s vlastnou studňou na zavlažovanie
• Kvalitná výstavba s masívnym suterénom a klinkerovou fasádou
• Budúcnosť zabezpečená možnosťou pripojenia na optické vlákno
Extra pridaná hodnota:
Na požiadanie pre Vás vypracujeme individuálny koncept rekonštrukcie – prispôsobený Vašim predstavám a vrátane poradenstva ohľadom atraktívnych dotácií.
Príklad dotácie (nezáväzne):
KfW-program 308 – Vlastníctvo bývania pre rodiny pri získavaní existujúceho majetku
Maximálna výška úveru až 150 000 €
0,76 % úroková sadzba
Možné odklady splátok
Ako projektový developer Vás na požiadanie sprevádzame od prvej myšlienky až po realizáciu a spolu s Vami vypracujeme individuálny koncept rekonštrukcie a modernizácie – vrátane poradenstva ohľadom atraktívnych dotácií (napr. KfW) a solídnej finančnej základne. Tým získate od začiatku maximálnu transparentnosť a istotu pri plánovaní Vášho budúceho domova.
Všetky údaje o nehnuteľnosti vychádzajú z informácií poskytnutých vlastníkom. Výpadky a predčasný predaj vyhradené.
Odměna sprostredkovania pre kupujúceho: 3,57 % z predajnej ceny
Parametre nehnuteľnosti
| Vek | Nad 50 rokov |
|---|---|
| Dispozícia | 6+1 |
| PENB | F - veľmi nehospodárne |
| Plocha pozemku | 518 m² |
| Cena za jednotku | 2 306,92 € / m2 |
| Stav | Dobrý |
|---|---|
| Číslo inzerátu | 1010805 |
| Úžitková plocha | 130 m² |
| Celkové poschodia | 2 |
Čo táto nehnuteľnosť ponúka?
| Pivnica | |
| Parkovanie | |
| Terasa |
| Garáž | |
| MHD 4 minúty pešo |
V okolí nehnuteľnosti nájdete
Stále hľadáte to pravé?
Nastavte si strážneho psa. Ponuky vybrané na mieru dostanete súhrnne 1× denne e-mailom. S Premium profilom máte po ruke rovno 5 strážcov a keď sa niečo objaví, informujú vás obratom.






