Predaj bytu 2+1 • 55 m² bez realitkyBahnhofstraße 10, , Bavorsko
Bahnhofstraße 10, , BavorskoMHD 1 minúta pešo • ParkovanieTáto atraktívna podkrovná bytosť zaujme svojou svetlou a priateľskou atmosférou. Množstvo okien zabezpečuje príjemné denné svetlo a dodáva priestorom zvláštnu útulnosť.
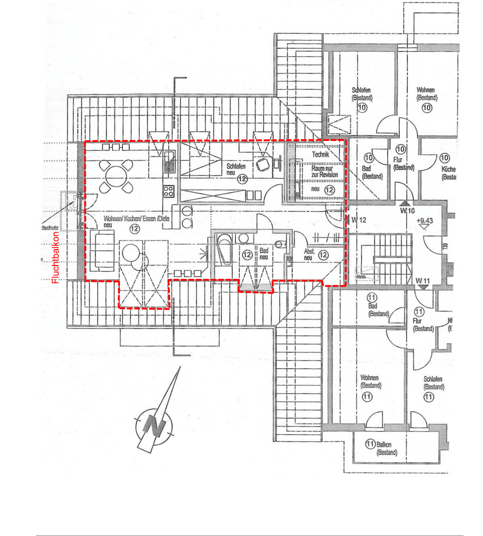
Byt disponuje spálňou a otvoreným obývacím a jedálenským priestorom s kuchyňou. Ideálne pre jednotlivcov alebo páry, ktorí ocenia útulné a zároveň štýlové bývanie a potrebujú ideálne spojenie do Augsburgu.
Byt je rozdelený nasledovne:
• Predsieň
• 2 úložné miestnosti
• Kúpeľňa s denným svetlom a vaňou
• Obývanie a jedáleň
• Otvorená kuchyňa
Kellerrum (uzamykateľné) – právo na osobitné užívanie
Parkovacie miesto pred domom – právo na osobitné užívanie
Nehnuteľnosť sa nachádza v dopravne výhodnej lokalite v Asbach-Bäumenheim a ponúka optimálne podmienky pre dojíždzaných. Vďaka bezprostrednej blízkosti k spolocným cestám B2 a B16 sú mestá Augsburg, Donauwörth a Ingolstadt rýchlo a jednoducho dostupné.
Miestna stanica Asbach-Bäumenheim zabezpečuje dobré spojenie s regionálnou železničnou dopravou, s pravidelnými spojmi najmä smerom do Augsburgu a Donauwörth. Tým pádom je pohodlné dojíždanie aj bez auta možné.
Vďaka dobre rozvinutej infraštruktúre a strategicky výhodnej polohe profitujú pracovné sily z krátkych dojazdových časov, pričom môžu bývať v kľude a v tesnej blízkosti prírody mimo rušných centier.
Kombinácia efektívnej dopravy a vysokej kvality života robí z tejto lokality obzvlášť atraktívne miesto pre dojíždzaných, ktorí hľadajú vyváženú rovnováhu medzi prácou a oddychom.
Stanica je dostupná pešo.
Svetlý a príjemný schodiskový priestor
Udržiavaný obytný dom
Váš kontakt:
Christine Wittig 0177 673 29 89
Wittig & Fritz Immobilien GmbH & Co KG
Ingeborg-Bachmann-Straße 27
89134 Blaustein
Telefón: (0163) 7343591, (0178) 7147703
Obchodný register: AG Ulm HRA 727927
Oprávnená osoba: Wittig & Fritz Verwaltungsgesellschaft mbH
Sídlo: Ingeborg-Bachmann-Straße 27, 89134 Blaustein
Obchodný register: AG Ulm HRB 743473
Výkonný riaditeľ: Stephan WITTIG, Paul-Dieter FRITZ
Parametre nehnuteľnosti
| Vek | Nad 50 rokov |
|---|---|
| Dispozícia | 2+1 |
| Číslo inzerátu | 1010746 |
| Cena za jednotku | 2 172,73 € / m2 |
| Stav | Dobrý |
|---|---|
| Poschodie | 3. poschodie z 3 |
| Úžitková plocha | 55 m² |
Čo táto nehnuteľnosť ponúka?
| Parkovanie |
| MHD 1 minúta pešo |
V okolí nehnuteľnosti nájdete
Stále hľadáte to pravé?
Nastavte si strážneho psa. Ponuky vybrané na mieru dostanete súhrnne 1× denne e-mailom. S Premium profilom máte po ruke rovno 5 strážcov a keď sa niečo objaví, informujú vás obratom.









