Predaj bytu 2+1 • 43 m² bez realitkyCoventrystraße 57 Frankfurt am Main Nied Hessen 65934
Coventrystraße 57 Frankfurt am Main Nied Hessen 65934MHD 3 minúty pešo • Výťah • ParkovanieFrisch zrekonštruovaný 2-izbový byt v udržiavanom bytovom dome z roku 1971 vo Frankfurt-Nied
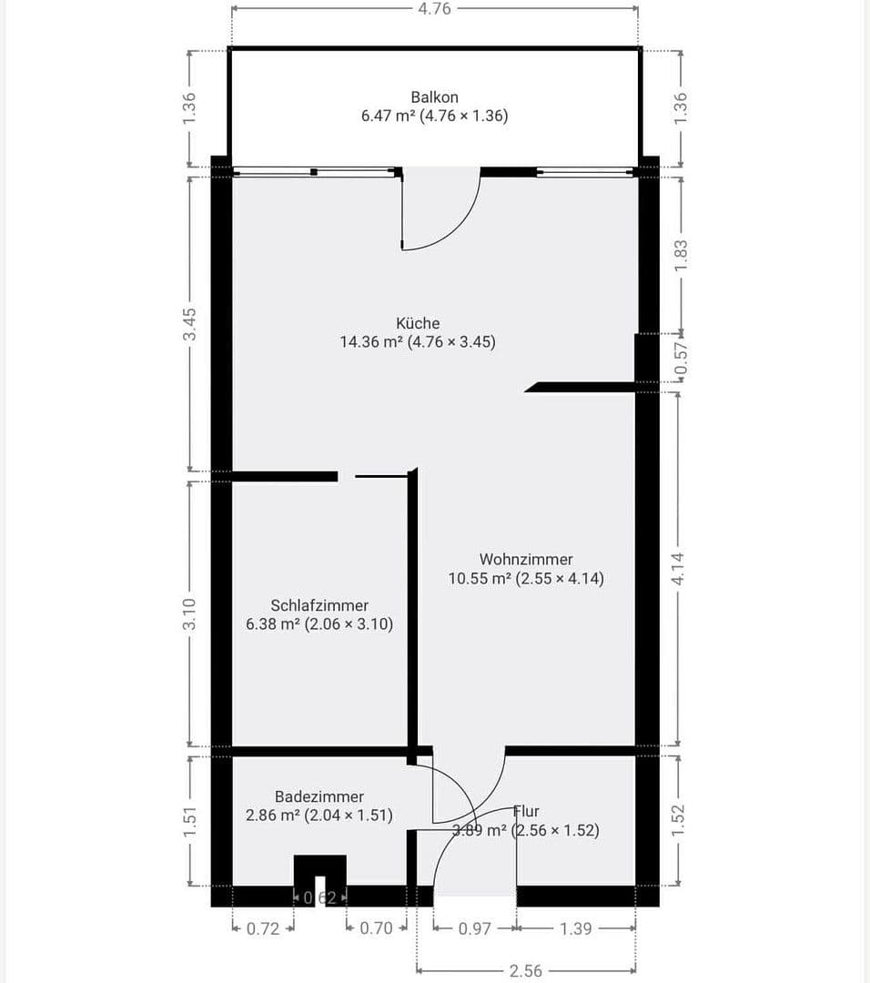
Byt zaujme svojou kompaktnou a ľahko prenajímateľnou veľkosťou približne 43 m², premysleným usporiadaním izieb a stabilnými príjmami z nájmu. Vďaka už existujúcemu prenájmu je tento objekt ideálny pre kapitálových investorov, ktorí chcú okamžité príjmy.
K ponuke sa pridáva aj parkovacie miesto v carporte (extra za 10 000), čo ešte viac zvyšuje atraktivitu pre nájomcov.
Ekonomika / Výnosnosť
Nájomné (bez tepla): 850 € / mesiac
Ročné nájomné (bez tepla): 10 200 €
Spoločné náklady: 351 € / mesiac
Prenositeľná časť: 235 €
Neprenositeľná časť: 116 €
Kúpne ceny:
Byt: 169 000 €
Carport: 10 000 €
Celková kúpna cena: 179 000 €
Hrubá výnosnosť: približne 5,7 % – 6 %
Solídna kapitálová investícia so stabilným cashflow a potenciálom rastu.
Základné údaje na prvý pohľad
Rok výstavby: 1971
Bytová plocha: približne 43 m²
Izby: 2
Stav: čerstvo zrekonštruovaný
Prenajaté: Áno
Parkovacie miesto: Carport (oddelené)
Byt sa nachádza v obľúbenom štvrtí Frankfurt-Nied, v žiadanej lokalite s veľmi dobrou infraštruktúrou.
• Nákupné možnosti v bezprostrednej blízkosti
• Dobrá dostupnosť verejnej dopravy
• Rýchly prístup do centra Frankfurtu
• Blízkosť priemyselných a obchodných zón (vysoký dopyt po prenájme)
Obzvlášť atraktívny pre dochádzajúcich a pracujúcich – stabilná prenajímateľnosť zaručená
• Svetlé a priateľské priestory
• Funkčné rozloženie na 2 izby
• Modernizované vybavenie po rekonštrukcii
• Kúpeľňa s moderným vybavením
• Jednoducho udržiavateľné podlahové krytiny
• Kúpený priestor v suteréne
• Vybavená kuchyňa s kompletne zariadeným nábytkom
• Parkovacie miesto: Carport
Táto nehnuteľnosť je vynikajúcou voľbou pre investorov, ktorí hľadajú solídnu a dlhodobú kapitálovú investíciu v hospodársky silnej oblasti.
Prehliadka je možná v najbližšom možnom termíne. Radi vám poskytneme ďalšie podklady.
Dopyty zo strany maklérov nie sú vítané!
Podľa § 7 UWG sú nevyžiadané kontakty zo strany maklérov bez výslovného súhlasu príjemcu zakázané!
Parametre nehnuteľnosti
| Vek | Nad 50 rokov |
|---|---|
| Stav | Po rekonštrukcii |
| Poschodie | 2. poschodie z 4 |
| PENB | E - Nehospodárne |
| Cena za jednotku | 3 930,23 € / m2 |
| Dostupné od | 15. 4. 2026 |
|---|---|
| Dispozícia | 2+1 |
| Číslo inzerátu | 1010726 |
| Úžitková plocha | 43 m² |
Čo táto nehnuteľnosť ponúka?
| Balkón | |
| Pivnica | |
| Parkovanie |
| Bezbariérový prístup | |
| Výťah | |
| MHD 3 minúty pešo |
V okolí nehnuteľnosti nájdete
Stále hľadáte to pravé?
Nastavte si strážneho psa. Ponuky vybrané na mieru dostanete súhrnne 1× denne e-mailom. S Premium profilom máte po ruke rovno 5 strážcov a keď sa niečo objaví, informujú vás obratom.







