Predaj bytu 4+1 • 105 m² bez realitkyGregor-Fuchs-Straße 38 Leipzig Anger-Crottendorf Sachsen 04318
Gregor-Fuchs-Straße 38 Leipzig Anger-Crottendorf Sachsen 04318MHD do minúty pešoPôvabný 4-izbový mezanínový byt s balkónom v Lipsku – Anger-Crottendorf
Vo starostlivo zrekonštruovanom, pamätníkom chránenom viacrodinnom dome z 19. storočia vás v obľúbenom lipskom štvrti Anger-Crottendorf čaká atraktívny vlastný byt s približne 84 m² obytného priestoru. Byt sa nachádza vo 4. nadzemnom podlaží udržiavaného historického objektu, ktorý bol v roku 1996 komplexne zrekonštruovaný.
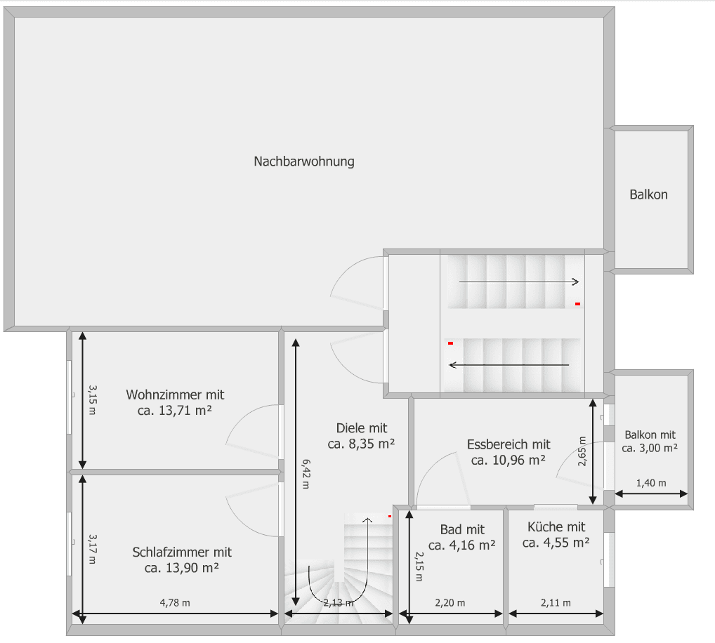
Svetlý 4-izbový mezanínový byt ponúka dostatok priestoru pre páry alebo rodiny, ktoré hľadajú útulný domov s historickým šarmom. Obytná plocha je rozdelená na štyri prehľadne usporiadané izby, samostatnú kuchyňu a udržiavanú kúpeľňu. Všetky miestnosti sú pohodlne prístupné z chodby, čo zabezpečuje príjemnú a praktickú dispozíciu bývania.
Srdcom bytu je otvorený obývací a jedálenský priestor s prístupom na balkón. Tu vzniká mimoriadne príjemná atmosféra – ideálna pre spoločné chvíle s rodinou a priateľmi. Balkón orientovaný k tichému dvoru pozýva na oddych a ponúka príjemné útočisko od každodenného zhonu.
Kúpeľňa je udržiavaná a vybavená vaňou, umývadlom, toaletou a ohrievačom na uteráky. Samostatná kuchyňa poskytuje dostatok priestoru na varenie a bežný rodinný život.
Ďalší úložný priestor ponúka úložňa na polceste schodiska a aj vlastný sklep, čím túto zaujímavú nehnuteľnosť výhodne dopĺňajú.
Byt je momentálne prenajatý, čo predstavuje aj atraktívnu príležitosť pre kapitálových investorov. Aktuálny čistý nájom činí 8 460 € ročne. Okrem toho existuje potenciál pre budúce zvyšovanie hodnoty a výnosnosti. Nehnuteľnosť obýva pokojná a spoľahlivá nájomnícka komunita, ktorá bývanie veľmi dôkladne udržiava.
Byt disponuje kvalitnou, udržiavanou výbavou a je od roku 2017 prenajatý.
Lipský štvrť Anger-Crottendorf je výborne napojený na okolitú infraštruktúru (S-Bahn (MDV), električka, autobus).
Všetky zásobovacie zariadenia sú v dostatočnej blízkosti (medzi iným supermarkety, úrady, školy, materské školy, lekári).
Vďaka svojej polohe v bezprostrednej blízkosti osídlenia, pri Stünzer parku, je táto lokalita veľmi obľúbená.
Bez provízie pre kupujúceho
Predaj nehnuteľnosti prebieha v mene nášho zákazníka. Pre vás ako kupujúceho sa neúčtujú žiadne maklérske provízie.
Váš kontaktný partner
Frank Stabler
Realitný maklér
Odborník na oceňovanie zastavaných a nezastavaných pozemkov
(certifikovaný podľa DIN ISO 17024 / PersCert)
Kurzá ulica 4
04683 Naunhof
Obhliadka nehnuteľnosti sa môže dohodnúť, napríklad aj so súčasnými nájomcami, po predchádzajúcej dohode.
Odškodnenie zodpovednosti:
Všetky údaje a ceny sú nezáväzné a bez záväznosti. Chyby alebo medzivyužitie zostávajú vyhradené. Táto ponuka bola vyhotovená na základe podkladov poskytnutých vlastníkom a jeho údajov bez akýchkoľvek záruk.
Právny nárok na kúpnu zmluvu vzniká až po podpise zo strany vlastníka.
Parametre nehnuteľnosti
| Vek | Nad 50 rokov |
|---|---|
| Dispozícia | 4+1 |
| Číslo inzerátu | 1010424 |
| Cena za jednotku | 2 657,14 € / m2 |
| Stav | Po rekonštrukcii |
|---|---|
| Poschodie | 4. poschodie z 2 |
| Úžitková plocha | 105 m² |
Čo táto nehnuteľnosť ponúka?
| Balkón | |
| MHD 0 minút pešo |
| Pivnica |
V okolí nehnuteľnosti nájdete
Stále hľadáte to pravé?
Nastavte si strážneho psa. Ponuky vybrané na mieru dostanete súhrnne 1× denne e-mailom. S Premium profilom máte po ruke rovno 5 strážcov a keď sa niečo objaví, informujú vás obratom.


















