
Prenájom bytu 4+1 • 108 m² bez realitkyLudwig-Thoma-Straße, 16, , Bavorsko
Ludwig-Thoma-Straße, 16, , BavorskoMHD 4 minúty pešo • Výťah • GarážTáto priestranná 108 m² veľká maisonette bytosť sa nachádza priamo pri okraji lesa vo Feucht a zaujme otvoreným, svetlým konceptom priestorov. Byt sa nachádza v najvyššom poschodí starostlivo udržiavanej budovy (18 bytov v dome) a vďaka umiestneniu na ochrane strechy ponúka vysokú mieru súkromia – nevyskytujú sa nad vami žiadni susedia.
Vďaka vynikajúcej prípojke na S-Bahn sa dostanete už za približne 20 minút do centra Norimbergu, pričom bývate na mieste, kde turistické a bežecké chodníky začínajú rovnako priamo pred vašimi dverami na okraji lesa.
Výnimočnosťou je aj približne 34 m² veľké štúdio na najvyššom poschodí. Vďaka premyslenej dispozícii a samostatnému vstupu cez schodisko ponúka flexibilné možnosti využitia: ideálne ako profesionálna domáca kancelária, priestor pre koníčky alebo ako oddelená zóna pre rodinných príslušníkov. Moderný výťah (inštalácia plánovaná na rok 2025) vás pohodlne dopravi priamo ku dverám bytu.
Byt sa nachádza priamo na okraji lesa. Súčasťou obytného zázemia je aj vlastné detské ihrisko.
• MHD: Len približne 5 minút chôdze od stanice S-Bahn „Feucht Ost“ (S3) – do hlavného nádražia v Norimbergu cca 20 minút.
• Občianska vybavenosť: Možnosti nakupovania, lekári a školy vo Feucht sú veľmi dobre dostupné.
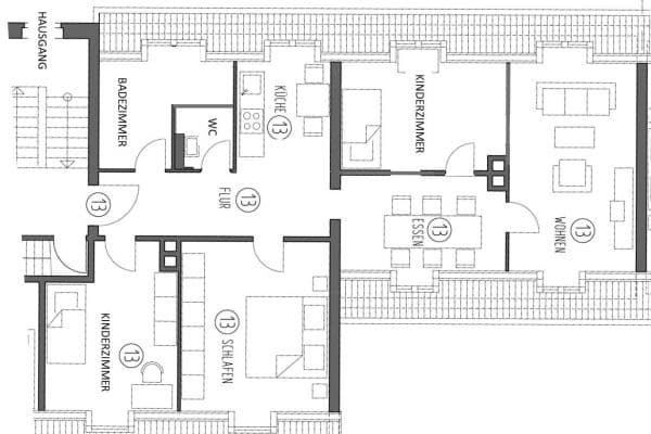
Obytná plocha: približne 108 m² rozložených na dvoch úrovniach.
• Jasne osvetlené: Čoraz viac okien a poloha na streche zabezpečujú veľmi svetlé miestnosti.
• Vonkajší priestor: Juhozápadná lodžia s rozľahlým výhľadom na oblohu a okolie.
• Energetická účinnosť: Vynikajúca hodnota (kategória B) zaručuje predvídateľné prevádzkové náklady.
• Kuchyňa: Kvalitná vstavaná kuchyňa je súčasťou bytu (poznámka: prenájom prebieha bez chladničky).
• Flexibilita: Štúdio na najvyššom poschodí je samostatne prístupné; ideálne pre kombináciu bývania a práce.
• Komfort: Podlahové kúrenie v obytných priestoroch, úložná miestnosť s prípojkou na práčku priamo v byte.
• Úložné priestory: Skladovacie priestory v suteréne a dodatočný úložný priestor na súkromnom podkroví.
• Parkovanie: Jedno parkovacie miesto v podzemnej garáži.
Mesačné náklady:
• Nájomné bytu (bez prevádzkových nákladov): 1.350,00 €
• Nájomné parkovacieho miesta v podzemnej garáži: 60,00 €
• Záloha na prevádzkové náklady: 350,00 € (vrátane kúrenia, vody, dane z nehnuteľnosti, výťahu atď.)
• Celkové nájomné (vrátane tepla): 1.760,00 €
• Kaucia: 4.050,00 € (3 nájomné bez prevádzkových nákladov)
Vaša cesta k novému bytu:
Aby sme zabezpečili promptné vybavenie vašej žiadosti, budeme radi za krátke osobné predstavenie (Koho plánujete nasťahovať? Čomu sa venujete profesionálne?).
Vezmite, prosím, na vedomie, že pre uzatvorenie nájomnej zmluvy potrebujeme nasledujúce dokumenty (dodávať po prehliadke):
• Dobrovoľné prehlásenie nájomcu
• Aktuálna výpis zo Schufa (nesmie byť staršia ako 3 mesiace)
• Doklady o príjmoch za posledné 3 mesiace
• Doklad totožnosti
Parametre nehnuteľnosti
| Vek | Nad 50 rokov |
|---|---|
| Stav | Dobrý |
| Poschodie | 4. poschodie z 4 |
| PENB | B - Veľmi úsporné |
| Cena za jednotku | 12,50 € / m2 |
| Dostupné od | 1. 5. 2026 |
|---|---|
| Dispozícia | 4+1 |
| Číslo inzerátu | 1010325 |
| Úžitková plocha | 108 m² |
Čo táto nehnuteľnosť ponúka?
| Balkón | |
| Garáž | |
| MHD 4 minúty pešo |
| Pivnica | |
| Výťah |
V okolí nehnuteľnosti nájdete
Stále hľadáte to pravé?
Nastavte si strážneho psa. Ponuky vybrané na mieru dostanete súhrnne 1× denne e-mailom. S Premium profilom máte po ruke rovno 5 strážcov a keď sa niečo objaví, informujú vás obratom.




















