
Prenájom bytu 4+1 • 129 m² bez realitkyMedkova, Praha - Chodov
Nadstandardní byt 4+1 (129 m²) s balkonem ve vile se zahradou – Praha 4, Chodov
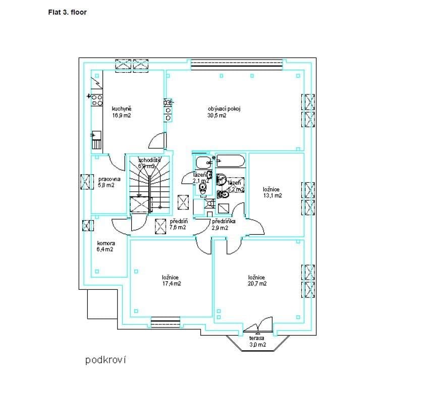
Nabízím k pronájmu světlý podkrovní byt 4+1 (129 m²) s balkonem ve zrekonstruované vile v žádané lokalitě Praha 4 – Chodov.
Pouze 3 byty v domě zajišťují maximum soukromí a klidu.
Hlavní benefity:
• velkorysý prostor ideální pro rodinu i home office
• obývací pokoj s krbem
• 3 ložnice + samostatná kuchyň
• plus pracovna a komora
• 2 koupelny (vana i sprcha), 2× WC
• klimatizace, zabezpečení, vlastní plynový kotel
• rychlý internet (až 1 Gb/s)
• možnost využití zahrady
Lokalita, která dává smysl:
Metro Chodov/Opatov cca 8 min pěšky, autobus 3 min. Rychlé napojení na D1 i centrum. V okolí zeleň, školy, sport i OC Westfield Chodov.
Spacious 4-Bedroom Attic Apartment (129 m²) with Balcony in a Villa with Garden – Prague 4, Chodov
Are you looking for a truly spacious and peaceful home with the atmosphere of a family house?
We offer for rent a bright attic apartment (129 m²) with a balcony, located in a renovated villa in the sought-after area of Prague 4 – Chodov. With only three apartments in the building, the property ensures maximum privacy and tranquility.
Key Features:
• generous living space, ideal for a family and home office
• living room with a fireplace
• 3 bedrooms + separate kitchen
• additional study room and storage room
• 2 bathrooms (bathtub and shower), 2 separate toilets
• air conditioning, security system, private gas boiler
• high-speed internet (up to 1 Gb/s)
• possibility to use the garden
Location:
Metro stations Chodov and Opatov are about an 8-minute walk away, bus stop just 3 minutes. Fast connection to the D1 motorway and the city center. The area offers plenty of greenery, schools, sports facilities, and the Westfield Chodov shopping center nearby.
This property is ideal for tenants seeking comfortable, quiet living with excellent accessibility.
Parametre nehnuteľnosti
| Dostupné od | 15. 7. 2026 |
|---|---|
| Konštrukcia budovy | Tehla |
| Vybavené | Čiastočne |
| Vykurovanie | Plynové |
| Vlastníctvo | Osobné |
| Umiestnenie | Tichá lokalita |
| Cena za jednotku | 341,09 CZK / m2 |
| Stav | Veľmi dobrý |
|---|---|
| Dispozícia | 4+1 |
| Poschodie | 3. poschodie z 3 |
| Číslo inzerátu | 1010112 |
| PENB | E - Nehospodárne |
| Úžitková plocha | 129 m² |
Čo táto nehnuteľnosť ponúka?
| Balkón 3 m² | |
| Parkovanie |
| Predzáhradka 400 m² | |
| MHD 7 minút pešo |
V okolí nehnuteľnosti nájdete



Prenájom bytuNa Slavíkově, Praha - Dolní Měcholupy- 4+kk
- 130 m²
42 000 CZK + 10 000 CZK43 000 CZK
Ušetríte 1 000 CZK

Stále hľadáte to pravé?
Nastavte si strážneho psa. Ponuky vybrané na mieru dostanete súhrnne 1× denne e-mailom. S Premium profilom máte po ruke rovno 5 strážcov a keď sa niečo objaví, informujú vás obratom.












