Prenájom nebytového priestoru • 510 m² bez realitkyBenzstraße 13, , Hesensko
Benzstraße 13, , HesenskoMHD do minúty pešo • ParkovaniePLOCHA & VYUŽITIE
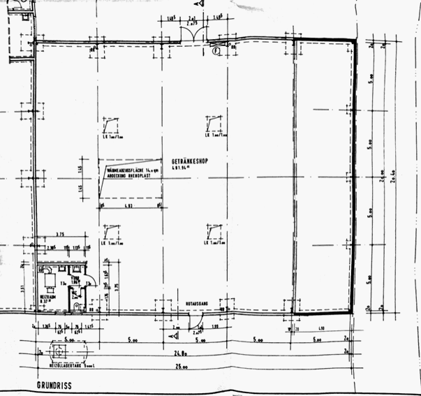
Celková plocha: cca 510 m² (prízemie, bezbariérové)
Predajná plocha: cca 500 m² (flexibilné dispozície)
Aktuálne využitie: Obchod s nápojmi (zavedená špecializovaná obchodná lokalita)
Dostupné: od 01.07.2027
LOGISTIKA & PARKOVANIE
Parkovacie miesta: cca 28 zákazníckych miest priamo pri objekte
Nakládka: pri úrovni zeme
Frekvencia: Vysoký „cross-shopping“ efekt vďaka bezprostrednému susedstvu s Bauhausom a Gartencenter Risse a pod.
TECHNICKÉ ÚDAJE
Konštrukcia: Ploché strechy, bezbariérové, bez pivnice
Svetlá výška: cca 3 m
Podlaha: Priemyselná podlaha
Vstup: Automatické dvere (v pôvodnom stave)
Vykurovanie: Vlastný plynový kondenzačný kotol (inštalovaný v roku 2022)
Plyn: Vlastné plynové pripojenie (priame účtovanie)
Elektrina: Vlastné elektrické pripojenie (priame účtovanie)
Voda: Spoločné s Fressnapf (každý so samostatným meračom)
Fotovoltaická inštalácia: V preverovaní (atraktívne podmienky na odber elektriny pre nájomcov sú možné)
Pilón: Prítomný, osvetlený
PODMIENKY
Prenajímateľ uplatňuje DPH
Uvedená čistá nájomná cena a prevádzkové náklady: netto (plus zákonná DPH)
Obchodná jednotka sa nachádza v prvotriednej špecializovanej maloobchodnej lokalite, priamo susediacej s BAUHAUS-Fachcentrum (cca 26 500 m² predajnej plochy, Drive Inn Arena). Vďaka spoločnému prístupu a vysokej viditeľnosti má lokalita prospech z obrovskej dennej zákazníckej frekvencie.
Osobitnou výhodou pre budúci rozvoj lokality je bezprostredné susedstvo s Main-Au-Quartier (bývalý areál Bautz). Vytvorením cca 1 400 nových obytných jednotiek vzniká moderná mestská štvrť, ktorá v nadchádzajúcich rokoch privíta približne 3 000 až 3 500 nových obyvateľov a tým prinesie obrovský nárast miestnej kúpnej sily a dennej zákazníckej frekvencie priamo pred vaše dvere.
Rohový pozemok so silným reklamným potenciálom
Vynikajúce spojenie s diaľničnou sieťou (43a, A66, A45)
Parametre nehnuteľnosti
| Vek | Nad 50 rokov |
|---|---|
| Číslo inzerátu | 1009861 |
| Cena za jednotku | 12,16 € / m2 |
| Dostupné od | 1. 7. 2027 |
|---|---|
| Plocha nebytového priestoru | 510 m² |
Čo táto nehnuteľnosť ponúka?
| Parkovanie |
| MHD 0 minút pešo |
V okolí nehnuteľnosti nájdete
Stále hľadáte to pravé?
Nastavte si strážneho psa. Ponuky vybrané na mieru dostanete súhrnne 1× denne e-mailom. S Premium profilom máte po ruke rovno 5 strážcov a keď sa niečo objaví, informujú vás obratom.







