Predaj domu 5+1 • 167 m² bez realitky, Bádensko-Wurttembersko
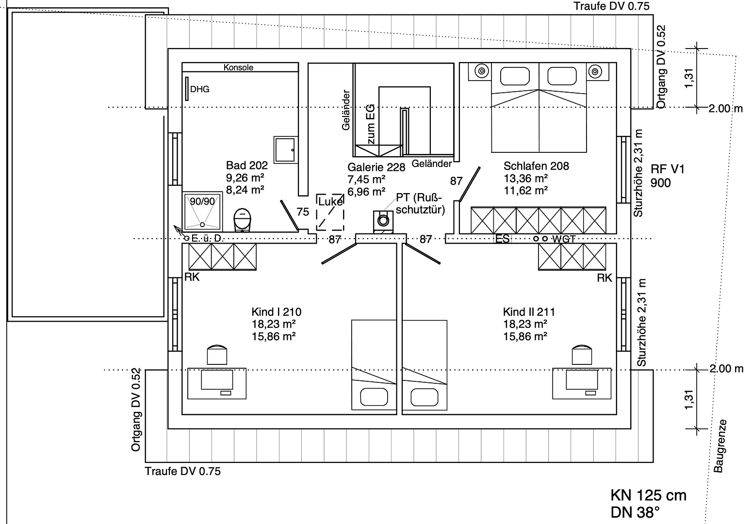
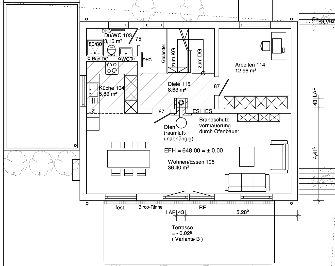
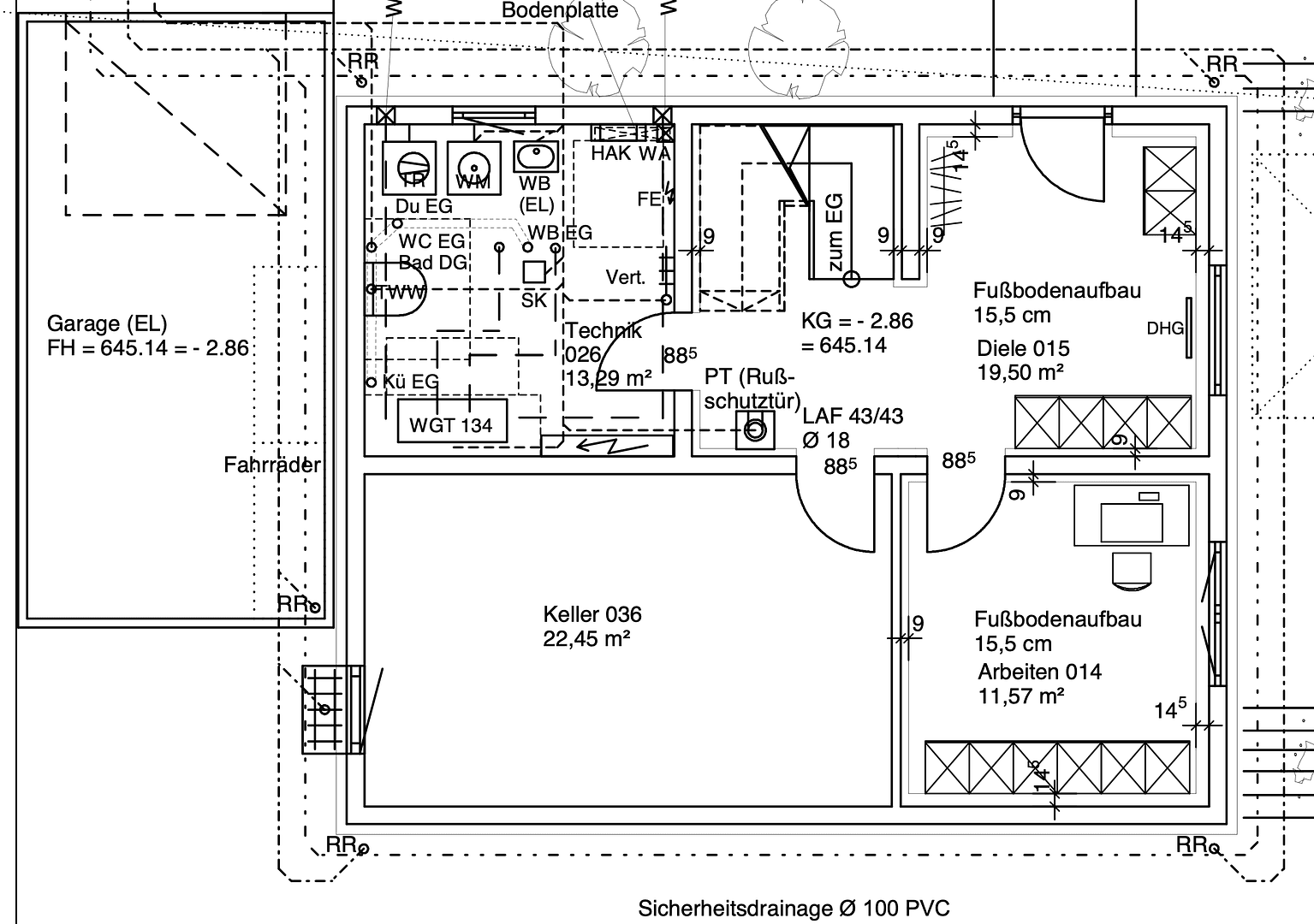
, Bádensko-WurttemberskoMHD 3 minúty pešo • Parkovanie • GarážModerný rodinný dom disponuje obytným suterénom s denným svetlom, nádherným konceptom osvetlenia, 2 terasami orientovanými na juh s jedinečným výhľadom na Gräbelesberg, kvalitnou vstavanou kuchyňou, 2 sprchovými kúpeľňami, 2 pracovňami a 2 samostatnými detskými izbami. Dom je okamžite k nastěhovaniu, má len 7 rokov a disponuje energetickým preukazom KfW 55. Rozľahlá parcela ponúka veľkú trávnatú plochu pre hrajúce sa deti, ako aj užitočnú záhradku s viacerými záhonkami a ovocnými stromami. Krásne upravená predzáhrada je naozaj výnimočná. Extra široká garáž, dve parkovacie miesta a nádherná záhradná chata (2025) určite nenechajú žiadne želania nenaplnené.
/// Ponukový proces - Počiatočná ponuka 725.000 €
Laufen je časťou obce Albstadt, nachádzajúcej sa v srdci švábskych Alb. Ulica Gräbelesberg sa nachádza v pokojnej obytné štvrti a tvorí slepú uličku v blízkosti lesa. V obci nájdete novo postavenú materskú školu (2021) a základnú školu, okrem toho je tu aj železničná stanica pre dochádzajúcich do Tübingen alebo Stuttgartu. Nákupy a lekári sú dostupní v priebehu niekoľkých minút jazdy. Tento rok začne výstavba nového centrálneho klinického zariadenia Zollernalb v susednej obci.
Výrobca domu: Schwörer-Haus, konštrukcia s dreveným rámom
Extra široká garáž: 700 x 358 x 259 cm plus 2 parkovacie miesta
Izby: 1 spálňa, 2 detské izby, 2 sprchové kúpeľne, 2 pracovné izby, veľká obývacia kuchyňa s jedálňou a obývacím priestorom, 2 suterénne miestnosti
Kúrenie: vzduch-vzduch tepelné čerpadlo plus krb
Energetický štandard: KfW 55
Fotovoltaická sústava: 9,9 kWp systém s 9 kWh batériou vrátane inteligentnej wallbox nabíjacej so solárnym prebytkom
Cisterna: 7000 l (so 30-ročnou zárukou)
Systém na zmäkčovanie vody: BWT systém
Parametre nehnuteľnosti
| Vek | Nad 50 rokov |
|---|---|
| Stav | Veľmi dobrý |
| Číslo inzerátu | 1009524 |
| Plocha pozemku | 741 m² |
| Cena za jednotku | 4 341,32 € / m2 |
| Dostupné od | 1. 8. 2026 |
|---|---|
| Dispozícia | 5+1 |
| Úžitková plocha | 167 m² |
| Celkové poschodia | 3 |
Čo táto nehnuteľnosť ponúka?
| Pivnica | |
| Parkovanie | |
| Terasa |
| Garáž | |
| MHD 3 minúty pešo |
V okolí nehnuteľnosti nájdete
Stále hľadáte to pravé?
Nastavte si strážneho psa. Ponuky vybrané na mieru dostanete súhrnne 1× denne e-mailom. S Premium profilom máte po ruke rovno 5 strážcov a keď sa niečo objaví, informujú vás obratom.





