Predaj domu 4+1 • 125 m² bez realitky, Dolné Sasko
, Dolné SaskoMHD 5minút pešo • ParkovanieVážené dámy a páni,
predáva sa novostavba dvojdomov v masívnej konštrukcii s priamym výhľadom do zelene. Ideálne pre tých, ktorí hľadajú štýlový a praktický domov, ktorý okamžite vyvolá pocit „príchodu“.
Opis objektu
- Pozemok: Vlastnícky pozemok s rozlohou 330 m²
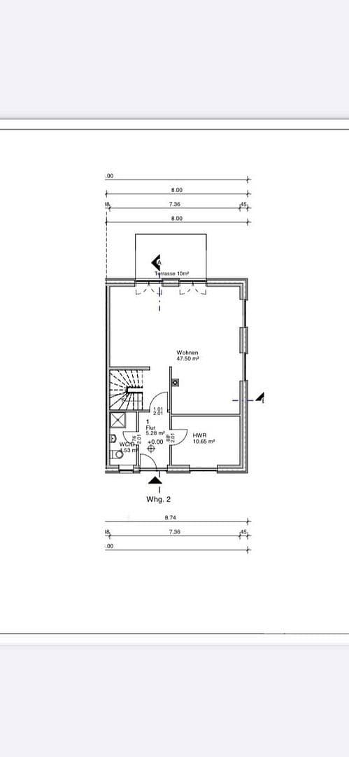
- Obytná plocha: 125 m² rozložených do priestranných miestností pre rôzne možnosti využitia
- Exteriér: Exteriér je kompletne dokončený. Pozemok je kvalitne oplotený, má zabezpečený súkromie a je dlaždený. Priestranný záhradný domček navyše ponúka všestranný úložný priestor alebo miesto pre záľuby.
- Internet: Dokončené pripojenie na optické vlákno
- Poloha: Priamy výhľad zo záhrady do zelene
- Energetická efektívnosť: Trieda energetickej účinnosti A+ pre udržateľné a nákladovo efektívne bývanie (energický preukaz k dispozícii)
- Poschodie pod strechou: Schválená rezerva na zariadenie ďalšieho obytného priestoru, napr. pre domácu kanceláriu, izbu pre hostí alebo jednoducho ako podkrovie
- Vykurovanie: Kvalitné tepelné čerpadlo s dodatočnou 10-ročnou servisnou zmluvou a 10-ročnou zárukou s originálnymi náhradnými dielmi priamo od výrobcu
- Kuchyňa: Moderná kuchyňa s ostrovčekom a modernými spotrebičmi
- HWR: Priestranná domácnosť/technická miestnosť na úschovu potravín a prístup k elektronike a vykurovaniu
- Podlahová krytina: Svetlá podlaha pre príjemnú atmosféru domova
- Kúpeľne: Dve moderné kúpeľne so štýlovými obkladmi, jedna so sprchovacím kútom, druhá na hornom poschodí so sprchovacím kútom a vaňou a s kvalitnou LED technikou
- Elektrické rolety na všetkých oknách (s inteligentným ovládaním cez Smarthome)
- Podlahové kúrenie: s individuálnym ovládaním pre jednotlivé miestnosti
- Parkovacie miesta: Dve parkovacie miesta priamo pri dome pre pohodlné parkovanie
__________
Táto dvojdomovacia polovica presvedčí svojou kvalitnou výbavou a okamžitou pripravenosťou na nasťahovanie, vrátane stropných svietidiel. S energetickou triedou A+, moderným tepelným čerpadlom a strešnou izoláciou, ako aj ekologickou natláčacou izoláciou získate nízke prevádzkové náklady a udržateľný koncept bývania. Dokončený exteriér s terasou vás okamžite pozýva k relaxu a rezerva na poschodí pod strechou ponúka flexibilitu pre vaše individuálne plány.
__________
Bleckede, malomesto v Dolnom Sasku na brehu Labe, ponúka rovnováhu medzi pokojom blízkym prírode a dostupnosťou. Len 20 km od Lüneburgu a približne 50 km od Hamburgu, Bleckede poskytuje všetko pre pohodový každodenný život: niekoľko supermarketov, drogerie a miestne pekárne bezproblémovo pokrývajú dennú potrebu. Osobitým lákadlom je regionálny týždenný trh v historickom centri mesta.
Aj sociálna infraštruktúra presvedčuje: od materských škôl cez základnú školu až po gymnázium sú všetky vzddelávacie inštitúcie priamo v meste. Komplexná zdravotná starostlivosť zabezpečená rôznymi praktickými a odbornými lekármi a lekárňami dopĺňa ponuku. Tu si vychutnáte dokonalú kombináciu bývania bližšie k prírode na Labe a komfortu vyzretej malomestskej komunity.
__________
Predajná cena: 452 500,- €
Pre ďalšie informácie alebo dohodnutie termínu prehliadky nás neváhajte kontaktovať.
Tešíme sa, že vám túto nehnuteľnosť budeme môcť osobne predstaviť!
S úctou
Žiadame ďalších maklérov, aby sa zdržali kontaktov.
Parametre nehnuteľnosti
| Vek | Nad 50 rokov |
|---|---|
| Dispozícia | 4+1 |
| PENB | A - Mimoriadne úsporné |
| Plocha pozemku | 330 m² |
| Cena za jednotku | 3 620 € / m2 |
| Stav | Veľmi dobrý |
|---|---|
| Číslo inzerátu | 1009480 |
| Úžitková plocha | 125 m² |
| Celkové poschodia | 2 |
Čo táto nehnuteľnosť ponúka?
| Parkovanie | |
| Terasa |
| MHD 5 minút pešo |
V okolí nehnuteľnosti nájdete
Stále hľadáte to pravé?
Nastavte si strážneho psa. Ponuky vybrané na mieru dostanete súhrnne 1× denne e-mailom. S Premium profilom máte po ruke rovno 5 strážcov a keď sa niečo objaví, informujú vás obratom.














