Predaj bytu 4+kk • 66 m² bez realitkyPekárenská, České Budějovice - České Budějovice 3, Jihočeský kraj
Nabízíme k prodeji krásný prosluněný byt, který spojuje výhody bydlení v centru města s promyšlenou dispozicí pro velkou rodinu. Tento kompletně zrekonstruovaný byt 4+kk (66 m²) v 8. podlaží 7. patro z 8 možných nabízí nejen moderní design, ale i výhled na Černou věž.
Čím je tento byt jedinečný?
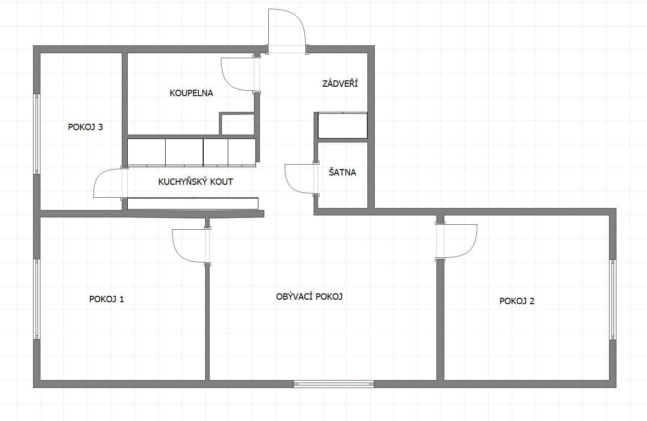
Víc prostoru pro každého: Díky chytré změně dispozice z 3+1 na 4+kk získáte tři samostatné ložnice a obývací pokoj a kuchyňský kout. V bytě je taktéž k dispozici zádveří a šatna.
Jižní orientace obývacího pokoje vám každý den nabídne pohled na historické jádro města a Černou věž. Ostatní pokoje jsou orientovány na východ a západ, což zaručuje dostatek světla po celý den.
Vše na dosah ruky: Pár kroků od IGY Centra, 10 minut volnou chůzí na náměstí. Ideální pro ty, kteří chtějí nechat auto zaparkované v rezidentní zóně a užívat si město v dochozí vzdálenosti.
Veškerá občanská vybavenost v dochozí vzdálenosti do pár minut.
Stav a náklady:
Byt prošel kompletní rekonstrukcí. Včetně výměny elektrických rozvodů a rozvodů vody a odpadů.
V ceně je zahrnuta moderní kuchyňská linka a vestavné prvky.
Dům byl revitalizován, zateplen a taktéž jsou vyměněny stoupačky v celém domě. Disponuje moderním výtahem.
Měsíční náklady jsou díky úspornému hospodaření domu pouze 4 200 Kč + náklady za el. energie.
Rád zodpovím všechny případné dotazy skrze komunikační platformu.
Parametre nehnuteľnosti
| Dostupné od | 1. 7. 2026 |
|---|---|
| Konštrukcia budovy | Panel |
| Vybavené | Čiastočne |
| Číslo inzerátu | 1009350 |
| PENB | B - Veľmi úsporné |
| Úžitková plocha | 66 m² |
| Stav | Veľmi dobrý |
|---|---|
| Dispozícia | 4+kk |
| Poschodie | 8. poschodie z 9 |
| Vlastníctvo | Osobné |
| Umiestnenie | Centrum mesta |
| Cena za jednotku | 89 242,42 CZK / m2 |
Čo táto nehnuteľnosť ponúka?
| Bezbariérový prístup | |
| Výťah |
| Pivnica 2 m² | |
| Parkovanie |
V okolí nehnuteľnosti nájdete
Stále hľadáte to pravé?
Nastavte si strážneho psa. Ponuky vybrané na mieru dostanete súhrnne 1× denne e-mailom. S Premium profilom máte po ruke rovno 5 strážcov a keď sa niečo objaví, informujú vás obratom.










