Predaj domu • 251 m² bez realitky, Bavorsko
, BavorskoMHD 1 minúta pešo • Parkovanie • GarážPozemky sa nachádzajú v uprednostňovanej lokalite, južne od historického centra Pegnitzu, priamo v oblasti lúky. Historické centrum s množstvom nákupných možností je dosiahnuteľné pešo do 5 minút. Záhradná parcela susedí priamo s brehom rieky Pegnitz. Nehnuteľnosti ležia v upravenom prostredí, ktoré pozostáva prevažne z viacrodinných domov.
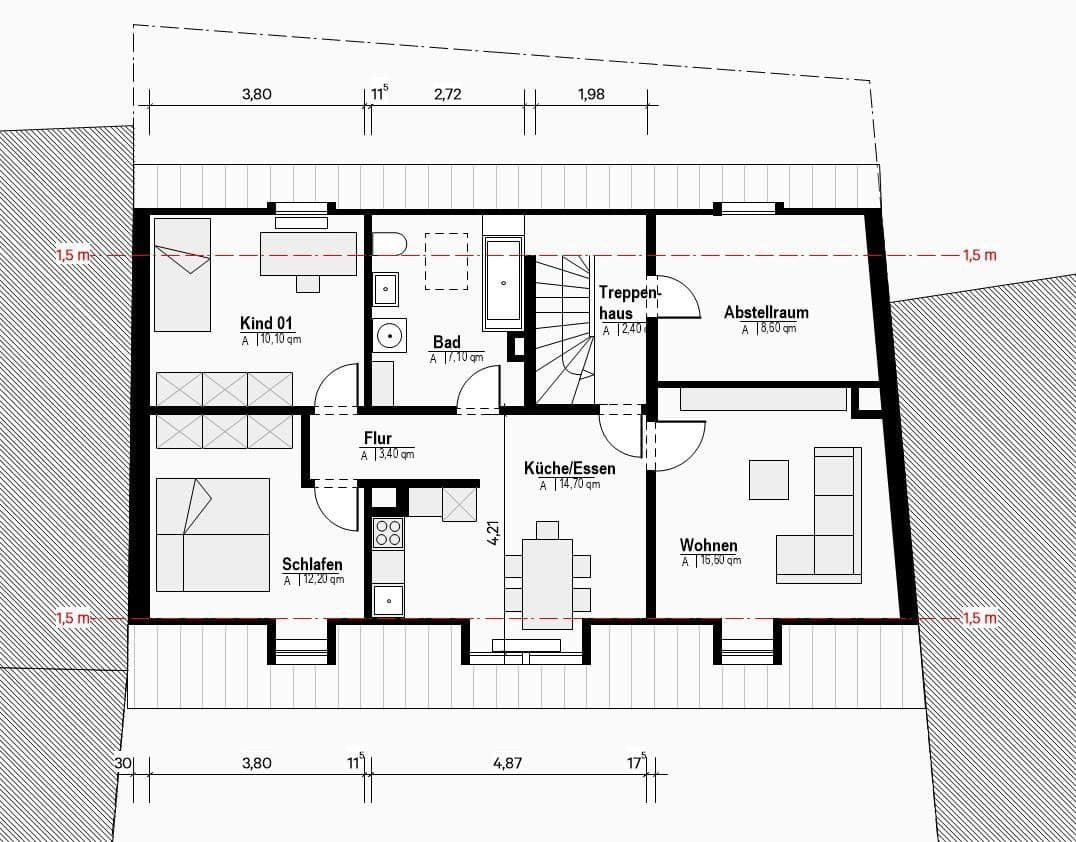
Upravený trojrodinný dom sa nachádza priamo na okraji centra Pegnitzu, v najvýhodnejšej polohe, centrálne a dobre dostupný. Budova bola postavená v 70. rokoch v solídnej masívnej konštrukcii so suterénom. Celkový stav je dobrý. Záhradná parcela s dvojgarážou a prístavbou leží priamo na lúke, v nezmeniteľnej polohe. Obytný dom orientovaný na východ a západ je dvojpodlažný s dispozíciou zariadeného podkrovia a vďaka rozdielu úrovní terénu disponuje priamo prístupným a dobre osvetleným suterénom. Severná a južná strana budovy sú navrhnuté ako protipožiarne steny a prístavby.
V prízemí sa nachádza upravený 4-izbový byt s približnou obytnou plochou a priestranným, slnečným západným balkónom s výhľadom na lúku.
Cez spoločné otvorené schodisko sa dostanete do prvého poschodia, kde sa taktiež nachádza 4-izbový byt s približnou obytnou plochou.
Na podkroví vás čaká 4-izbový byt s úložným priestorom. Prístup na podkrovie je zabezpečený vysúvacím rebríkom cez strešnú šachtu.
Nehnuteľnosť má úplný suterén. Suterén je na západnej strane otvorený do dvora. V suteréne sa nachádzajú skladovacie priestory, olejové kúrenie s priestorom na úložisko olejovej nádrže a práčovňa. Priamo naviazaný dlažbou pokrytý dvor môže byť využitý aj ako parkovacie miesto pre motorové vozidlá.
V exteriéri sa nachádza ďalšia prístavba s uzavretým aj otvoreným skladovacím priestorom. Na hornom poschodí prístavby sa nachádzajú ďalšie skladové plochy.
Záhradnú parcelu na západe s dvojgarážou a prístavbou je možné podľa želania dokúpiť.
Pegnitz s približne 13 000 obyvateľmi je najväčším mestom v južnom okrese Bayreuth, zasadeným do prírodnej krajiny medzi Franckým Švajčiarskom a lesom Veldensteiner. Pegnitz leží približne 30 kilometrov južne od Bayreuthu. Mesto patrí do metropolitnej oblasti Norimbergu a plánovacej oblasti Horné Francko-Východ.
Pegnitz s približne 13 000 obyvateľmi je najväčším mestom v južnom okrese Bayreuth, zasadeným do prírodnej krajiny medzi Franckým Švajčiarskom a lesom Veldensteiner.
Ako sídlo celosvetovo pôsobiacich firiem sa Pegnitz etabloval ako stredisko a ponúka širokú škálu zamestnávateľov pre región.
V Pegnitzu je prítomných aj množstvo vzdelávacích inštitúcií. Okrem základnej a strednej školy, reálnej školy a UNESCO gymnázia, je mesto domovom hotelovej školy a odbornej školy hotelového manažmentu, odbornej školy s odlievňou a Bavorskej justičnej školy.
Infraštruktúra
Železničná stanica Pegnitz, s možnosťou pripojenia na regional expres, je vzdialená približne 10 minút pešo. Odtiaľ sa vaši zákazníci rýchlo dostanú ako do Bayreuthu, tak do Norimbergu.
Pegnitz leží uprostred pravého turistického raja, "Veldensteiner Forst", jedného z najväčších súvislých lesných území Bavorska. Mnohé turistické trasy ponúkajú rôzne možnosti voľnočasových aktivít a lákajú na oddych a regeneráciu. To pritiahne veľké množstvo návštevníkov a potenciálnych zákazníkov do mesta.
Mnohé reštaurácie a festivaly počas roka, napríklad Pegnitzské letné koncerty, festival na námestí alebo jarmoky, pozývajú obyvateľov na spoločenské stretnutia.
Pegnitz ponúka pestrú a rôznorodú zmes odvetví, čo zabezpečuje vysokú premávku verejnosti. V centre mesta sa počas celého roka, vrátane víkendov, konajú známe podujatia, ktoré prispievajú k jeho oživeniu (viac informácií nájdete na webovej stránke mesta Pegnitz).
Parametre nehnuteľnosti
| Vek | Nad 50 rokov |
|---|---|
| Číslo inzerátu | 1009032 |
| Úžitková plocha | 251 m² |
| Celkové poschodia | 3 |
| Stav | Dobrý |
|---|---|
| PENB | G - Mimoriadne nehospodárne |
| Plocha pozemku | 717 m² |
| Cena za jednotku | 1 115,54 € / m2 |
Čo táto nehnuteľnosť ponúka?
| Balkón | |
| Garáž | |
| MHD 1 minúta pešo |
| Pivnica | |
| Parkovanie |
V okolí nehnuteľnosti nájdete
Stále hľadáte to pravé?
Nastavte si strážneho psa. Ponuky vybrané na mieru dostanete súhrnne 1× denne e-mailom. S Premium profilom máte po ruke rovno 5 strážcov a keď sa niečo objaví, informujú vás obratom.



















