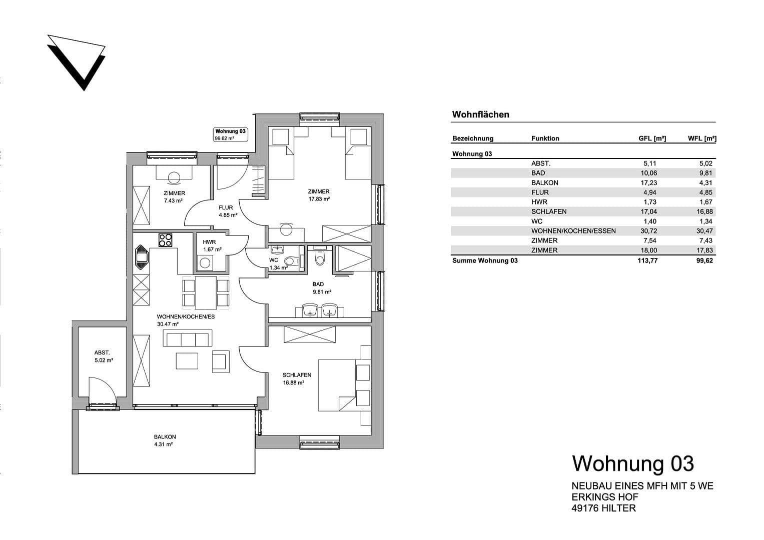
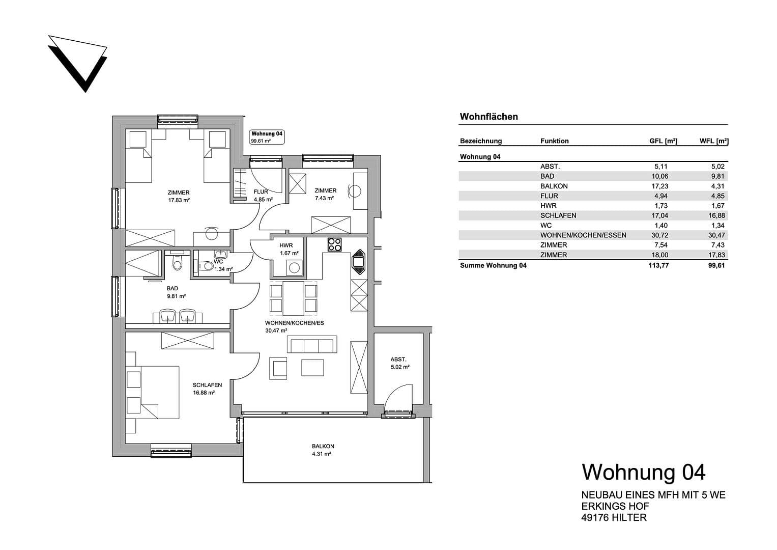
Predaj bytu 4+1 • 100 m² bez realitkyErkings Hof 2, , Dolné Sasko
Erkings Hof 2, , Dolné SaskoMHD 4 minúty pešo • Výťah • ParkovanieVitajte vo vašom novom domove!
Poloha na Erkings Hof 2 v Hilteri ponúka skutočne vynikajúcu rovnováhu medzi pokojným prostredím pri Teutoburgu a rýchlym spojením do Osnabrücku alebo Bielefildu cez diaľnicu A33. Tento exkluzívny novostavbový byt v prízemí/1. poschodí spája moderný dizajn s najvyšším komfortom bývania. Na priestrannej obytnnej ploche približne 100 m² vás čaká premyslený koncept priestorov, ktorý nezanedbáva žiadnu požiadavku. Dokončenie je plánované na rok 5/2027 – zabezpečte si už teraz kvalitu prvého nasťahovania v jednej z najžiadanejších lokalít v Hilteri.
Voliteľne: Obyvateľom môže byť na požiadanie povolené spoločné používanie sauny v dome (dohoda s vlastníkom)
Žiadna provízia priamo od vlastníka.
Len pár metrov do prírody a zároveň dobré spojenie cez A33 smerom na Osnabrück alebo Bielefeld.
Byt vzniká v Hilteri pri Teutoburgu – Erkings Hof 2. Okolie vyniká perfektnou kombináciou relaxácie v prírodnom prostredí a veľmi dobrou infraštruktúrou. Dobré diaľničné spojenie – 5 minút autom na A33, železničná stanica Hilter – 3 minúty autom (pešo 15 minút), autobusová zastávka – 5 minút pešo. V blízkosti sú dostupné možnosti nakupovania, materská škola, školy a voľnočasové aktivity.
Príklad vybavenia:
• Vysokorýchlostné optické pripojenie (vláknová sieť)
• Výťah
• Samostatný vstup / schodisko
• Domofón pri vstupe
• Carport cca 3,5 x 8 metrov s prívodom pre wallbox vrátane (wallbox je samostatne)
• Trojnásobné zasklenie vrátane elektrických žalúzií
• Podlahové kúrenie
• Terasa/balkóny s pripojením na vodu
Poznámka: Pre byt 1+2 by bola možnosť odkúpiť aj pozemok pri terase (tým by bola možná samostatná individuálna využiteľnosť). Podmienkou je samostatná dohoda v notárskej zmluve. Pred samotným uzatvorením zmluvy je dôležité stanoviť všetky údaje.
Dom bude pripojený na studenú mestskú teplovodnú sieť.
Na základe vašej požiadavky vám náš partner môže zaslať individuálnu, bezplatnú ponuku financovania. Stačí mi dať vedieť a ja zabezpečím kontakt. Tento servis je pre vás zdarma.
Prosím, pri dopytoch uveďte vašu kompletnú adresu, e-mail a telefónne číslo.
Parametre nehnuteľnosti
| Vek | Nad 50 rokov |
|---|---|
| Dispozícia | 4+1 |
| Číslo inzerátu | 1008972 |
| Cena za jednotku | 3 520 € / m2 |
| Stav | Novostavba |
|---|---|
| Poschodie | 1. poschodie z 3 |
| Úžitková plocha | 100 m² |
Čo táto nehnuteľnosť ponúka?
| Balkón | |
| Výťah | |
| MHD 4 minúty pešo |
| Bezbariérový prístup | |
| Parkovanie | |
| Terasa |
V okolí nehnuteľnosti nájdete
Stále hľadáte to pravé?
Nastavte si strážneho psa. Ponuky vybrané na mieru dostanete súhrnne 1× denne e-mailom. S Premium profilom máte po ruke rovno 5 strážcov a keď sa niečo objaví, informujú vás obratom.








