Predaj domu 6+1 • 160 m² bez realitkyLebacher Straße 72, , Sársko
Lebacher Straße 72, , SárskoMHD 3 minúty pešo • Parkovanie • GarážTento jednostranne prístavaný rodinný dom na ulici Lebacher v Dirmingene bol v rokoch 2024/2025 dôkladne zrekonštruovaný a nachádza sa v stave, ktorý nenecháva nič na želanie. Kto hľadá domov, do ktorého sa dá ihneď nasťahovať bez toho, aby musel volať aspoň jedného remeselníka, tu určite nájde to, čo potrebuje.
Rekonštrukcia zahrnula všetky podstatné remeselné práce: Bola nainštalovaná moderná elektrická vykurovacia sústava (výrobný rok 2025), kompletná elektroinštalácia aj všetky vodovodné potrubia boli úplne vymenené. Moderná kúpeľňa s dostatkom denného svetla ohromí kvalitnými obkladmi, kombináciou sprchového kúta a kúpeľnej vane a modernými armaturami. Samostatná hostinská toaleta v prízemí ďalej rozširuje ponuku priestorov.
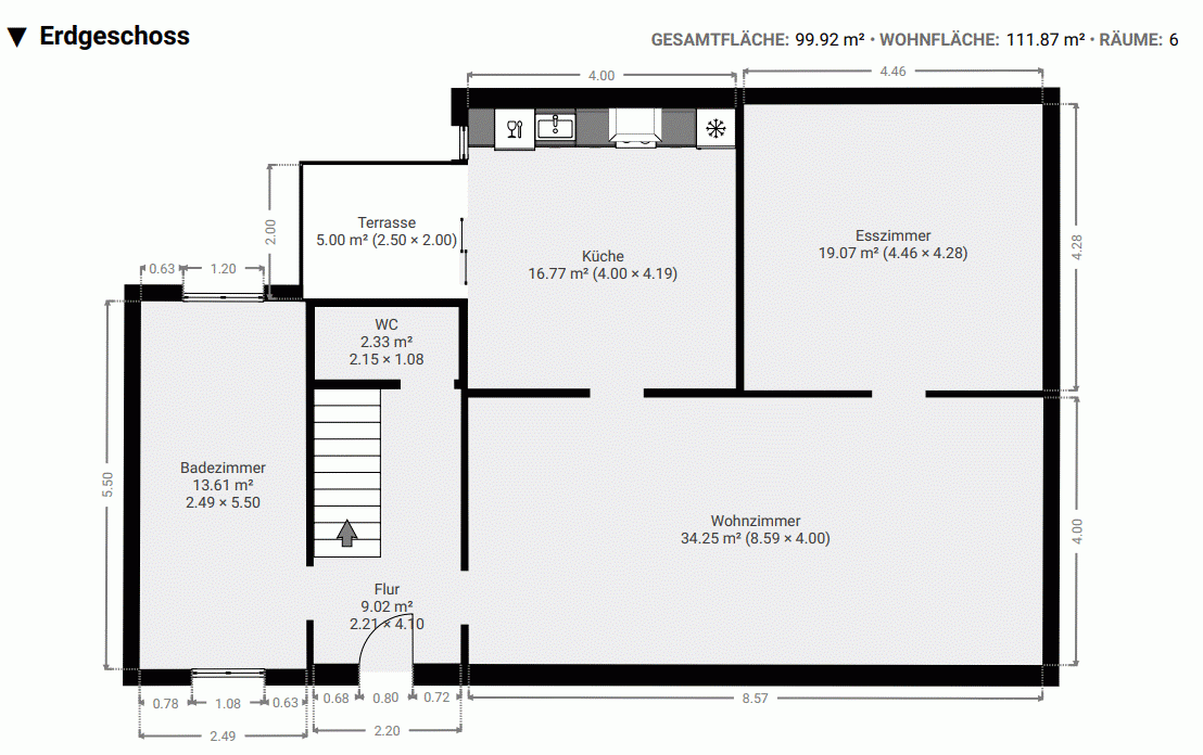
V prízemí vás čaká priestranná obývacia a jedálenská miestnosť, ako aj kuchyňa s priamym vstupom na terasu – ideálna pre rodiny, ktoré si cenia otvorené a svetlé bývanie. Poschodie ponúka tri spálne a pracovňu, ktorá sa dá využiť aj ako detská izba. Úplne izolovaný podkrovný priestor poskytuje dodatočné úložné priestory.
Podlahy boli v celom dome nahradené kvalitným laminátom a vinylovou podlahovou krytinou, všetky dveri v interiéri aj vstupné dvere sú nové. LED stropné svetlá zabezpečujú v každom obytnom priestore moderný osvetľovací koncept. Zadná fasáda bola odborne izolovaná a omietnutá.
Ku domu patrí garáž s novými elektrickými dverami a štyri ďalšie parkovacie miesta – dostatok priestoru pre celú rodinu alebo návštevy. Záhrada s terasou ponúka priestor na oddych a pre deti na hranie.
Dirmingen je pokojná a rodinne prívetivá časť obce Eppelborn v okrese Neunkirchen. Spojenie s cestou B10 a blízkosť k Lebachu a Neunkirchen zaručujú výbornú dostupnosť obchodov, škôl a lekárov. Poloha ponúka to najlepšie z oboch svetov: vidiecku pokojnosť spojenú s kvalitnou infraštruktúrou.
Parametre nehnuteľnosti
| Vek | Nad 50 rokov |
|---|---|
| Stav | Po rekonštrukcii |
| Číslo inzerátu | 1008865 |
| Plocha pozemku | 460 m² |
| Cena za jednotku | 1 243,75 € / m2 |
| Dostupné od | 9. 4. 2026 |
|---|---|
| Dispozícia | 6+1 |
| Úžitková plocha | 160 m² |
| Celkové poschodia | 2 |
Čo táto nehnuteľnosť ponúka?
| Pivnica | |
| Parkovanie | |
| Terasa |
| Garáž | |
| MHD 3 minúty pešo |
V okolí nehnuteľnosti nájdete
Stále hľadáte to pravé?
Nastavte si strážneho psa. Ponuky vybrané na mieru dostanete súhrnne 1× denne e-mailom. S Premium profilom máte po ruke rovno 5 strážcov a keď sa niečo objaví, informujú vás obratom.




















