
Predaj bytu 3+1 • 77 m² bez realitkyBenkova, Praha - Chodov
Benkova, Praha - ChodovČiastočne vybavené • Výťah • Parkovanie • Pivnica 2 m² • Lodžia 5 m²Jako přímý majitel Vám nabízím světlý a prostorný byt pro celou rodinu 3+1 (77m²) s lodžií, nedaleko metra na pražském Chodově.
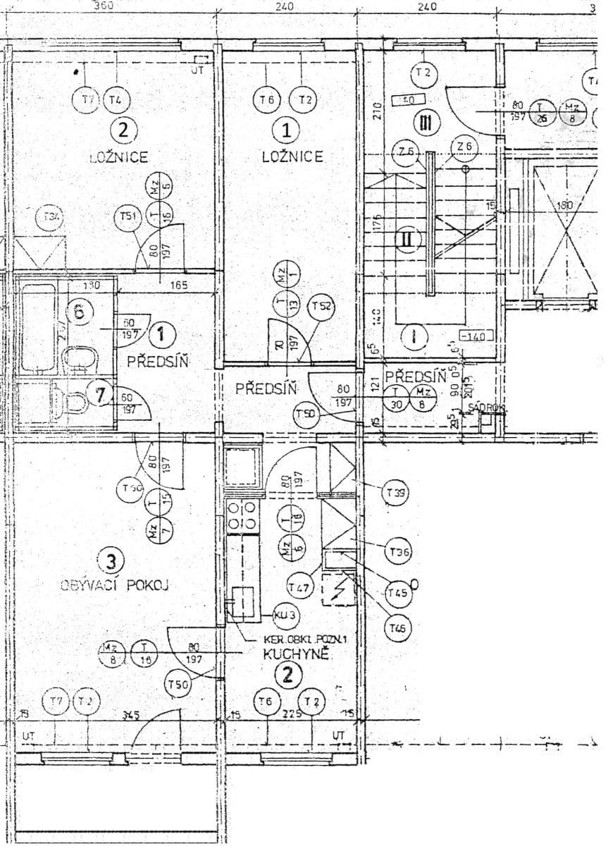
Dispozice bytu:
Byt po částečné rekonstrukci, zděná koupelna a záchod, v pokojích plouvoucí podlahy a elektroinstalace ve zdi. Předsíň a kuchyň v původním stavu. Slušná podlahová plocha 77 m² s prostornou lodžií. Byt je umístěný ve 3. NP (2. patro) perfektně udržovaného domu. K bytu přináleží i kóje pro skladování větších předmětů.
Dispozice domu:
Dům je zateplen, eneregetická třída B, plastová okna, opravená střecha, moderní výtahy, rekonstruované interiéry,
Lokalita:
Umístění domu na Praze-Chodov spojuje klid s výbornou dostupností, 11 minut chůze na metro C – Chodov a do OC Westfield, dále školy a školky, obchody v bezprostřední blízkosti a také plavecký bazén, dále poliklinika. Blízkost Kunratického lesa nabízí aktivní odpočinek.
Typ vlastnictví a cena :
Družstevní (anuita plně splacena, převod do OV zatím nikoliv, později), cena 8.200.000,-Kč
Kontakt pro domluvení prohlídky:
Tomáš
Parametre nehnuteľnosti
| Dostupné od | 3. 4. 2026 |
|---|---|
| Konštrukcia budovy | Panel |
| Vybavené | Čiastočne |
| Číslo inzerátu | 1008602 |
| PENB | B - Veľmi úsporné |
| Umiestnenie | Tichá lokalita |
| Úžitková plocha | 77 m² |
| Stav | Veľmi dobrý |
|---|---|
| Dispozícia | 3+1 |
| Poschodie | Prízemie |
| Vlastníctvo | Družstevné |
| Prevod do osobného vlastníctva | Nie |
| Anuita | 0 CZK |
| Cena za jednotku | 107 142,86 CZK / m2 |
Čo táto nehnuteľnosť ponúka?
| Pivnica 2 m² | |
| Lodžia 5 m² |
| Výťah | |
| Parkovanie |
V okolí nehnuteľnosti nájdete
Stále hľadáte to pravé?
Nastavte si strážneho psa. Ponuky vybrané na mieru dostanete súhrnne 1× denne e-mailom. S Premium profilom máte po ruke rovno 5 strážcov a keď sa niečo objaví, informujú vás obratom.














