Prenájom bytu 3+1 • 118 m² bez realitkyKatharinenberg 6, , Meklenbursko-Predpomoransko
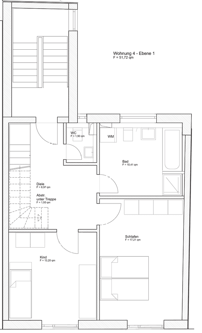
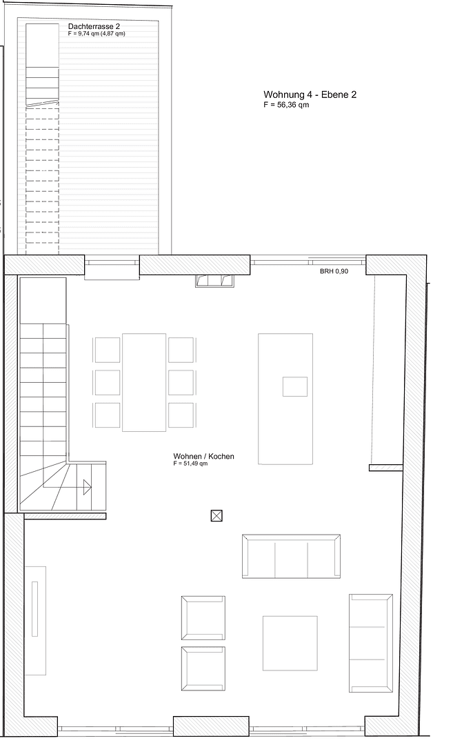
Maisonette-byt sa nachádza v novostavbe z roku 2021, v ktorej je celkovo 4 obytné jednotky. Na približne 52 m² sa na 3. poschodí bytu nachádzajú spálňa, detská izba, kúpeľňa, hostinská toaleta, chodba a malá úložná miestnosť pod schodiskom. Na 4. poschodí bytu sa nachádza 55 m² obytná časť s kuchyňou, ako aj balkón a vstup na strešnú terasu. Tento balkón je orientovaný na východ a je prístupný z obytné-kuchynskej časti. Všetky terasy sú vybavené doskami z larixového dreva.
Z obyvacej izby a spálne vychádzate cez okná od podlahy až po strop smerom k večernému slnku, cez mestskú hradbu, na parkové plochy a Knieperteich. Z kuchynskej časti a balkóna vyhliadate cez niekoľko striech starého mesta na Marienkirche. Kúpeľňa je vybavená sprchou, vaňou, prípojkou na práčku aj s oknom. Hostinská toaleta je taktiež vybavená oknom.
V obytných priestoroch je položená vinylová podlaha, pričom hostinská toaleta aj kúpeľňa sú obkladané dlaždicami. Okrem toho byt disponuje dvoma monitormi pre videodverový interkom.
Vedľa starej továrne na hracie karty je dom obklopený ďalšími historickými, ale aj modernými architektonicky zaujímavými budovami. Nachádza sa v pokojnej vedľajšej ulici Stralsundského starého mesta. Pešo za približne 10 minút dosiahnete hlavné nádražie v Stralsunde, Starý trh alebo ostrov prístavu. Na Novom trhu alebo na najbližšej autobusovej zastávke (Knieperwall, linky 1 a 4) ste asi 3 minúty pešo.
Okrem úložnej miestnosti v prízemí je možné využiť stojany na bicykle v prízemí, na dvore aj v suteréne susedného domu. Miesto na grilovanie a možnosti na hry pre deti sa nachádzajú v zelenom vnútornom dvore.
Parkovacia garáž pre osobné vozidlá s automatickými dverami vysokými 2 m a širokými 2,4 m, s 22 kW prípojkou pre elektromobily, nachádzajúca sa v prízemí domu, je k dispozícii na prenájom podľa potreby. Náklady na prenájom činia 160,00 €/mesiac. Alternatívne môžete využívať verejné parkoviská pomocou obytného preukazu alebo parkovacieho lístku. Vaši susedia si čiastočne prenajali parkovacie miesta v okolí.
Vstavaná kuchyňa, koberce, parketové podlahy ani výťah nepatria do bytu.
Na dohodnutie termínu obhliadky, prosím, využite kontaktný formulár s uvedením čísla na spätné zavolanie. Vašu požiadavku budeme vedieť vybaviť najrýchlejšie, ak prostredníctvom kontaktného formulára uvediete svoje celé meno, adresu a dostupnosť na obhliadku. Podrobnosti o povolaní, príjme, veku a domácich zvieratách nám tiež pomôžu pri výbere termínov obhliadok.
Chov domácich zvierat nie je vítaný.
Parametre nehnuteľnosti
| Vek | Nad 50 rokov |
|---|---|
| Stav | Dobrý |
| Poschodie | 3. poschodie z 3 |
| Úžitková plocha | 118 m² |
| Dostupné od | 1. 5. 2026 |
|---|---|
| Dispozícia | 3+1 |
| Číslo inzerátu | 1008594 |
| Cena za jednotku | 15 € / m2 |
Čo táto nehnuteľnosť ponúka?
| Pivnica | |
| Terasa |
| Garáž |
V okolí nehnuteľnosti nájdete
Stále hľadáte to pravé?
Nastavte si strážneho psa. Ponuky vybrané na mieru dostanete súhrnne 1× denne e-mailom. S Premium profilom máte po ruke rovno 5 strážcov a keď sa niečo objaví, informujú vás obratom.




















