Predaj domu 4+1 • 120 m² bez realitky, Sasko
, SaskoMHD 1 minúta pešo • ParkovanieVitajte vo vašom novom domove – v kvalitnej mestkej vile (postavená v roku 2023), ktorá dokonale spája moderné bývanie, premyslenú architektúru a prírodné prostredie.
Domov, ktorý je viac než len štyri steny – miesto na príchod, pocit pohody a dlhodobý pobyt. Moderný, energeticky úsporný a na vysnívanej lokalite – táto mestská vila je výnimočnou príležitosťou pre všetkých, ktorí hľadajú niečo jedinečné.
Len približne 20 minút od centra Chemnitzu si tu vychutnáte ideálnu rovnováhu medzi mestskou blízkosťou a pokojnou idylou.
Obzvlášť atraktívne pre rodiny: Materská škôlka aj autobusová zastávka sú pohodlne dostupné pešo za menej než 5 minút – krátke vzdialenosti, ktoré výrazne uľahčujú každodenný život.
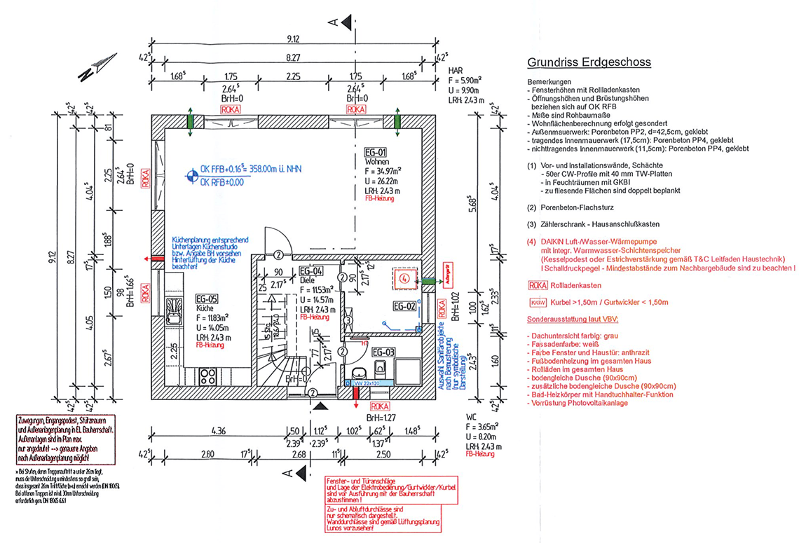
Už pri vstupe pocítite osobitý šarm tohto domu: štedrosť, dostatok svetla a čistý, moderný dizajn formov ovplyvňujú celkový pocit z bývania. Srdcom domu je otvorený obývací a jedálenský priestor s exkluzívnou, kvalitnou vstavanou kuchyňou, ktorá nenecháva nič na želanie. Samostatná jedálenská miestnosť poskytuje dodatočný komfort a perfektnú organizáciu každodenného života. Spálňa má vlastnú šatníkovú miestnosť.
Priestranný pozemok pozýva na relax: či už ide o pokojné chvíle v záhrade, hranie s deťmi alebo spoločenské večery s priateľmi – tu vznikajú skutočné životné momenty. Priamo pri turistickej ceste začína vaša relaxácia prakticky pred dverami.
Mestská vila očaruje nielen vzhľadom, ale aj technikou: vďaka modernému tepelné čerpadlu a energeticky úspornému štandardu KfW-55 bývate udržateľne a pripravení na budúcnosť – s nízkymi nákladmi na energiu a čistým svedomím.
Parametre nehnuteľnosti
| Vek | Nad 50 rokov |
|---|---|
| Dispozícia | 4+1 |
| PENB | A - Mimoriadne úsporné |
| Plocha pozemku | 860 m² |
| Cena za jednotku | 4 125 € / m2 |
| Stav | Veľmi dobrý |
|---|---|
| Číslo inzerátu | 1008489 |
| Úžitková plocha | 120 m² |
| Celkové poschodia | 2 |
Čo táto nehnuteľnosť ponúka?
| Parkovanie | |
| Terasa |
| MHD 1 minúta pešo |
V okolí nehnuteľnosti nájdete
Stále hľadáte to pravé?
Nastavte si strážneho psa. Ponuky vybrané na mieru dostanete súhrnne 1× denne e-mailom. S Premium profilom máte po ruke rovno 5 strážcov a keď sa niečo objaví, informujú vás obratom.















