Prenájom bytu 3+1 • 142 m² bez realitkySchulstraße 1, , Bavorsko
Schulstraße 1, , BavorskoMHD 1 minúta pešoTento jedinečný loftový byt je ideálny pre individualistov, ktorí hľadajú niečo výnimočné.
Čo robí tento byt takým jedinečným?
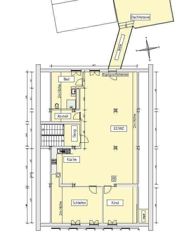
Ide o modernou rekonštruovanú staršiu budovu, ktorá obsahuje kúpeľňu s rozlohou 9,6 m², úložný priestor/priečelný priestor o 2,9 m², spálňu s rozlohou 15,3 m², detskú izbu/kanceláriu s rozlohou 22,2 m² a priestor na kufre.
Obývacia izba s rozlohou 88,2 m², ktorá je naplnená svetlom, vám ponúka všetky možnosti pre voľnú úpravu bývania.
Ďalšie atrakcie zahŕňajú viditeľné nosné trámy, odhalené tehly a druhý, bytovo-vlastný vchod cez približne 50 m² veľkú, slnečnú strešnú terasu s mostom.
Záhrada upravená z granitu je tiež k dispozícii. Bylinkový záhon a kvetinové záhony sú už vytvorené.
Byt je po generálnej rekonštrukcii pripravený na nasťahovanie a disponuje pelietovým kúrením, kontrolovanou ventiláciou obývacieho priestoru, zariadením na čerstvú vodu, náročnou izoláciou strechy a trojsklenkovými oknami.
Byt sa nachádza v Ruhmannsfelden. V okolí premávajú autobusové linky 4142 a 7025, ako aj vlakové linky RB 38 a Wanderbahn, ktoré vás spájajú s regionálnymi aj nadregionálnymi destináciami. V bezprostrednej blízkosti sa taktiež nachádza niekoľko supermarketov, dve kaviarne, pekáreň, lekár a reštaurácia. Niekoľko fitness centier, klub, obchod s obuvou a lekáreň sú tiež dostupné pešo.
Zvláštnou atrakciou pre lyžiarov, bežkára a milovníkov hôr je blízkosť k Arberu. Arber, tiež označovaný ako „kráľ Bavorského lesa,“ s výškou 1 456 metrov, nie je len najvyššou horou bavorsko-českého pohraničia, ale vďaka svojej prírode zaujíma aj mimoriadne postavenie.
Veľký obývací priestor (88,2 m²) môže byť podľa potreby rozdelený, aby ste získali ďalšiu izbu.
Slnečná terasa bude počas roka 2026 zrekonštruovaná.
Biele, zrekonštruované dvere sa momentálne montujú.
Parametre nehnuteľnosti
| Vek | Nad 50 rokov |
|---|---|
| Dispozícia | 3+1 |
| Číslo inzerátu | 1008378 |
| Úžitková plocha | 142 m² |
| Stav | Po rekonštrukcii |
|---|---|
| Poschodie | 3. poschodie z 1 |
| PENB | E - Nehospodárne |
| Cena za jednotku | 10 € / m2 |
Čo táto nehnuteľnosť ponúka?
| Pivnica | |
| Terasa |
| MHD 1 minúta pešo |
V okolí nehnuteľnosti nájdete
Stále hľadáte to pravé?
Nastavte si strážneho psa. Ponuky vybrané na mieru dostanete súhrnne 1× denne e-mailom. S Premium profilom máte po ruke rovno 5 strážcov a keď sa niečo objaví, informujú vás obratom.
































